Eladó családi ház Balatonalmádi 170 000 000 Ft

Leírás

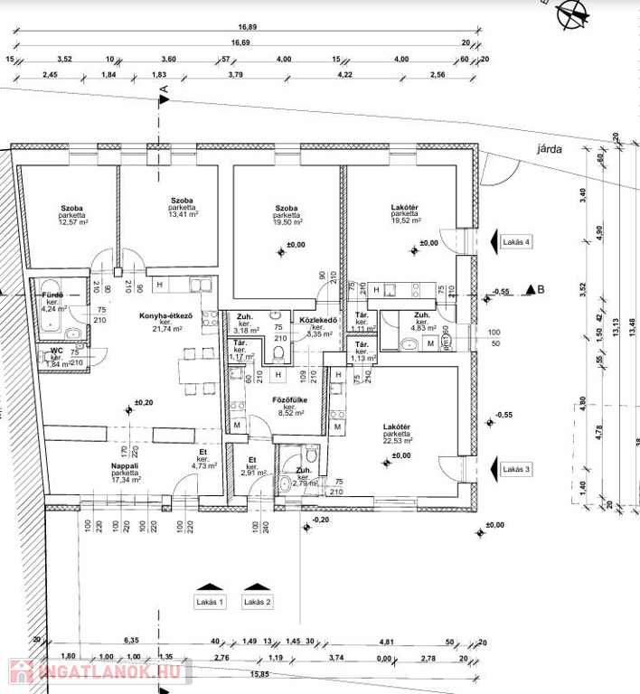
Eladó egy 761m2-es telken található befejezésre váró ingatlan Balatonalmádiban, mely egy régi épület bővítésével és emelet ráépítésével jött létre.
Az ingatlan 360 négyzetméter mely 6 lakást foglal magába.
Az alsó szinten a tervek szerint 4 lakás lett kialakítva, ahol a belső falak már állnak, így a vásárló könnyen befejezheti az építkezést.
Az emeleten 2 nagyméretű tetőtéri lakás tervezett, ahol a szobák száma és méretei igény szerint még alakíthatók. Az egyik lakás balatoni panorámás kilátással rendelkezik, ami egyedülálló élményt nyújt az ott lakóknak.

A ház cserép tetős, hőszigetelt, és új homlokzati nyílászárókkal rendelkezik, ami hő-és hangszigetelt, továbbá az energiahatékonyságot biztosítja.
Az ingatlan kitűnő befektetési lehetőség is, hiszen a 6 lakás kiadásával jelentős bevételt lehet elérni.
A Balaton és a központ 15 perc sétára elérhető.

További kérdés és megtekintési szándék esetén szeretettel várom hívását!
06 30 140 3328
Dream-Ing
Álomból Otthont

Családi ház részletei

Ár: 170 000 000 Ft
Méret: 360 négyzetméter
Azonosító: 11583580
Irodai azonosító: 324032
Telek: 761 négyzetméter
Ingatlan állapota: Épülő
Jelleg: családi ház
Építőanyag: Kérdezzen rá a hirdetőtől »
Egész szobák: 10
Fél szobák: 2

Hasonló családi ház hirdetések

Eladó családi ház

Balatonalmádi

Belvárosi balatonalmádi családi ház eladó!A CasaNetWork Balatonalmádi ...

Eladó családi ház

Balatonalmádi

Eladó igényesen felújított családi ház balatoni panorámával Balatonalmádiban!Kizárólag ...

Eladó családi ház

Balatonalmádi

Eladó a méltán kedvelt Balatonalmádiban egy 645 m²-es telken elhelyezkedő, ...

Eladó családi ház

Balatonalmádi

A CasaNetWork Balatonalmádi irodája eladásra kínálja a 1362-es számú, ...

Hasonló családi ház hirdetések

Eladó családi ház

Balatonalmádi

Belvárosi balatonalmádi családi ház eladó!A CasaNetWork Balatonalmádi ...

Eladó családi ház

Balatonalmádi

Eladó igényesen felújított családi ház balatoni panorámával Balatonalmádiban!Kizárólag ...

Eladó családi ház

Balatonalmádi

Eladó a méltán kedvelt Balatonalmádiban egy 645 m²-es telken elhelyezkedő, ...

Eladó családi ház

Balatonalmádi

A CasaNetWork Balatonalmádi irodája eladásra kínálja a 1362-es számú, ...