Eladó családi ház Balatonkeresztúr 59 500 000 Ft

Leírás

ÚJ LEHETŐSÉG BALATONKERESZTÚRON!

Elindult az építkezés!
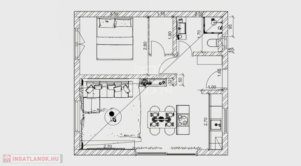
Megkezdődtek egy modern ikerház alapozási munkálatai Balatonkeresztúron, jelen hirdetésben a kisebbik, nettó 42 m²-es lakást kínáljuk megvételre.

✨ Amit kínálunk:
✔️ Teljesen kulcsrakész, költözhető állapot
✔️ 300 négyzetméteres privát, déli tájolású kert
✔️ Saját terasz ☀️
✔️ Nyugodt, balatoni környezet a csatornaparttól 200 m-re, a szabadstrand, hajókikötő 400 m.

Ár: 59.5 millió Ft

Tervezett átadás: 2026 nyara

Ha egy modern, gondtalan otthont keresel a Balaton közelében – akár saját részre, akár befektetésnek – ez egy kiváló lehetőség!

Alaprajz és műszaki tartalom leírásért érdeklődj üzenetben vagy vedd fel velünk a kapcsolatot.

2026.04.30-ig megtörténő szerződéskötés esetén egy Wellis jakuzzit vagy öntözőrendszert adunk ajándékba!

Családi ház részletei

Ár: 59 500 000 Ft
Méret: 42 négyzetméter
Azonosító: 11609396
Irodai azonosító: 394262
Cím: Tóparti panoráma, új építés!
Telek: 300 négyzetméter
Ingatlan állapota: Kitűnő
Jelleg: ikerház
Építőanyag: Könnyűszerkezetes
Fűtés jellege: Egyéb
Komfort fokozat: Összkomfort
Kor: Új építésű
Szintek száma: Földszintes
Egész szobák: 2

Egyéb jellemzők

  • Csatorna
  • Garázs
  • Pince
  • Terasz

Térkép