Eladó családi ház Balatonmáriafürdő 45 000 000 Ft

Leírás

Könnyűszerkezetes szerkezetkész ikerház fele- BALATONMÁRIAFÜRDŐ FŐUTCÁJÁN -alakítsa saját otthonát, a Balaton közelében:

Csendes, nyugodt környezetben, mégis frekventált helyen kínálunk eladásra egy 79 m2-es ikerházat Balatonmáriafürdőn, 380 m2-es nyeles telken.

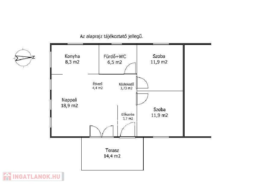
Elrendezés:
1 tágas nappali
2 hálószoba
konyha + étkező + előszoba
fürdőszoba WC-vel
udvari parkolási lehetőség
Az ingatlan szerkezetkész állapotú: kívülről minden készen van, belül pedig az új tulajdonosra vár a végső kialakítás: gipszkartonozás, burkolatok, festés és egyéb szakipari munkák. Így teljes mértékben saját igényei szerint formálhatja álmai otthonát vagy nyaralóját.
Közművek: Víz, villany, szennyvíz bekötve a házba. Gázcsonk az utcában.
Tervezett fűtés: elektromos klíma
Építési engedély rendelkezésre áll, használatbavételi engedély még nincs - viszont az egyik legnagyobb előnye éppen az, hogy a belső kialakítás teljes mértékben szabadon választható.
Ideális választás saját otthonnak, nyaralónak vagy befektetésnek a Balaton part közelében. Télen, nyáron programok a településen. A MÓLÓ melletti kikötőből indul hajójárat a Balaton északi városaiba. ( Keszthely, Badacsony...stb) A faluba egyre több a beköltöző. Központjában igényes üzletek, éttermek, híres DISCO, és a még híresebb FLORIDA fagyizó várja a lakókat és a kirándulókat. Kiépített Központi Strandja és szabad strandjai, csónakkikötő és a Nyugati csatorna horgász lehetősége kihagyhatatlan az itt lakók és nyaralók számára.
Ne szalassza el ezt a kivételes lehetőséget, hívjon és tekintse meg személyesen!

Referencia szám: M304758

Családi ház részletei

Ár: 45 000 000 Ft
Méret: 79 négyzetméter
Azonosító: 11604286
Irodai azonosító: M304758-4956543
Telek: 350 négyzetméter
Ingatlan állapota: Épülő
Jelleg: ikerház
Építőanyag: Könnyűszerkezetes
Fűtés jellege: Villany
Fűtés módja: Villany
Komfort fokozat: Összkomfort
Kor: Új építésű
Szintek száma: Földszintes
Egész szobák: 1
Fél szobák: 2

Egyéb jellemzők

  • Garázs

Térkép

Hasonló családi ház hirdetések

Eladó családi ház

Balatonmáriafürdő

Eladó új építésű könnyűszerkezetes ingatlan Balatonmáriafürdőn!A ...

Eladó családi ház

Balatonmáriafürdő

❓ Szeretne Ön is egy ilyen, vagy ehhez hasonló új építésű családi ...

Hasonló családi ház hirdetések

Eladó családi ház

Balatonmáriafürdő

Eladó új építésű könnyűszerkezetes ingatlan Balatonmáriafürdőn!A ...

Eladó családi ház

Balatonmáriafürdő

❓ Szeretne Ön is egy ilyen, vagy ehhez hasonló új építésű családi ...