Eladó családi ház Balatonrendes 89 900 000 Ft

Leírás

Balatonrendesen eladó kétlakásos ikerház!

Balatonrendes
telekterület: 700 m2 (350-350)
alapterület: 76 m2 lakásonként
A lakások külön és egyben is eladók!
Irányár: 89.9 MHUF

Az ingatlan Pálköve strandjától pár száz méterre található, nyugodt kis utcában. A ház 2024-ben épület, a belső burkolatokat, szaniterek a leendő tulajdonos még kiválaszthatja. A ház fűtését elektromos fűtőpanelek és hűtő-fűtő klíma biztosítja.
A ház hangulatos, elrendezése praktikus, méreteit tekintve tökéletes nyaralónak, lakásnak. Igazán jó választás befektetésnek is!


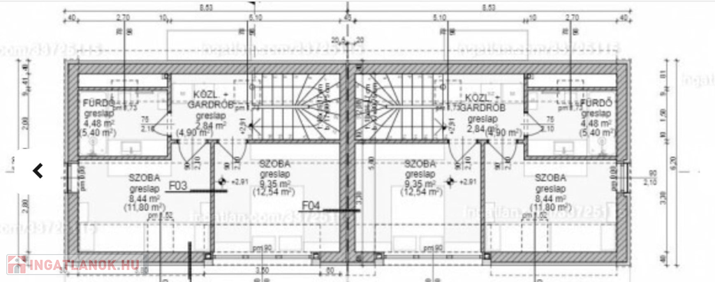
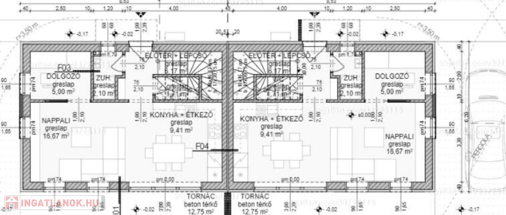
A lakások elrendezése:
-földszint: fürdőszoba tusolóval, mellékhelyiség, félszoba, konyha étkező és nappali egy légtérben, terasz.
-tetőtér: közlekedő, két szoba, furdőszoba, mellékhelyiség

műszaki adatok:
-falazat: Porotherm Dry Fix 30-as tégla
-10 cm külső szigetelés
-falusi CSOK igényelhető
-lakások válaszfala: dupla falazat 2*20 cm és hangszigetelés választja el egymástól.
- 3 rétegű fa ablakok
-grafitos homlokzati szigetelés
-cseréptető
-elektromos bojler
-külön mérőóra

Részletekkel, megtekintéssel kapcsolatban keress bizalommal!
(bemutató videó az oldalamon)
Tel.: +3620 237 5558

Családi ház részletei

Ár: 89 900 000 Ft
Méret: 76 négyzetméter
Azonosító: 11540259
Telek: 350 négyzetméter
Ingatlan állapota: Kérdezzen rá a hirdetőtől »
Jelleg: ikerház
Építőanyag: Tégla
Fűtés jellege: Villany
Fűtés módja: Villany
Komfort fokozat: Dupla komfort
Kor: Új építésű
Szintek száma: Földszint + tetőtér
Egész szobák: 3
Fél szobák: 1
Nappalik: 1

Egyéb jellemzők

  • Beépíthető tetőtér
  • Csatorna
  • Garázs
  • Melléképület
  • Parketta
  • Pince
  • Terasz