Eladó családi ház Balmazújváros 104 900 000 Ft

Leírás

Balmazújvároson hőszivattyús, amerikai konyhás - tágas nappalival rendelkező 3 hálószobás, új építésű családi ház eladó!

Közelében, üzletek, helyi buszmegálló, iskola, óvoda. Kiváló választás, ha Debrecen közeli településen szeretné megtalálni új otthonát.
Megbízható igényes kivitelezési munka, 2026 II- III. negyedévi átadással.
Minőségi kivételezés mellett nagy hangsúly kerül az esztétikus megjelenésre is.

A családi ház paraméterei:
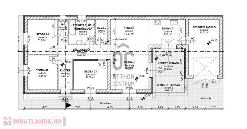
- telek mérete: 486 nm
- a ház hasznos alapterülte: 125 nm
- falazata: 30 cm -es Phorotherm tégla+ 15 cm vastag külső szigetelés
- 3 rétegű hőszigetelt, kívül színes műanyag nyílászárók
- beépített, elektromos alumínium redőnyök
- gazdaságos, hőszivattyús rendszer biztosítja a használati meleg vizet és az otthon melegét melyhez a padlófűtés biztosítja a kellemes hőérzetet. hűtését nagyteljesítményű klíma biztosítja
- antracit szinű, 3 rétegű, hőszigetelt üvegezéssel rendelkező, műanyag nyílászárók teszik világossá a teret, melyekhez beépített elektromos redőnyök készülnek
- új, épített kerítés, térkövezett járda és gépkocsi beállók.
- tágas világos terek és ideális térkihasználás jellemzi
- fedett terasszal kapcsolatos konyha- étkező- nappali, 3 kényelmes méretű hálószoba, fürdőszoba és külön WC, mosókonyha és széles közlekedő
- lakótérrel kapcsolatos 19nm- s garázs
- az építkezés előrehaladott állapotban van, de még saját elképzelései szerint alakíthatja a belső színvilágot (burkolat, szaniter, falszín még választható)


A városból Debrecen gyorsan, dugómentesen megközelíthető, akár saját gépkocsival, akár a folyamatosan fejlődő tömegközlekedéssel.
Azoknak akik szeretik a kertvárosi, zöld környezetet, és fontos a nagyváros közelsége is.
Hívjon, foglaljon időpontot a megtekintéshez!










Hajdú-Bihar, Debrecen, Balmazújváros, ház, kert, eladó, új, modern, hőszivattyú, energiatakarékos, család, BMW, otthon,
Angol leírás

Családi ház részletei

Ár: 104 900 000 Ft
Méret: 126 négyzetméter
Azonosító: 11611650
Telek: 486 négyzetméter
Ingatlan állapota: Kitűnő
Jelleg: családi ház
Építőanyag: Kérdezzen rá a hirdetőtől »
Egész szobák: 4

Egyéb jellemzők

  • Csatorna
  • Garázs
  • Kábel TV
  • Melléképület
  • Parketta
  • Pince
  • Terasz

Hasonló családi ház hirdetések

Eladó családi ház

Balmazújváros

Eladásra kínálunk egy tágas, napfényes, kétszintes családi házat, amely ...

Hasonló családi ház hirdetések

Eladó családi ház

Balmazújváros

Eladásra kínálunk egy tágas, napfényes, kétszintes családi házat, amely ...