Eladó családi ház Békéscsaba 58 500 000 Ft

Leírás

Ikerház Békéscsaba közkedvelt utcájában eladó!

Békéscsabán eladó egy kétszintes,140 m²-es ikerház, mely az Árpád fürdő közelében épült.
Irányár 58,5 M Ft., amely alkuképes.
Az ingatlan zöldövezetben, belvároshoz közeli csendes utcában található, így a természet kedvelői sem fognak csalódni.
Tökéletesen megfelel egy nagyobb család igényeinek is.
Az ingatlanhoz tartozik egy terasz, ahol akár grillezni is összejöhet a család.
A kertkapcsolat lehetővé teszi, hogy a friss levegőn üldögélve élvezze a természet szépségét.

Ajánlom olyan családoknak, akik kertes ház életérzésre vágynak, de kevés munkával fenntartható otthont szeretnének.

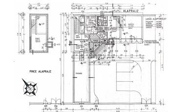
Főbb jellemzők:
- 140 m2
- nappali
- 4 szoba
- konyha
- 2 fürdőszoba
- 2 WC
- terasz
- 2 erkély
- cirkó kazán
- redőny, szúnyogháló
- garázs
- három fázisú áram
- csendes környék
- jó szomszédok

Jöjjön el, nézze meg és lássa meg a benne rejlő potenciált!

Jelenlegi és leendő ügyfeleinknek teljesen díjmentes hitelügyintézést, valamint ingatlan vásárlás-bérbe adás előtti, díjmentes, előzetes ügyvédi tanácsadást kínálunk.
Amennyiben kérdése merül fel, illetve megtekintené, kérem keressen elérhetőségemen!

Bagi Tamás
+36 30 880 3888
bagi.tamas@varos.hu
(További képekért és információkért kérem hívjon!)

Családi ház részletei

Ár: 58 500 000 Ft
Méret: 140 négyzetméter
Azonosító: 11500606
Irodai azonosító: 416201
Erkély mérete: 6.00 négyzetméter
Telek: 571 négyzetméter
Ingatlan állapota: Átlagos
Jelleg: ikerház
Építőanyag: Tégla
Fűtés jellege: Cirkó
Egész szobák: 5
Nappalik: 1

Egyéb jellemzők

  • Beépíthető tetőtér
  • Csatorna
  • Garázs
  • Melléképület
  • Pince
  • Terasz

Hasonló családi ház hirdetések

Eladó családi ház

Békéscsaba

Békéscsabán, belváros közeli utcában, kétlakásos, nagypolgári családi ...

Eladó családi ház

Békéscsaba

Különleges adottságú családi ház eladó Békéscsabán, a Bánát utcában Békéscsabán, ...

Eladó családi ház

Békéscsaba

Békéscsabán, az Orosházi út közelében eladó egy 127 nm-es, igényesen ...

Eladó családi ház

Békéscsaba

Békéscsabától 10km-re 5 szobás+ nappalis, két fürdőszobás, hőszigetelt ...

Hasonló családi ház hirdetések

Eladó családi ház

Békéscsaba

Békéscsabán, belváros közeli utcában, kétlakásos, nagypolgári családi ...

Eladó családi ház

Békéscsaba

Különleges adottságú családi ház eladó Békéscsabán, a Bánát utcában Békéscsabán, ...

Eladó családi ház

Békéscsaba

Békéscsabán, az Orosházi út közelében eladó egy 127 nm-es, igényesen ...

Eladó családi ház

Békéscsaba

Békéscsabától 10km-re 5 szobás+ nappalis, két fürdőszobás, hőszigetelt ...