Eladó családi ház Biatorbágy 149 900 000 Ft

Leírás

Biatorbágyon, FREKVENTÁLT helyen kínálunk eladásra egy sokféleképpen hasznosítható, felújítandó, autentikus parasztházat, melyhez kivételesen nagy terület tartozik. Az épület régi, hiszen 1917-ben épült, viszont megőrizte a régi idők báját, amit igazán csak a helyszínen érez át az ember, mikor látja.

Az ingatlan kimondottan alkalmas bármilyen tevékenységre, melyhez szükséges a központi elhelyezkedés, a kitűnő megközelíthetőség és az utcafronti üzlethelyiség.
A HATALMAS telken, mely 2881nm, lehetőség van további telephely kialakítására is.

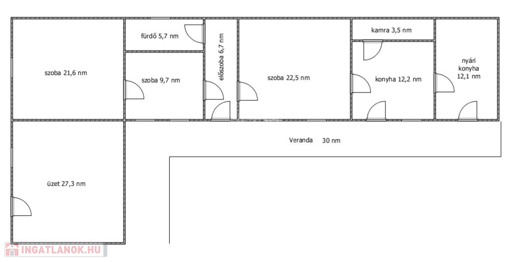
Autentikus tornácos ház – 136 m²

Két utcafronti szoba, amelyek közül az egyik ÜZLETHELYISÉGKÉNT is használható!
További két szoba, előszoba, konyha, fürdőszoba és egy nyári konyha biztosítja a kényelmet.
A helyiségek között kényelmes átjárás biztosított.
Az épülethez gazdasági melléképületek is kapcsolódnak.

Az épület vegyes falazatú, fafödémes, palatetős, nyílászárói fából készültek, a fűtést gáz cirkó biztosítja, alternatív megoldásként kályha is használható.

A telken különálló kocsibeálló áll rendelkezésre legalább két személyautónak, emellett találunk egy jó állapotú pincét is.

✅ Kiváló elhelyezkedés – frekventált környék, könnyű megközelíthetőség

A telek előtt parkolási lehetőség biztosított.
Buszmegálló a közelben.
Autóval is könnyen megközelíthető.

Utcafronti üzlethelyiség kialakítására alkalmas – ha vállalkozásban gondolkodsz, ez a helyszín garantáltan észrevehető!

Belső képek igény esetén e-mailben kérhetők.

Feltétlenül telefonáljon, ha VÁLLALKOZÁSÁHOZ olyan telephelyre van szüksége, mely könnyen észrevehető, jól megközelíthető és bővíthető!

Családi ház részletei

Ár: 149 900 000 Ft
Méret: 136 négyzetméter
Azonosító: 11458149
Irodai azonosító: 376748
Cím: Nagy telekkel központi helyen
Telek: 2881 négyzetméter
Ingatlan állapota: Átlagos
Jelleg: családi ház
Építőanyag: Kérdezzen rá a hirdetőtől »
Fűtés jellege: Cirkó
Fűtés módja: Gáz
Komfort fokozat: Összkomfort
Kor: 50 évesnél régebbi
Szintek száma: Földszintes
Egész szobák: 2
Fél szobák: 1

Egyéb jellemzők

  • Csatorna
  • Garázs
  • Pince
  • Terasz

Térkép

Hasonló családi ház hirdetések

Eladó családi ház

Biatorbágy

Nem minden napi ajánlat, ez az ingatlan azoknak szól, akik nem ijednek meg ...

Eladó családi ház

Biatorbágy

Kedves Ingatlankereső! Ajánlom figyelmébe,ezt a családi házat,Biatorbágy ...

Eladó családi ház

Biatorbágy

Modern, energiatakarékos otthon Biatorbágy szívében! Eladó szép lakás ...

Eladó családi ház

Biatorbágy

SZARVASUGRÁS LAKÓPARK – PANORÁMÁS IKERHÁZ BIATORBÁGYON Ha csendes, ...

Hasonló családi ház hirdetések

Eladó családi ház

Biatorbágy

Nem minden napi ajánlat, ez az ingatlan azoknak szól, akik nem ijednek meg ...

Eladó családi ház

Biatorbágy

Kedves Ingatlankereső! Ajánlom figyelmébe,ezt a családi házat,Biatorbágy ...

Eladó családi ház

Biatorbágy

Modern, energiatakarékos otthon Biatorbágy szívében! Eladó szép lakás ...

Eladó családi ház

Biatorbágy

SZARVASUGRÁS LAKÓPARK – PANORÁMÁS IKERHÁZ BIATORBÁGYON Ha csendes, ...