Eladó családi ház Bicske 98 900 000 Ft

Leírás

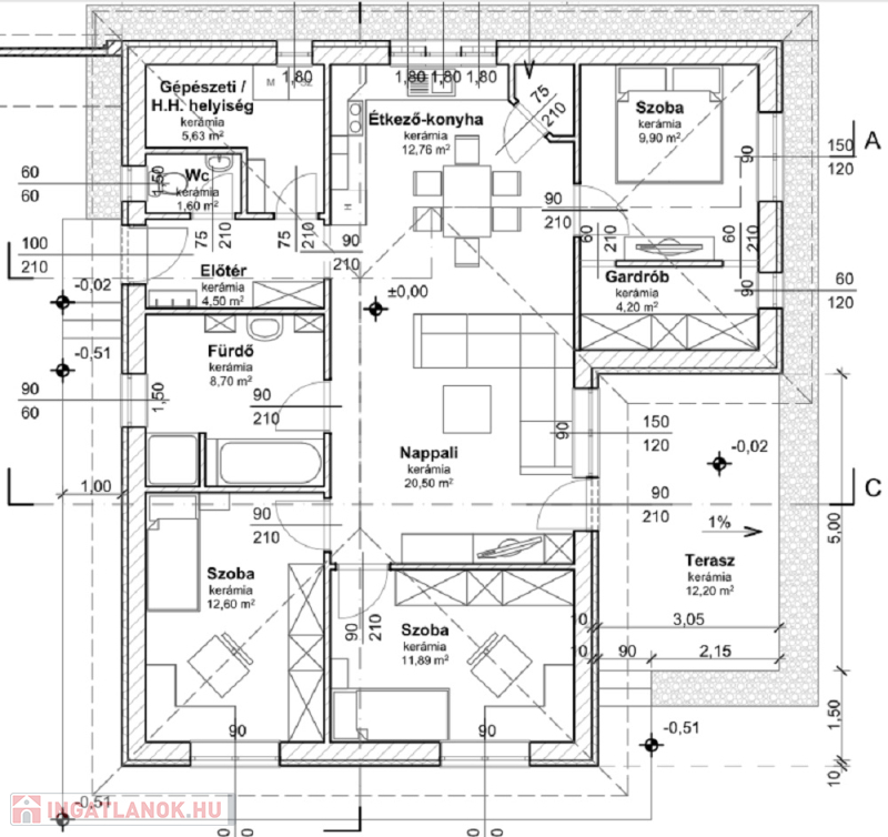
Eladó Bicske kertvárosi részén egy földszintes, nettó 92,28 nm-es családi ház a hozzá tartozó 500 nm-es telekkel, különálló dupla garázzsal!

Nappali + 3 hálószoba (9,10,12 nm), fürdőszoba WC-vel + külön WC.

Műszaki paraméterek:
30-as Ytong falazat rajta 10 cm dryvit szigeteléssel
Beton tetőcserép
3 rétegű műanyag fehér nyílászárók
Minden helyiségben padlófűtés hőszivattyús rendszerrel
H-tarifás villanyóra
Elektromos redőny illetve klíma előkészítés

A telek osztott tulajdonú, társasházi alapító okirattal kerül átadásra. Különálló épület, megközelítése nyélen keresztül történik.
Burkolatok szabadon választhatók. Használatbavételi engedély előre láthatóan 2026 márciusára várható.
A ház megfelel az új CSOK Plusz feltételeinek, illetve igénybe vehető rá a az Otthon Start hitel is, így különösen jó lehetőség azoknak, akik saját elképzeléseik alapján szeretnék kialakítani otthonukat.

Az ingatlan kedvező elhelyezkedése és infrastruktúrája, rendkívül vonzóvá teszi. Több útvonalon is megközelíthető Budapest.

Bankfüggetlen hitel tanácsadónk díjmentesen áll az Ön rendelkezésére! Keressen bizalommal!

A hirdetésben szereplő adatok, információk, képek, alaprajzok stb... tájékoztató jellegűek! Irodánk az esetleges elírásokért felelősséget nem tud vállalni!

Tájékoztatjuk a Tisztelt Érdeklődőket, hogy az ingatlan hirdetésében szereplő telefonszám felhívásával Önök hozzájárulnak személyes adataik (név, telefonszám), a hirdetést feladó Kft. - által a bizalmas kezeléshez és nyilvántartáshoz.

További információért hívjon bizalommal a hét minden napján! Köszönöm, hogy időt szánt hirdetésemre, sikeres ingatlanvásárlást kívánok!

Családi ház részletei

Ár: 98 900 000 Ft
Méret: 92 négyzetméter
Azonosító: 11569742
Cím: Bicske kertváros
Telek: 500 négyzetméter
Ingatlan állapota: Kitűnő
Jelleg: családi ház
Építőanyag: Kérdezzen rá a hirdetőtől »
Szintek száma: 1 szint
Egész szobák: 4

Egyéb jellemzők

  • Csatorna
  • Garázs
  • Kábel TV
  • Melléképület
  • Parketta
  • Pince
  • Terasz

Hasonló családi ház hirdetések

Eladó családi ház

Bicske

Eladó Bicske kertvárosi részén egy kétszintes, nettó 126 nm-es családi ...

Eladó családi ház

Bicske

BICSKE VÁROSÁBAN IKERHÁZ ELADÓ! CSAK A HOME&HOME INGATLAN KÍNÁLATÁBAN! Bicske ...

Eladó családi ház

Bicske

Eladó Bicske kertvárosi részén egy földszintes, nettó 102 nm-es önálló ...

Eladó családi ház

Bicske

Új építésű, modern technológiával készült, bruttó 119 nm-es ikerház ...

Hasonló családi ház hirdetések

Eladó családi ház

Bicske

Eladó Bicske kertvárosi részén egy kétszintes, nettó 126 nm-es családi ...

Eladó családi ház

Bicske

BICSKE VÁROSÁBAN IKERHÁZ ELADÓ! CSAK A HOME&HOME INGATLAN KÍNÁLATÁBAN! Bicske ...

Eladó családi ház

Bicske

Eladó Bicske kertvárosi részén egy földszintes, nettó 102 nm-es önálló ...

Eladó családi ház

Bicske

Új építésű, modern technológiával készült, bruttó 119 nm-es ikerház ...