Eladó családi ház Bocfölde 139 000 000 Ft

Leírás

Zalaegerszegtől pár percre, csendes kis településen, Bocföldén, új építésű családi ház várja tulajdonosát.
Az ingatlan építése még folyamatban van, így akár igény szerint is alakítható, ha időben megállapodik a kivitelezővel.
A ház egy 2275m2-es telken kerül megépítésre, beton alappal, 30-as Porotherm téglával, beton födémmel, antracit tetőcseréppel. Az épület 2 szinttel rendelkezik.
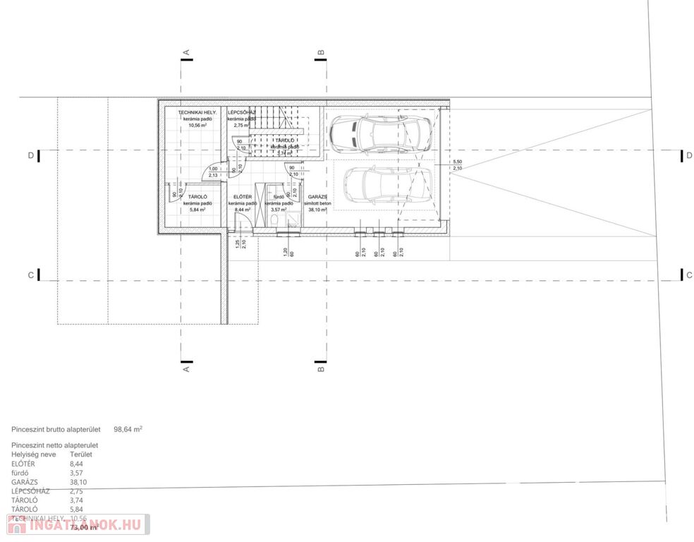
Alsó szinten kialakításra került, egy 38 m²-es dupla garázs, előtér, fürdő, két tároló, valamint a hőszivattyús fűtési és meleg víz ellátást biztosító gépészeti helyiség.
Felső szint: amerikai konyhás étkezős nappali, három hálószoba, egy fürdő, egy háztartási helyiség, valamint egy külön mellékhelység. A nappaliból egy 32 m²-es teraszra léphetünk ki.
(Mindezen helységek még variálhatók)
A ház melegét egy modern hőszívatyus rendszer, padlófűtéssel fogja szolgáltatni.
Az épület szigeteléséről 20cm homlokzati szigetelés és a 3 rétegű műanyag profilszerkezetű nyílászárok fognak gondoskodni.
Ha Ön szeretne egy jó elosztású modern belső térrel rendelkező, új családi házat közvetlen Zalaegerszeg szomszédságában, panorámás kilátással, csendes utcában, akkor ez az ingatlan kiváló választás lehet.
(További képekért és információkért kérem hívjon!)

Családi ház részletei

Ár: 139 000 000 Ft
Méret: 216 négyzetméter
Azonosító: 11600847
Irodai azonosító: 002617
Telek: 2275 négyzetméter
Ingatlan állapota: Kitűnő
Jelleg: családi ház
Építőanyag: Tégla
Fűtés jellege: Hőszivattyú
Egész szobák: 3
Nappalik: 1

Egyéb jellemzők

  • Beépíthető tetőtér
  • Csatorna
  • Garázs
  • Melléképület
  • Pince
  • Terasz

Hasonló családi ház hirdetések

Eladó családi ház

Bocfölde

PANORÁMÁS, PRÉMIUM, ÚJ ÉPÍTÉSŰ CSALÁDI HÁZ BOCFÖLDÉN – ZALAEGERSZEGTŐL ...

Hasonló családi ház hirdetések

Eladó családi ház

Bocfölde

PANORÁMÁS, PRÉMIUM, ÚJ ÉPÍTÉSŰ CSALÁDI HÁZ BOCFÖLDÉN – ZALAEGERSZEGTŐL ...