Eladó családi ház Bocskaikert 100 000 000 Ft

Leírás

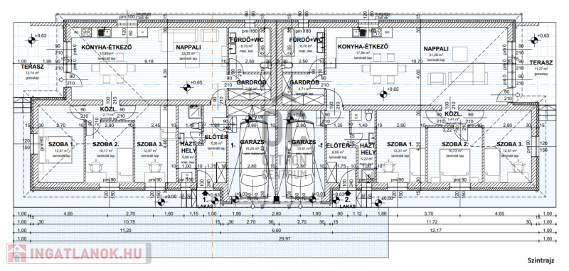
2. lakás Br.132 nm egy szinten, nagy telekhányaddal:

- amerikaikonyhás nappali (49 nm) teraszkapcsolattal
- 3 hálószoba (13,11,13 nm)
- 2 fürdőszoba (kád és tusoló kialakítással)
- gardrób (5 nm)
- garázs (15 nm)
- kertkapcsolat (660 nm).
Projekt bemutatása

Debrecentől mindössze 10 km-re, Bocskaikert könnyen megközelíthető, családiházas övezetében épül egy kétlakásos ikerház projekt, várható 2027. I. negyedévi átadással.
Az ingatlanok saját kertkapcsolattal rendelkeznek, nyugodt, kertvárosias környezetben, mégis kiváló infrastruktúrával.

A modern műszaki tartalom a mai kor elvárásaihoz igazodik, energiatakarékos és hosszú távon gazdaságos fenntartást biztosít:

Műszaki jellemzők:
- POROTHERM 30 N+F téglafalazat
- 15 cm homlokzati hőszigetelés
- hőszivattyús fűtés padlófűtéssel
- háromrétegű üvegezésű műanyag nyílászárók
- 3,5 kW inverteres klíma
- Tondach cserépfedés
- térkövezett külső felületek
- 9.000 Ft/m² választható hideg–meleg burkolatok
- lakások között dupla falazat + 5 cm kőzetgyapot hangszigetelés

A teljes műszaki dokumentáció érdeklődés esetén elérhető.

Környezet és infrastruktúra:
Bölcsőde, óvoda, iskola, gyógyszertár, posta, piac és bevásárlási lehetőségek a közelben. A vasút és buszközlekedés kiváló, Debrecen belvárosa kb. 15 perc alatt elérhető.

Az E573-as elkerülő gyors megközelítést biztosít, a debreceni ipari park, a BMW és az akkumulátorgyár néhány perc alatt elérhető — ideális saját otthonnak és befektetésnek egyaránt.

Kedvező ár-érték arány, rugalmas fizetési ütemezés

Várható átadás: 2027. március

3%-os Start Hitel és CSOK+ teljeskörű, díjmentes ügyintézéssel banki partnerünk segítségével — akár irodánkban, akár otthonában.

További információkért és részletekért várom megkeresését!

Családi ház részletei

Ár: 100 000 000 Ft
Méret: 126 négyzetméter
Azonosító: 11600523
Telek: 1000 négyzetméter
Ingatlan állapota: Kitűnő
Jelleg: ikerház
Építőanyag: Kérdezzen rá a hirdetőtől »
Egész szobák: 4

Egyéb jellemzők

  • Csatorna
  • Garázs
  • Kábel TV
  • Melléképület
  • Parketta
  • Pince
  • Terasz

Hasonló családi ház hirdetések

Eladó családi ház

Bocskaikert

Sokak által keresett, Debrecentől mindössze 10 perc autóútra lévő Bocskaikertben ...

Eladó családi ház

Bocskaikert

**Eladó Családi Ház Bocskaikertben – Kényelmes Otthon Zöld Övezetben** Álmai ...

Eladó családi ház

Bocskaikert

A rendkívül népszerű Bocskaikertben tágas, nappali+3 szobás felújított ...

Eladó családi ház

Bocskaikert

Bocskaikert központi részén, a Véndiófa Csárdához közeli utcában eladó, ...

Hasonló családi ház hirdetések

Eladó családi ház

Bocskaikert

Sokak által keresett, Debrecentől mindössze 10 perc autóútra lévő Bocskaikertben ...

Eladó családi ház

Bocskaikert

**Eladó Családi Ház Bocskaikertben – Kényelmes Otthon Zöld Övezetben** Álmai ...

Eladó családi ház

Bocskaikert

A rendkívül népszerű Bocskaikertben tágas, nappali+3 szobás felújított ...

Eladó családi ház

Bocskaikert

Bocskaikert központi részén, a Véndiófa Csárdához közeli utcában eladó, ...