Eladó családi ház Bocskaikert 73 900 000 Ft

Leírás

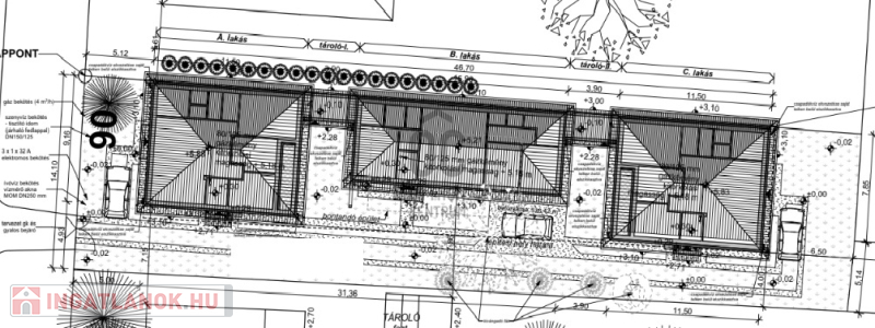
Bocskaikert központjában 2026. II. negyedévi átadással eladó egy nettó 84 m2-es, földszintes, nappali-amerikai konyha - étkező + 3 külön nyíló szobás ház, saját kis kertrésszel, gépkocsibeállóval, az alábbi paraméterekkel:

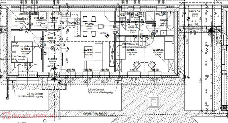
-Nappali-amerikai konyha + 3 külön nyíló szoba
-Földszintes kialakítás
-Porotherm 30 falazóblokkból + 15 cm hőszigetelés
-Gázcirkó fűtés, igény szerint padlófűtés
-Betoncserép fedés
-Fedett terasz, épített tároló
-Saját kertrész, gépkocsibeállási lehetőséggel
-Második gépkocsinak van hely az épület előtt
-Klíma, 3 rétegű, hőszigetelt műanyag nyílászárók, minimális rezsi
-Társasház alapító okirattal, önálló helyrajzi számra kerülő lakások, CSOK+ alkalmasak
-A lakóegységek csak a tárolóknál csatlakoznak, ebből fakadóan a lakások teljesen különálló épületek, külön tetőszerkezettel
-Az átgondolt tervezésnek köszönhetően dupla komfortos ingatlanok épülnek, a szülői hálóból külön zuhanyzó és WC nyílik a közös fürdőszoba mellett. A különálló 2. WC mellett még egy háztartási helyiség is helyet kapott.
-A tárolónak vasbeton alap készül, egybe lesz öntve az épülettel, igényesen kerül kivitelezésre
-A középső lakásban a szülői hálóban master bedroom kerül kialakításra, gardrób és fürdő épül, a konyhából pedig egy kamra és háztartási helyiség is nyílik.

Minden helyi célpont kényelmes sétatávolságra található, Debrecen központja még a reggeli csúcsban is 13 perc alatt elérhető.
Az építkezés elkezdődött, 2026. nyarán költözhető, hitel, CSOK+ igényelhető.
Részletes műszaki tartalommal, megtekintési időponttal kapcsolatban várjuk hívását a hét minden napján!

Családi ház részletei

Ár: 73 900 000 Ft
Méret: 75 négyzetméter
Azonosító: 11547368
Telek: 64 négyzetméter
Ingatlan állapota: Kitűnő
Jelleg: családi ház
Építőanyag: Kérdezzen rá a hirdetőtől »
Fűtés jellege: Cirkó
Egész szobák: 4

Egyéb jellemzők

  • Csatorna
  • Garázs
  • Kábel TV
  • Melléképület
  • Parketta
  • Pince
  • Terasz

Hasonló családi ház hirdetések

Eladó családi ház

Bocskaikert

Bocskaikertben kétlakásos családi ház, saját 200m2-es kertkapcsolattal, ...

Eladó családi ház

Bocskaikert

Bocskaikert csendes, nyugodt részén, 524 m²-es telken modern kialakítású, ...

Eladó családi ház

Bocskaikert

Eladó családi ház, Debrecen mellett a Bocskaikertben! Kivételes lehetőség! ...

Eladó családi ház

Bocskaikert

Bocskaikert csendes, nyugodt részén, 570 m²-es telken modern kialakítású, ...

Hasonló családi ház hirdetések

Eladó családi ház

Bocskaikert

Bocskaikertben kétlakásos családi ház, saját 200m2-es kertkapcsolattal, ...

Eladó családi ház

Bocskaikert

Bocskaikert csendes, nyugodt részén, 524 m²-es telken modern kialakítású, ...

Eladó családi ház

Bocskaikert

Eladó családi ház, Debrecen mellett a Bocskaikertben! Kivételes lehetőség! ...

Eladó családi ház

Bocskaikert

Bocskaikert csendes, nyugodt részén, 570 m²-es telken modern kialakítású, ...