Eladó családi ház Borsodszirák 17 700 000 Ft

Leírás


Eladásra kínálunk egy 85 m²-es, bővített családi házat Miskolctól mindössze 22 km-re, Edelény közelében, csendes és nyugodt környezetben. Az ingatlan kiváló választás mindazok számára, akik szeretnék élvezni a természet közelségét és a vidéki élet kényelmét, ugyanakkor fontos számukra a városok gyors és egyszerű megközelíthetősége.

 

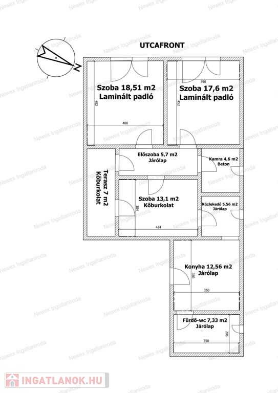
A ház elosztása átgondolt és praktikus: három külön bejáratú szoba, előszoba, kamra és közlekedő biztosítják a jól használható tereket. Az épület eredetileg klasszikus „kádár kocka” kialakítással épült, későbbi bővítéssel azonban tágas konyha, fürdőszoba WC-vel, pince és tároló is helyet kapott, ezzel növelve az ingatlan értékét és komfortját.

 

A korszerűsítések során modern műanyag nyílászárók kerültek beszerelésre. A fűtésről gázkonvektorok gondoskodnak, a melegvíz ellátást villanybojler biztosítja. Az udvar rendezett és gondozott, ahol több termő gyümölcsfa is megtalálható. A telken garázs is rendelkezésre áll, amely további gyakorlati előnyt jelent.

 

Ez az ingatlan ideális lehet mindazok számára, akik szeretnének kiszakadni a város zajából, de nem szeretnének lemondani a könnyű megközelíthetőségről. Miskolc és Edelény közelsége miatt a lokáció kifejezetten kedvező.

 

Jöjjön el, tekintse meg személyesen, és fedezze fel, milyen otthont alakíthat ki ebből a barátságos, jó adottságokkal rendelkező házból.

Családi ház részletei

Ár: 17 700 000 Ft
Méret: 85 négyzetméter
Azonosító: 11565349
Irodai azonosító: 698900685
Cím: Rákóczi Ferenc utca
Telek: 1154 négyzetméter
Ingatlan állapota: Felújítandó
Jelleg: családi ház
Építőanyag: Kérdezzen rá a hirdetőtől »
Fűtés jellege: Konvektoros
Komfort fokozat: Összkomfort
Egész szobák: 3