Eladó családi ház Budakalász 210 000 000 Ft

Leírás

BUDAKALÁSZON, SZENT ISTVÁN-TELEPEN ELADÓ EGY ÖNÁLLÓ CSALÁDI HÁZ!



Telek mérete: 765 nm



A KÖRNYÉK:



Budakalász kedvelt részén Szent István-telepen helyezkedik el egy saroktelken, csupán 12 perces sétára a HÉV megállótól. A kiváló elhelyezkedés könnyen megközelíthetővé teszi a város iskoláit, óvodáit, illetve üzleteit egyaránt, mint például a Szentistvántelepi Általános Iskola, ami 7 perc és a Szent István-telepi óvoda, ami 8 perc gyalog.





A HÁZ JELLEMZŐI:



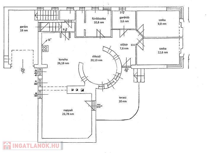
-A ház bővíthető, illetve lehetőség van még egy szoba kialakítására szükség esetén.

-A ház hasznos alapterülete: 120 nm.

-Plusz egy 18 nm-es garázs.

-Plusz egy 50 nm-es pince.

-Plusz egy 20 nm-es terasz.

-2003-ban épült, 30-as Porotherm téglából, a ház teljes falfelületét faragott kő borítja.

-10 cm-es Dryvit szigetelést kapott.

-A födém borovi fából készült, míg a garázsé vasbetonból.

-A tető cseréppel fedett, üveggyapot hőszigeteléssel.

-A nyílászárók 2 rétegűek, fából készültek, márvány ablakpárkányokkal.

-A fűtésért egy Vallaint gázkazán felel, hőleadás a padlón keresztül, a nappaliban és a két hálószobában peremfűtés lett kiépítve.

-Kétlépcsős fűtésrendszer lett kialakítva.

-A nappaliban található egy kandalló és egy cserépkályha is.

-A villanyvezeték és a fűtés csövezete rézből készült.

-Megtalálható melegvíz tározó is.

-A pincében egy szauna is helyet kapott.

-A kert rendezett, megtalálható benne egy épített kemence, egy 10 méter mély fúrt kút, illetve kerti csap is.

-A telken belül több autó számára is van lehetőség a parkolásra.







FINANSZÍROZÁS:

Tehermentes, banki finanszírozással is megvásárolható, melyben irodánk ingyenes tanácsadással áll rendelkezésükre!

VEVŐINK RÉSZÉRE A KÖZVETÍTÉS DÍJTALAN! A hirdetésben szereplő adatok tájékoztató jellegűek!

Családi ház részletei

Ár: 210 000 000 Ft
Méret: 139 négyzetméter
Azonosító: 11602530
Irodai azonosító: 24904
Telek: 765 négyzetméter
Ingatlan állapota:
Jelleg: családi ház
Építőanyag: Kérdezzen rá a hirdetőtől »
Fűtés jellege: Egyedi
Szintek száma: Földszintes
Egész szobák: 3

Hasonló családi ház hirdetések

Eladó családi ház

Budakalász

BUDAKALÁSZON ÚJ ÉPÍTÉSŰ, EGYSZINTES CSALÁDI HÁZ ELADÓ KIVÉTELES LOKÁCIÓVAL, ...

Hasonló családi ház hirdetések

Eladó családi ház

Budakalász

BUDAKALÁSZON ÚJ ÉPÍTÉSŰ, EGYSZINTES CSALÁDI HÁZ ELADÓ KIVÉTELES LOKÁCIÓVAL, ...