Eladó családi ház Budakeszi 349 900 000 Ft

Leírás

BUDAKESZIN, MÁRIAMAKKON, TÖBB GENERÁCIÓS, PANORÁMÁS, 550NM-ES, 10 + 6 FÉLSZOBÁS CSALÁDI HÁZ ELADÓ!

A Budakeszi erdő közelében, csendes nyugodt környezetben eladó egy 2005-ben épült, 3 szintes családi ház.
A szintek külön bejáratúak, ezért alkalmas lehet több generáció vagy több család számára is.

A fűtést és a meleg víz ellátást központosított gázkazán biztosítja. Újszerű fa nyílászárók redőnnyel és szúnyoghálóval.

ALSÓ SZINT:
- 2 kocsibeállós garázs (60 nm),
- WC (1,3 nm),
- raktár helységek (össz: 85 nm).
A raktárak egybenyitásával tökéletesen alkalmas lehet üzleti tevékenység végzésére, irodai szobák, edzőterem, spa-részleg kialakítására.

KÖZÉPSŐ SZINT:
- konyha (10,6 nm),
- tárgyaló, iroda (35 nm),
- nappali (33 nm),
- 2 fürdőszoba (5 nm; 5 nm),
- 2 WC (1,1 nm; 1,1 nm),
- 3 hálószoba (11,1 nm; 13,2 nm; 16 nm),
- gardrób (6 nm),
- panorámás terasz kertkapcsolattal (17 nm).


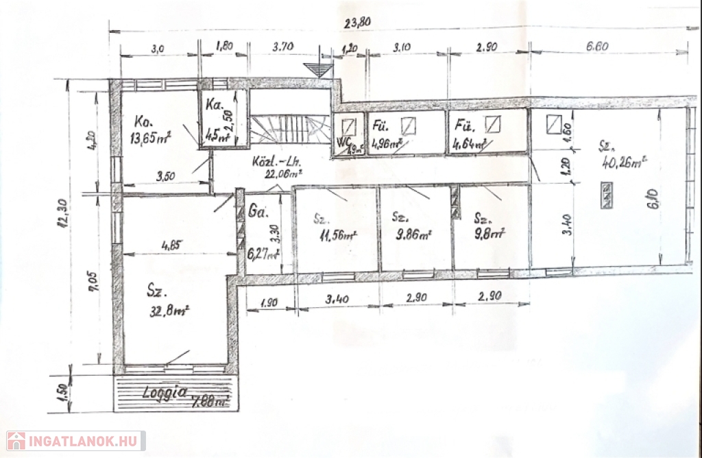
FELSŐ SZINT:
- konyha (13,7 nm),
- nappali (32,8 nm),
- gardrób (6,3 nm),
- 3 hálószoba (11,6 nm; 9,9 nm; 9,8 nm),
- 2 fürdőszoba (5 nm; 4,6 nm),
- WC (2 nm),
- iroda (40,3 nm).

Parkolási lehetőség 2 autó számára garázsban, további 3-4 autónak a garázs előtti területen.

A ház Budakeszi központi részén, a Fő utcához közel, mégis csendes részen található.

Iskola, óvoda, számos bevásárlási lehetőség, orvosi rendelő pár perces séta vagy rövid autós távolságon belül.

A tömegközlekedési lehetőségek közül BKV buszok (22, 22A, 222) Széll Kálmán téri végállomással, illetve a 188-as Volánbusz Kelenföldi végcéllal választhatóak.

Ha bármi további kérdése van vagy szeretné megtekinteni, kérem hívjon! Ha nem venném fel, visszahívom!

HITELRE VAN SZÜKSÉGE? Segítünk Önnek megtalálni a legjobb megoldást a legalacsonyabb kamatokkal! Ingyenes előbírálat, 4 hónapig érvényes hitelígérvénnyel!
AMENNYIBEN NEM RENDELKEZIK A TELJES VÉTELÁRRAL, segítünk Önnek megtalálni a legjobb megoldást!
BANKFÜGGETLEN hitelcentrumunk minden elérhető bank és hitelintézet ajánlatát versenyezteti az Ön kedvéért, ráadásul díjmentesen. Önnek nincs más dolga, mint elbeszélgetni munkatársunkkal, aki a hallott információk alapján versenyre hívja a bankokat, hogy Ön hosszú távon is a legjobb konstrukciót kaphassa. A legjobb ajánlatokból végül Ön választhatja ki a nyertest. Munkatársaink sokéves szakmai tapasztalattal várják Önt, előre egyeztetve akár a normál munkaidő után is.

Családi ház részletei

Ár: 349 900 000 Ft
Méret: 480 négyzetméter
Azonosító: 11419053
Irodai azonosító: 337005
Cím: Máriamakk
Telek: 1819 négyzetméter
Ingatlan állapota: Átlagos
Jelleg: családi ház
Építőanyag: Tégla
Fűtés jellege: Cirkó
Fűtés módja: Gáz
Komfort fokozat: Dupla komfort
Kor: 11-20 éves
Szintek száma: 2 szint
Egész szobák: 10
Fél szobák: 6

Egyéb jellemzők

  • Csatorna
  • Garázs
  • Pince
  • Terasz

Térkép

Hasonló családi ház hirdetések

Eladó családi ház

Budakeszi

Olyan érdeklődőknek ajánlom ezt azt ingatlant, akik már egy kész házba ...

Hasonló családi ház hirdetések

Eladó családi ház

Budakeszi

Olyan érdeklődőknek ajánlom ezt azt ingatlant, akik már egy kész házba ...