Eladó családi ház Budapest II. ker 124 900 000 Ft

Leírás

***II.kerület, HIDEGKÚTON, a TEMPLOM utcában CSALÁDI HÁZ eladó!***

***KIZÁRÓLAG AZ OTP INGATLAN KÍNÁLATÁBAN!***

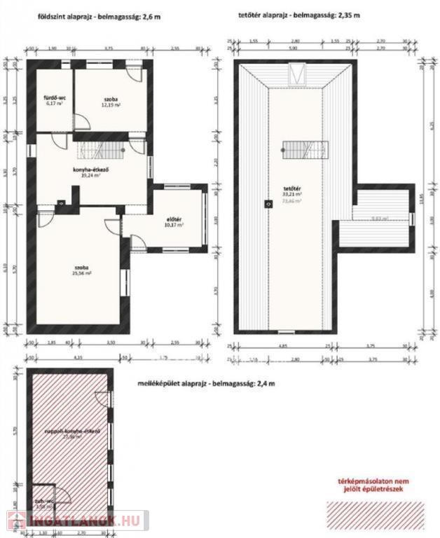
Budapest, II. kerületének Pesthidegkút-Ófalu részén, a Templom utcában ajánlom a figyelmébe ezt a 106 nm-es, sok lehetőséget kínáló ingatlant, ami 437 nm-es telken helyezkedik el.

A kétszobás földszinti rész felett a tetőtér beépítésre került, illetve a kert végében található egy különálló kisház is, aminek a területe 29 nm.
A FELÚJÍTANDÓ állapotú családi ház VEGYES szerkezetű, fűtése jelenleg nem megoldott.

ELŐNYÖK: különálló kisház, elszeparált kert, családi házas övezet, kellemes szomszédok, kiváló lokáció, többgeneráció számára is ideális, TISZTA TULAJDONI LAP.

LOKÁCIÓ: Pesthidegkút-Ófalu városrészben, a Templom utcában található az ingatlan, a Klebelsberg kastélytól minimális távolságra.
A Hidegkúti út és ezáltal a tömegközlekedés gyalogosan könnyen megközelíthető.

Ha ingatlan vásárlásával egy ÉRTÉKÁLLÓ BEFEKTETÉST is szeretne egyben, akkor ez egy remek lehetőség az ön számára.

Az OTP Ingatlanpont, mint egyetlen közvetlen banki hátterű ingatlanközvetítő társaság teljes körű ügyintézéssel és kedvezményes pénzügyi konstrukciókkal áll ügyfelei rendelkezésére!
VIP-szolgáltatást nyújtunk az OTP-hiteltermékek ügyintézésében.
Jogi és pénzügyi segítséget nyújtanak szakértőink, hogy az adásvétel folyamata gördülékeny legyen.

Ha felkeltette érdeklődését az ingatlan, kérem, hívjon bizalommal akar hétvégén is!

#2kerulet #telek

Családi ház részletei

Ár: 124 900 000 Ft
Méret: 106 négyzetméter
Azonosító: 11506290
Irodai azonosító: M298598-4897881
Cím: Eladó 106 nm-es ház Budapest 2. ker.
Telek: 437 négyzetméter
Ingatlan állapota: Felújítandó
Jelleg: családi ház
Építőanyag: Vegyes
Komfort fokozat: Komfort nélkül
Kor: 50 évesnél régebbi
Szintek száma: 1 szint
Egész szobák: 3

Térkép

Hasonló családi ház hirdetések

Eladó családi ház

Budapest II. ker

Pesthidegkúton örökpanorámás lakások ajándék konyhabútorral eladók! Tájvédelmi ...

Eladó családi ház

Budapest II. ker

Önálló kivitelezési lehetőség! A rugalmas építő rögtönzött akciója ...

Eladó családi ház

Budapest II. ker

II. KERÜLETI CSALÁDI HÁZ ELADÓ – PESTHIDEGKÚT-ÓFALU SZÍVÉBEN! Képzelje ...

Hasonló családi ház hirdetések

Eladó családi ház

Budapest II. ker

Pesthidegkúton örökpanorámás lakások ajándék konyhabútorral eladók! Tájvédelmi ...

Eladó családi ház

Budapest II. ker

Önálló kivitelezési lehetőség! A rugalmas építő rögtönzött akciója ...

Eladó családi ház

Budapest II. ker

II. KERÜLETI CSALÁDI HÁZ ELADÓ – PESTHIDEGKÚT-ÓFALU SZÍVÉBEN! Képzelje ...