Eladó családi ház Budapest II. ker 189 900 000 Ft

Leírás

Pesthidegkúton örökpanorámás lakások eladók!



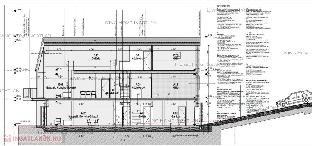
Tájvédelmi terület szomszédságában, csendes utcában örökpanorámás, déli tájolású, új építésű ingatlan mindkét lakása eladó. Az épület jelenleg 60%-os készültségű. A belső terek, a beosztás még alakítható, a burkolatokat a vevő saját ízlése szerint még kiválaszthatja,



Az egyik lakás 158 nm, a másik 153 nm, mindkettőhöz tartozik kizárólagos kerthasználat, valamint garázs. Az ár kulcsrakész állapotra értendő.




  • fűtés: levegő-hőszivattyús rendszer,

  • padló- és mennyezet hűtés,

  • Hörmann garázskapu,

  • klíma, kiépített kaputelefon,

  • egyedi beltéri nyílászárók, üvegkorlát.



Részletes dokumentációt, tervet, műszaki tartalmat kérésre küldök.



A lokáció kedvező: közelben Francia iskola, Német iskola, Amerikai, Spanyol iskola, sportolási lehetőség, uszoda.



Az alaprajz és az adatok tájékoztató jellegűek.



English:



Apartments with everlasting panoramic views for sale in Pesthidegkút!

In a quiet street, next to a landscape conservation area, both apartments of a new-build property with panoramic views, south-facing for sale. The building is currently 60% complete. The interiors and the layout can be adapted, the tiling can be chosen according to the taste of the buyer,

One apartment is 158 sqm, the other 153 sqm, both with exclusive use of garden and garage. The price is for turnkey condition.

- Heating: air-source heat pump system,

- underfloor and ceiling cooling,

- Hörmann garage doors,

- air conditioning, built-in intercom,

- individual interior doors and windows, glass barrier.

Detailed documentation, plans, technical content on request.

The location is favourable: nearby French school, German school, American school, Spanish school, sports facilities, swimming pool.



The floor plan and data are for information only.


Családi ház részletei

Ár: 189 900 000 Ft
Méret: 158 négyzetméter
Azonosító: 11337456
Irodai azonosító: 360651121-227
Telek: 400 négyzetméter
Ingatlan állapota: Kérdezzen rá a hirdetőtől »
Jelleg: ikerház
Építőanyag: Tégla
Fűtés jellege: Egyéb
Komfort fokozat: Összkomfort
Kor: Új építésű
Elhelyezkedés: Panorámás
Egész szobák: 4
Fél szobák: 1

Egyéb jellemzők

  • Csatorna
  • Garázs
  • Kábel TV
  • Padlás
  • Pince
  • Terasz

Hasonló családi ház hirdetések

Eladó családi ház

Budapest II. ker

HIDEGKÚTON 200 m2-es IKERHÁZ. Kivételes lehetőség! Megvételre kínálunk ...

Eladó családi ház

Budapest II. ker, Pesthidegkút-Ófalu

A II. kerületben Pesthidegkúton eladó egy 586 m2-es telken álló 286 m2 ...

Eladó családi ház

Budapest II. ker

Kivételes lehetőség! Megvételre kínálunk Hidegkút kedvelt részén egy ...

Eladó családi ház

Budapest II. ker

Kivételes lehetőség! Megvételre kínálunk Hidegkút kedvelt részén egy ...

Hasonló családi ház hirdetések

Eladó családi ház

Budapest II. ker

HIDEGKÚTON 200 m2-es IKERHÁZ. Kivételes lehetőség! Megvételre kínálunk ...

Eladó családi ház

Budapest II. ker, Pesthidegkút-Ófalu

A II. kerületben Pesthidegkúton eladó egy 586 m2-es telken álló 286 m2 ...

Eladó családi ház

Budapest II. ker

Kivételes lehetőség! Megvételre kínálunk Hidegkút kedvelt részén egy ...

Eladó családi ház

Budapest II. ker

Kivételes lehetőség! Megvételre kínálunk Hidegkút kedvelt részén egy ...