Eladó családi ház Budapest II. ker 425 000 000 Ft

Leírás

Luxus élettér tájvédelmi környezetben!

Amennyiben megteheti, éljen jó helyen, ott ahol valóban semmi nem zavarja meg az áhított nyugalmát.

A számtalan szabadidős porgram mellett, pl. játszótér és egy közeli kis tó ideális pihenési lehetőséget kínál az itt élő családok számára. Könnyen és gyorsan elérhető közelségben a Francia, illetve az Amerikai iskola is.

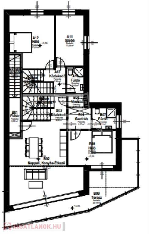
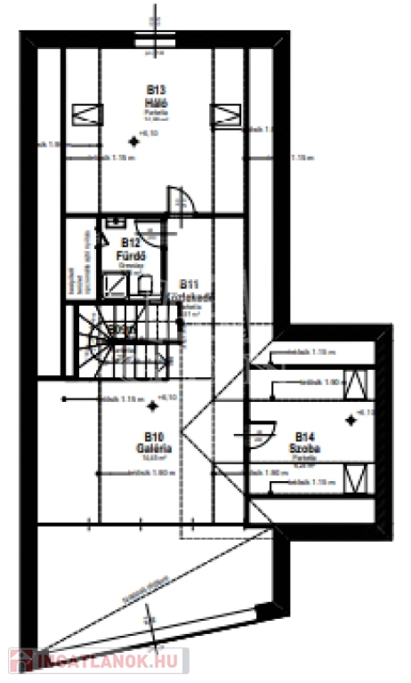
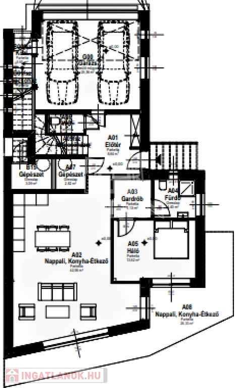
A csendes utcában elhelyezkedő nettó 311nm-es lakóépület a benne lévő két külön álló lakás lévén (melyek nettó alapterülete 158 m2 és 153 m2) akár társasházi egységként is funkcionálhat. Az egyik lakás közvetlen teraszos kertkapcsolattal, míg a másik emeleti lakás szintén külön kertrésszel rendelkezik.

FIGYELEM, a két lakás az emeleti szinten egybe is nyitható!

Az építkezés jelenleg 60 %-os készültségnél tart, amely bármikor megtekinthető, megismerve ezáltal a burkolásokat, illetve az átgondolt külső-belső kivitelezési munkálatok előkészítésének magas minőségét. A 20 éves tapasztalattal és számtalan referenciával rendelkező kivitelező a megegyezéstől számítva 4 hónapon belül vállalja a kulcsrakész átadást!

Az épület elhelyezkedése DNy-i tájolású, ily módon
a hatalmas üvegfelületek páratlan optikai látványt és természetközeli élményt biztosítanak az exkluzív élettérnek!

A jövőbeni költséghatékony fenntarthatóság érdekében a fűtés levegő-hőszivattyús rendszerrel, illetve padló és mennyezet hűtés-fűtéssel kerül beépítésre.

Egyéb extrák:
- elektromos alumínium redőny,
- elektromos szekcionált Hörmann garázskapuk,
- riasztó rendszer kiépítés,
- hűtő-fűtő klíma,
- fürdőkben kiegészítő törölköző szárítók,
- fényezet egyedi beltéri nyílászárók,
- külső üvegkorlát,
- kiépített kaputelefon.
Bővebb műszaki tartalmat igény szerint küldök!

Családi ház részletei

Ár: 425 000 000 Ft
Méret: 311 négyzetméter
Azonosító: 11417998
Irodai azonosító: 369202
Cím: Pesthidegkút
Telek: 1000 négyzetméter
Ingatlan állapota: Átlagos
Jelleg: családi ház
Építőanyag: Tégla
Fűtés jellege: Geotermikus
Fűtés módja: Hőszivattyú
Komfort fokozat: Összkomfort
Kor: Új építésű
Szintek száma: 2 szint
Egész szobák: 8

Egyéb jellemzők

  • Csatorna
  • Garázs
  • Pince
  • Terasz

Térkép

Hasonló családi ház hirdetések

Eladó családi ház

Budapest II. ker, Széphalom

Referens: ZBA11/100788 ELADÓ II. kerületben Széphalmon csendes utcában ...

Eladó családi ház

Budapest II. ker

C I T Y C A R T E L INTERNATIONAL LUXURY REAL ESTATE AGENCY Realty ...

Eladó családi ház

Budapest II. ker

A 2/A kerületben, a Hidegkúti útról nyíló egyik csendes mellékutcában ...

Eladó családi ház

Budapest II. ker

Eladó luxus családi ház panorámával a 2. kerületben, az Előd vezér ...

Hasonló családi ház hirdetések

Eladó családi ház

Budapest II. ker, Széphalom

Referens: ZBA11/100788 ELADÓ II. kerületben Széphalmon csendes utcában ...

Eladó családi ház

Budapest II. ker

C I T Y C A R T E L INTERNATIONAL LUXURY REAL ESTATE AGENCY Realty ...

Eladó családi ház

Budapest II. ker

A 2/A kerületben, a Hidegkúti útról nyíló egyik csendes mellékutcában ...

Eladó családi ház

Budapest II. ker

Eladó luxus családi ház panorámával a 2. kerületben, az Előd vezér ...