Eladó családi ház Budapest II. ker, Törökvész, 765 000 000 Ft

Leírás

Bp., 2. ker. TÖRÖKVÉSZEN, modern CSALÁDI HÁZ medencével, terasszal, garázzsal eladó
For English, please, scroll down
Szeretne elegáns zöldövezeti környéken CSENDES, intim, gyönyörű házat?
Főbb jellemzői néhány szóban:
- csendes, elegáns zöldövezet
- fűthető medence, üvegezett terasz, kert
- külön nyíló hálószobák, 4 fürdőszoba
- légkondi
- garázs, konditerem, tárolók
Részletes információk a házról:
Bp., 2. ker. TÖRÖKVÉSZ elegáns, csendes, forgalommentes utcájában, az Endrődi S. u. közelében 987 nm-es telken 457 nm-es + 27 és 14 nm teraszos, 3 szintes, nappali + 4 hálószobás, 4 fürdőszobás exkluzív családi ház fűthető medencével, garázzsal, konditeremmel, tárolókkal eladó.
A csendes, intim telken a 2000-es évek elején épült 3 szintes, gyönyörű ház délkeleti fekvésű. 2019-ben a felújítás során tágas, üvegezett fedett teraszt/téli kertet építettek hozzá, fűthető medencét létesítettek, a szanitereket, beépített szekrényeket kicserélték.
földszint: hatalmas nappali, 1 hálószoba fedett terasszal, fürdőszoba, vendég wc, beépített, gépesített konyha, étkező, társalgó kandallóval, üvegezett terasszal, fűthető medence és napozóterasz, gondozott kert
emelet: 3 külön bejáratú, légkondis hálószoba, 2 fürdőszoba, gardróbszoba, panoráma
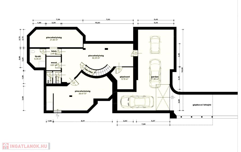
pinceszint: 2-3 autó részére garázs, hatalmas tárolók, konditerem, fürdőszoba, mosdó, gépészeti helyiség (gáz cirkó)
Videóbejárás, alaprajzok megtekinthetőek a hirdetésben.
A közelben a Rózsakert és Rózsadomb Bevásárlóközpontok kiváló vásárlási lehetőségeket kínálnak.
Remek szabadidős programokat nyújtanak a közeli kirándulóhelyek, barlangok.
Egyedi elhelyezkedése a budai hegyek közelségét és a városi infrastruktúra előnyeit egyesíti.
Irányár: 765 millió Ft
+36 30 366 0068
Várom megtisztelő érdeklődését akár hétvégén is.
English
Bp., 2nd district. TÖRÖKVÉSZ, modern FAMILY HOUSE with pool, terrace, garage for sale
Would you like a QUIET, intimate, beautiful house in an elegant green area?
Main features in a few words:
- quiet, elegant green area
- heated pool, glazed terrace, garden
- separate bedrooms, 4 bathrooms
- air conditioning
- garage, gym, storage rooms
Detailed information about the house:
In the elegant, quiet, traffic-free street of the 2nd district. TÖRÖKVÉSZ, near Endrődi S. street., on a 987 sqm plot, an exclusive family house of 457 sqm + 27 and 14 sqm terraces, 3 floors, living room + 4 bedrooms, 4 bathrooms, with a heated pool, garage, gym, storage rooms is for sale.
The 3-storey, beautiful house, built in the early 2000s on a quiet, intimate plot, faces southeast. In 2019, during the renovation, a spacious, glazed covered terrace/winter garden was added, a heated pool was installed, and the sanitary facilities and built-in wardrobes were replaced.
ground floor: huge living room, 1 bedroom with a covered terrace, bathroom, guest toilet, built-in, equipped kitchen, dining room, lounge with fireplace, glazed terrace, heated pool and sun terrace, well-kept garden
first floor: 3 air-conditioned bedrooms with separate entrances, 2 bathrooms, wardrobe room, panorama
basement level: garage for 2-3 cars, huge storage rooms, gym, bathroom, toilet, mechanical room (gas cirko heating)
Video tour, floor plans can be viewed in the ad.
The nearby Rózsakert and Rózsadomb Shopping Centers offer excellent shopping opportunities.
The nearby hiking trails and caves offer great leisure programs.
Its unique location combines the proximity of the Buda hills and the advantages of the city's infrastructure.
Guide price: 765 million HUF
+36 30 366 0068
You can contact me in English as well even on the weekends

Családi ház részletei

Ár: 765 000 000 Ft
Méret: 457 négyzetméter
Azonosító: 11496744
Városrész: Törökvész
Telek: 1000 négyzetméter
Ingatlan állapota: Kitűnő
Jelleg: családi ház
Építőanyag: Könnyűszerkezetes
Fűtés jellege: Cirkó
Fűtés módja: Gáz
Komfort fokozat: Dupla komfort
Kor: 21-50 éves
Elhelyezkedés: Panorámás
Szintek száma: 3 szint
Bútorozott: Részben bútorozott
Egész szobák: 5

Egyéb jellemzők

  • Garázs
  • Parketta
  • Pince
  • Terasz

Térkép

Videók (1)

Hasonló családi ház hirdetések

Eladó családi ház

Budapest II. ker

P21553 II. Rózsadombon 3 lakásos panorámás, elegáns családi ház eladó ...

Eladó családi ház

Budapest II. ker

PÁLVÖLGYBEN, VÁROSI PANORÁMÁS, LUXUS CSALÁDI HÁZ ELADÓ, KÜLSŐ MEDENCÉVEL! ...

Eladó családi ház

Budapest II. ker

PÁLVÖLGYBEN, VÁROSI PANORÁMÁS, LUXUS CSALÁDI HÁZ ELADÓ, KÜLSŐ MEDENCÉVEL! ...

Eladó családi ház

Budapest II. ker

PÁLVÖLGYBEN, VÁROSI PANORÁMÁS, LUXUS CSALÁDI HÁZ ELADÓ, KÜLSŐ MEDENCÉVEL! ...

Hasonló családi ház hirdetések

Eladó családi ház

Budapest II. ker

P21553 II. Rózsadombon 3 lakásos panorámás, elegáns családi ház eladó ...

Eladó családi ház

Budapest II. ker

PÁLVÖLGYBEN, VÁROSI PANORÁMÁS, LUXUS CSALÁDI HÁZ ELADÓ, KÜLSŐ MEDENCÉVEL! ...

Eladó családi ház

Budapest II. ker

PÁLVÖLGYBEN, VÁROSI PANORÁMÁS, LUXUS CSALÁDI HÁZ ELADÓ, KÜLSŐ MEDENCÉVEL! ...

Eladó családi ház

Budapest II. ker

PÁLVÖLGYBEN, VÁROSI PANORÁMÁS, LUXUS CSALÁDI HÁZ ELADÓ, KÜLSŐ MEDENCÉVEL! ...