Eladó családi ház Budapest III. ker 269 990 000 Ft

Leírás

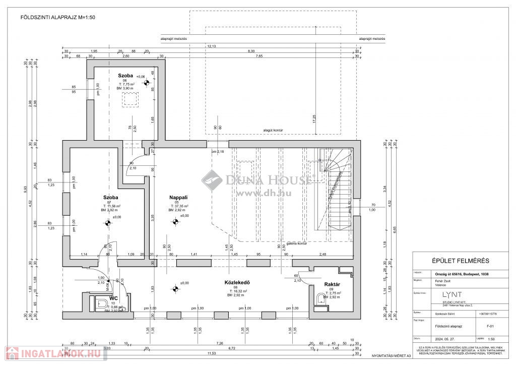
Megvételre kínálok a III. kerületben egy egyedi lehetőségeket rejtő ingatlant. Az ingatlan a hegyoldalon helyezkedik el, ami nemcsak lenyűgöző panorámát, hanem különleges adottságokat is biztosít. Az épület két szinten kínál tágas és különleges helyiségeket. Az alsó szintet egy impozáns, 180 m²-es téglaíves pince uralja, amely 3 m-es belmagasságával és rusztikus megjelenésével ideális borospincének, rendezvényhelyszínnek vagy művészeti műhelynek. Felettébb inspiráló környezet, amely könnyedén átalakítható egyedi igények szerint.
A pince fölötti szinten egy modern, loft stílusú iroda található, 125 m²-en. A hely optimális kreatív munkaterületnek, de könnyen alakítható lakássá vagy bemutatóteremmé is. Az ingatlan része egy 44 m²-es galéria, amely csigalépcsőn keresztül közelíthető meg, valamint egy 80 m²-es középső szint, ahol fürdőszoba, WC, és előtér található. Az ingatlan fűtéséről korszerű hűtő-fűtő hőszivattyú gondoskodik, amely napelemekkel működtethető, a fúrt kutak biztosította energiahatékonysággal. A minőségi Velux fa nyílászárók nemcsak esztétikusak, hanem kitűnő hőszigetelést is nyújtanak.
A 736 m²-es telek rendezett és új lehetőségeket rejt magában. Egy 25 m²-es melléképület is helyet kapott rajta, amely kisebb felújítás vagy bontás után új funkciót nyerhet. Az udvar alkalmas parkolásra 2-3 autó számára és tökéletes helyszín szabadtéri rendezvényeknek is. Az ingatlan kiváló választás üzleti célokra: irodának, vendéglátóegységnek, műhelynek, vagy akár egyedi projektek megvalósítására is. Tökéletes alap lehet panzióval kombinált étterem, rendezvényhelyszín vagy különleges tematikus műhely számára.
Az elhelyezkedés kényelmes és praktikus: buszmegálló pár lépésre, HÉV-megálló 300 m távolságra, és a békásmegyeri piac is sétával elérhető.
Ha számos lehetőséget rejtő ingatlant keres, keressen bizalommal!
Tisztelt érdeklődő!
Szeretnék Önnek szakszerű segítséget nyújtani az ingatlankeresésben, ezért ha felkeltette érdeklődését a hirdetés, további információkért és a megtekintés miatt hívjon. A Duna House kínálatából is tudok az elképzeléseinek megfelelő ingatlant mutatni. Irodánk díjmentes hitel tanácsadással, teljes körű ügyintézéssel áll rendelkezésére.

Referencia szám: HZ081942

Családi ház részletei

Ár: 269 990 000 Ft
Méret: 295 négyzetméter
Azonosító: 11486748
Irodai azonosító: HZ081942-4860564
Cím: Budapest 3. ker.i 295 nm-es ház eladó
Telek: 736 négyzetméter
Ingatlan állapota: Átlagos
Jelleg: családi ház
Építőanyag: Tégla
Fűtés jellege: Villany
Fűtés módja: Hőszivattyú
Komfort fokozat: Összkomfort
Kor: 50 évesnél régebbi
Szintek száma: Földszintes
Egész szobák: 4

Egyéb jellemzők

  • Garázs

Térkép

Hasonló családi ház hirdetések

Eladó családi ház

Budapest III. ker, Arany-Üröm-Péterhegy

Budapest III. kerületében, Ürömhegyen eladó egy új építésű ikerház. Az ...

Eladó családi ház

Budapest III. ker

Befektetők figyelmébe! III. kerületében, Táborhegyen, a GOBUDA környékén ...

Eladó családi ház

Budapest III. ker

Befektetők figyelmébe! III. kerületében, Táborhegyen, a GOBUDA környékén ...

Eladó családi ház

Budapest III. ker

Eladó ikerház a III. kerületben! A 440 m²-es ingatlant a 2000-es években ...

Hasonló családi ház hirdetések

Eladó családi ház

Budapest III. ker, Arany-Üröm-Péterhegy

Budapest III. kerületében, Ürömhegyen eladó egy új építésű ikerház. Az ...

Eladó családi ház

Budapest III. ker

Befektetők figyelmébe! III. kerületében, Táborhegyen, a GOBUDA környékén ...

Eladó családi ház

Budapest III. ker

Befektetők figyelmébe! III. kerületében, Táborhegyen, a GOBUDA környékén ...

Eladó családi ház

Budapest III. ker

Eladó ikerház a III. kerületben! A 440 m²-es ingatlant a 2000-es években ...