Eladó családi ház Budapest III. ker 58 500 000 Ft

Leírás

BEFEKTETŐKNEK – RITKA LEHETŐSÉG BÉKÁSMEGYER ÓFALUBAN!

Teljesen felújítandó 2 szobás lakás eladó, udvarral rendelkező házban, Ófaluban, ahol a szomszédok az önkormányzat, így biztos a nyugodt környezet. A ház udvarában összesen 7 lakás található.

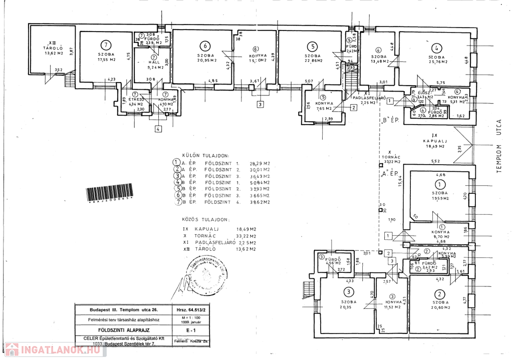
Az alaprajzon a 7-es számmal jelölt lakás, ami ennek a lakásnak az alaprajza.

A ház csak önkormányzati engedéllyel bontható, de felújításával értékes, kis költségű projekt válhat belőle.

✔ Kis alapterület – alacsony felújítási költség
✔ Összközműves ingatlan
✔ Viszonylag jó állapotú tető és elfogadható nyílászárók
✔ Parkolás az udvarban

Bónusz befektetőknek:
A házhoz ingyenesen használható +71 m² nem lakás célú ingatlan, több tárolóval és egyéb melléképülettel!


Ráadásként van pályázó a telekre, aki tartós bérletet vállalna – ez akár a hitelköltség felét is kitermelheti.

Az ingatlan 3%-os fix Otthon Start hitelre alkalmas lehet.

Ha jó befektetést keresel, amit minimális ráfordítással értéknövelni lehet, ez az egyik legjobb lehetőség Ófaluban!

Több információ miatt, telefonon érdeklődj.

Vereb Attila – +36 20 263 9995

Több mint 15 éves szakmai tapasztalattal segítek az adásvétel teljes folyamatában – a megtekintéstől a birtokbaadásig.

Családi ház részletei

Ár: 58 500 000 Ft
Méret: 39 négyzetméter
Azonosító: 11586014
Irodai azonosító: 390546
Cím: Templom utca
Telek: 350 négyzetméter
Ingatlan állapota: Felújítandó
Jelleg: családi ház
Építőanyag: Kérdezzen rá a hirdetőtől »
Fűtés jellege: Konvektoros
Fűtés módja: Gáz
Komfort fokozat: Komfort
Kor: 50 évesnél régebbi
Szintek száma: Földszintes
Egész szobák: 2
Fél szobák: 1

Egyéb jellemzők

  • Csatorna
  • Garázs
  • Pince
  • Terasz

Térkép