Eladó családi ház Budapest IX. ker 876 519 200 Ft

Leírás

Eladó exkluzív ingatlan Budapest szívében - Páratlan befektetési lehetőség!
Jelenleg irodaházként működik, de lehetőség van lakásokat, szállodát is kialakítani benne!

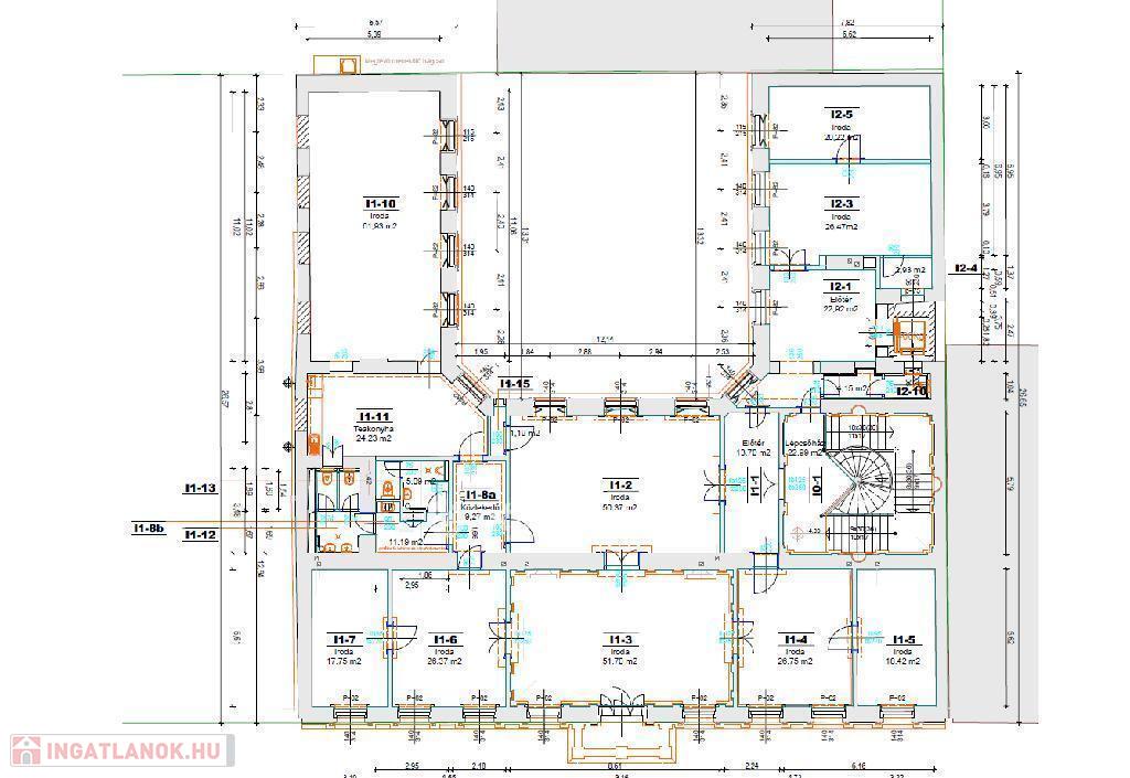
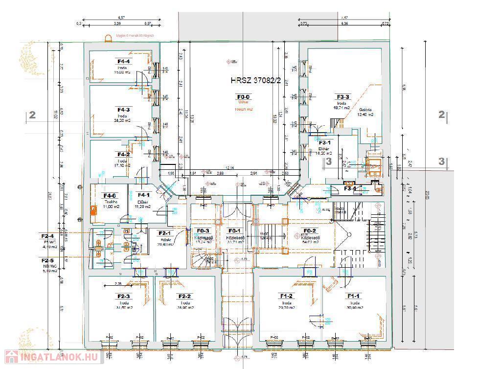
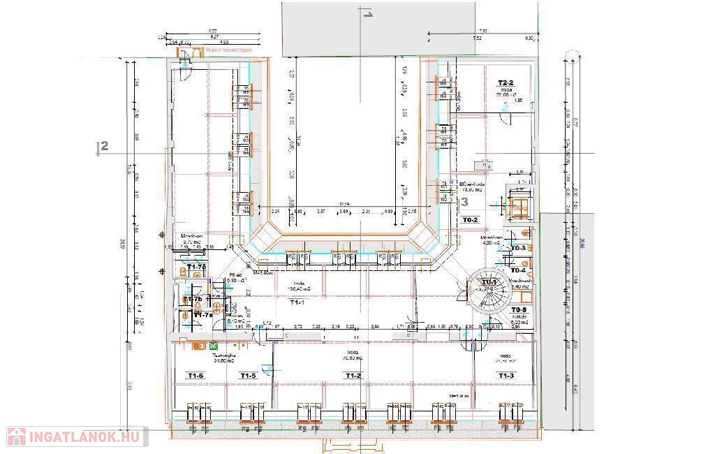
Ritkán adódó alkalom! Eladóvá vált a Lónyay utcában található impozáns műemléki irodaház. Ez a gyönyörűen felújított, 1335 m2-es épület nem csak egy ingatlan, hanem egy darab élő történelem, amely most az Öné lehet, egyedülálló lehetőséget kínálva befektetőknek és vállalkozóknak egyaránt. A IX. kerület szívében, Pest történelmi centrumában elhelyezkedő műemléki védettségű épület kifinomult eleganciájával és presztízs lokációjával tűnik ki, kiválóan alkalmas átalakítás után lakóháznak, szállodának, modern irodaháznak is.
Az ingatlan három szint + pince, rugalmasan kialakítható, változatos méretű irodaterek várják az új tulajdonost, aki modern kényelmi elemeket is élvezhet, mint a felújított belső terek, lift, valamint felszíni és zárt parkolók. Befektetőknek ideális: az azonnal kiadható, felújított irodaterek és a prémium lokáció folyamatos bérlői keresletet biztosít. A műemléki jelleg és a belvárosi elhelyezkedés jelentős értéknövekedési potenciált rejt magában, így hosszú távon is kiváló befektetésnek ígérkezik.
Stratégiai elhelyezkedése garantálja a folyamatos bérlői érdeklődést:
Kiváló közlekedési kapcsolatok: Ferenc körút, József körút, Pesti alsó rakpart és Üllői út közvetlen közelében.
A budai oldal is gyorsan elérhető a Szabadság hídon és a Petőfi hídon át.
Tökéletes tömegközlekedés: M3-, valamint M4-es metró, 2-es villamos, 15-ös és 115-ös busz a közelben.
Egyetemek karnyújtásnyira, Duna-part és számtalan étkezési és vásárlási lehetőség sétatávolságra.
Ez nem csupán egy irodaház - ez egy időtálló befektetés a főváros szívében. Az épület történelmi jellege és modern felszereltsége egyedülálló kombinációt alkot, amely hosszú távon is stabil értéket és bevételt biztosít tulajdonosának.
Ne szalassza el ezt a kivételes lehetőséget! Legyen Öné ez a patinás, mégis modern irodaház, és aknázza ki a benne rejlő üzleti potenciált. Jelentkezzen most, és tekintse meg személyesen ezt a rendkívüli ingatlant!

Szolgáltatás:

Zuhanyzási lehetőség,
Konyha,
Nyitható ablak,
Lift.
Az OTP Ingatlanpont, mint egyetlen közvetlen banki hátterű ingatlanközvetítő társaság teljes körű ügyintézéssel áll az eladók és a vevők rendelkezésére! A kínálatunkból választott ingatlan finanszírozásához minősített fogyasztóbarát, piaci és kedvezményes hitel- és lízingkonstrukciókat kínálunk (lakásvásárlási hitel, CSOK plusz, szabad felhasználású hitel, babaváró hitel, céges hitelek, pályázatok). Az adásvételi szerződés megkötéséhez igény szerint megbízható ügyvédi közreműködést biztosítunk, és segítséget nyújtunk az adásvételhez kapcsolódó egyéb ügyek intézéséhez. Ha az új ingatlana megvásárlásához a jelenlegi ingatlanát el kell adnia, abban is szívesen segítünk.

Családi ház részletei

Ár: 876 519 200 Ft
Méret: 1 335 négyzetméter
Azonosító: 11562516
Irodai azonosító: M310737-5026032
Cím: 1335 nm-es ház eladó Budapest 9. ker.
Telek: 400 négyzetméter
Ingatlan állapota:
Jelleg: kastély
Építőanyag: Tégla
Fűtés jellege: Házközponti (egyedi mérővel)
Komfort fokozat: Dupla komfort
Kor: 50 évesnél régebbi
Szintek száma: 3 szint
Egész szobák: 20

Térkép