Eladó családi ház Budapest X. ker 149 900 000 Ft

Leírás

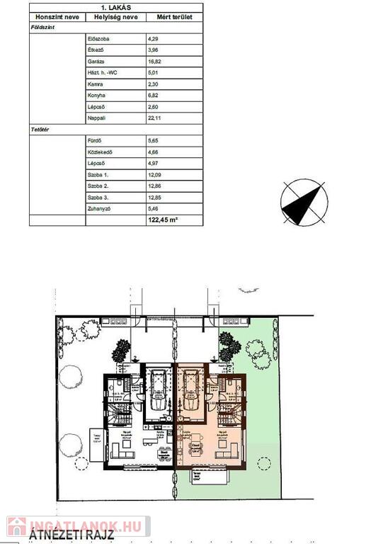
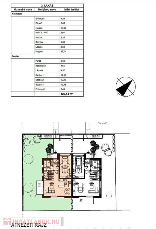
ÚJÉPÍTÉSŰ SORHÁZ ELADÓ ÚJHEGYEN!



122nm-es,4 szobás, 2 szintes sorház, 231nm-es telekkel!





Eladásra kínálunk Újhegy egyik legjobb részén 2db jelenleg is épülő sorházat!

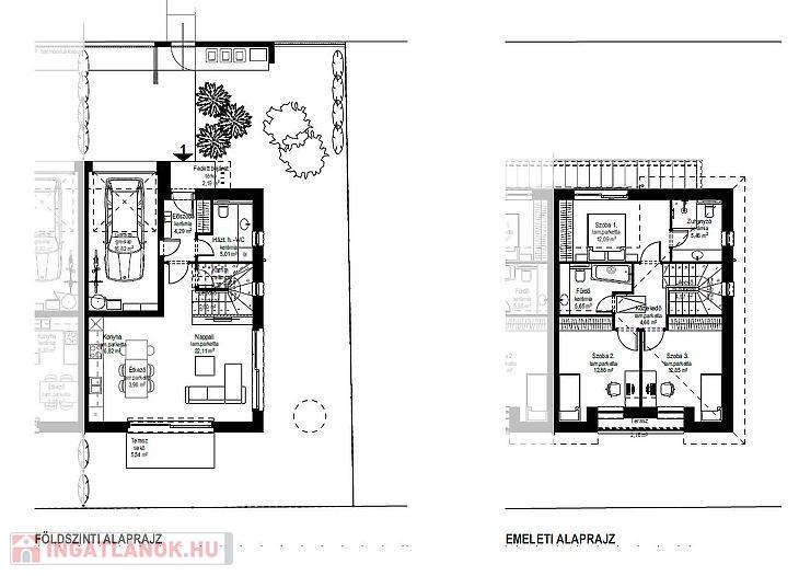
Maga a ház 2 szintből fog állni és 4 szobából, jelenleg látvány tervek vannak róla és műszaki leírás.

A házak kellemes hőérzetét levegős hőszivattyú berendezés fogja biztosítani, mely a padlóról, valamint a plafonról is egyaránt hűt-fűt.

A projekt menedzser tervei szerint 2026 III. negyedévére fognak elkészülni és utána azonnal birtokba vehetőek.

Az ingatlanokhoz tartozni fog egy-egy fedett garázs és kocsibeálló is.

A 2 ingatlan társasházzá lesz nyilvánítva, ügyvédi telekmegosztással, így hitelezhető lesz.

Infrastruktúrája kedvező ugyan is 10 perc sétára található tőle az újhegyi sétány, ahol minden megtalálható, ami a minden napi élethez szükséges: Spar, éttermek, dohánybolt, iskola, óvoda.

Közlekedés szempontjából is kiváló 28-as villamos a 95-ös és a 195-ös buszmegálló 5 perc sétára található, a 185-ös, 85-ös és a 117-es buszmegálló szintén 5 perc sétára található.



Az ár 149.900.000.- Ft / db.

Az ingatlan 1/1 tulaj és tehermentes.

Vevőink számára a közvetítés díjmentes.

Családi ház részletei

Ár: 149 900 000 Ft
Méret: 122 négyzetméter
Azonosító: 11593960
Irodai azonosító: 24466
Telek: 231 négyzetméter
Ingatlan állapota: Épülő
Jelleg: családi ház
Építőanyag: Kérdezzen rá a hirdetőtől »
Fűtés jellege: Egyéb
Szintek száma: 1 szint
Egész szobák: 4

Hasonló családi ház hirdetések

Eladó családi ház

Budapest X. ker

Megvételre kínálunk, Budapest X. kerületében, Újhegy csendes kertvárosi ...

Eladó családi ház

Budapest X. ker

Tágas nagypolgári otthon hatalmas telekkel – X. kerület frekventált Óhegy ...

Eladó családi ház

Budapest X. ker

Új építésű, kétszintes ikerház prémium felszereltséggel és bútorzattal Csendes ...

Eladó családi ház

Budapest X. ker

Új építésű, kétszintes ikerház prémium felszereltséggel és bútorzattal Csendes ...

Hasonló családi ház hirdetések

Eladó családi ház

Budapest X. ker

Megvételre kínálunk, Budapest X. kerületében, Újhegy csendes kertvárosi ...

Eladó családi ház

Budapest X. ker

Tágas nagypolgári otthon hatalmas telekkel – X. kerület frekventált Óhegy ...

Eladó családi ház

Budapest X. ker

Új építésű, kétszintes ikerház prémium felszereltséggel és bútorzattal Csendes ...

Eladó családi ház

Budapest X. ker

Új építésű, kétszintes ikerház prémium felszereltséggel és bútorzattal Csendes ...