Eladó családi ház Budapest X. ker 254 000 000 Ft

Leírás

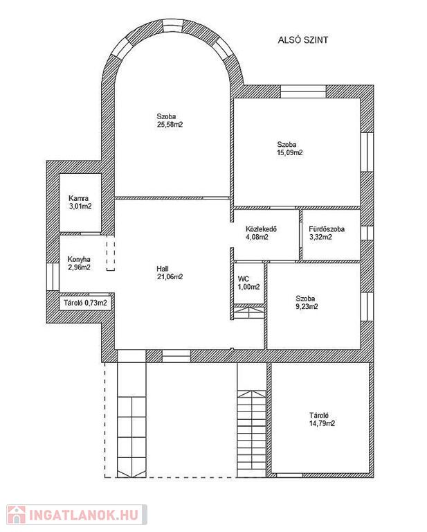
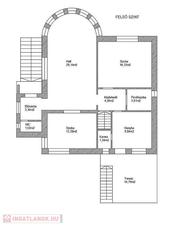
X. KERÜLET KÖZKEDVELT RÉSZÉN KÍNÁLUNK ELADÁSRA EGY 2 SZINTES 7 SZOBÁS KÖRBEJÁRHATÓ CSALÁDI HÁZAT 727 NM-ES TELEKKEL.





Az Óhegy park közelében 190 nm-es 2 szintes Családi ház, ami elrendezésének köszönhetően akár 2 generációssá is alakítható!!!



Az épület öt különálló szobát, két hallt, két konyhát, két fürdőszobát és több mellékhelyiséget foglal magába.

A belső terek jó arányúak, világosak, élhető elrendezésűek. Az otthon az évek során átgondolt korszerűsítésen esett át, amelynek köszönhetően az épület mai elvárásoknak is megfelel.

10 éve lett teljesen felújítva:

- Új nyílászárók

- Új tetőszigetelés

- Teljesen új villamos hálózat (3×16 Amper, EV- és Fi-relékkel)

- Nyomóvíz- és csatornahálózat

- Modern riasztórendszer beépítve

- Optikai internetkábel



Infrastruktúra - minden a közelben



Az otthon közvetlen környezetében:

Számos gyerekbarát szolgáltatás: óvodák, iskolák (pl. Fekete István Általános Iskola és Csodafa Óvoda)

Orvosi rendelő és gyógyszertár sétatávolságon belül

Gazdag üzletkínálat mind autóval (Lidl, Penny, Interspar, Auchan, Coop 2-5 perc alatt), mind gyalog (kisbolt 3-4 percre) elérhető

Számos park, futópálya, zöld terület - tökéletes a mindennapi mozgásra, kutya sétáltatásra, vagy kiruccanásra.



Kiváló tömegközlekedési kapcsolatok az Örs vezér tere, Köki Terminál és Kőbánya alsó irányába



Örs vezér tere: busszal 10 perc, autóval 8 perc

Köki Terminál: busszal 10-12 perc, autóval 5 perc

A közelben több buszjárat áll meg (85, 85E, 185, 95, 195, 909 stb.), melyek közvetlenül az Örsre, Kökihez és a belvárosba közlekednek

Belváros (Deák tér és környéke): autóval 10-20 perc, forgalom és napszak függvényében

Csendes, biztonságos környék.

Az ingatlan 1/1 tulajdonban van és tehermentes!

Vevőink számára a közvetítés díjmentes.



Családi ház részletei

Ár: 254 000 000 Ft
Méret: 190 négyzetméter
Azonosító: 11585731
Irodai azonosító: 23989
Telek: 727 négyzetméter
Ingatlan állapota: Felújított
Jelleg: családi ház
Építőanyag: Kérdezzen rá a hirdetőtől »
Fűtés jellege: Cirkó
Szintek száma: 1 szint
Egész szobák: 7

Hasonló családi ház hirdetések

Eladó családi ház

Budapest X. ker

Prémium nagypolgári villa Óhegyen – frissen felújítva, azonnal költözhető, ...

Hasonló családi ház hirdetések

Eladó családi ház

Budapest X. ker

Prémium nagypolgári villa Óhegyen – frissen felújítva, azonnal költözhető, ...