Eladó családi ház Budapest XI. ker 215 000 000 Ft

Leírás

KIZÁRÓLAG IRODÁNK ÁLTAL MEGTEKINTHETŐ!



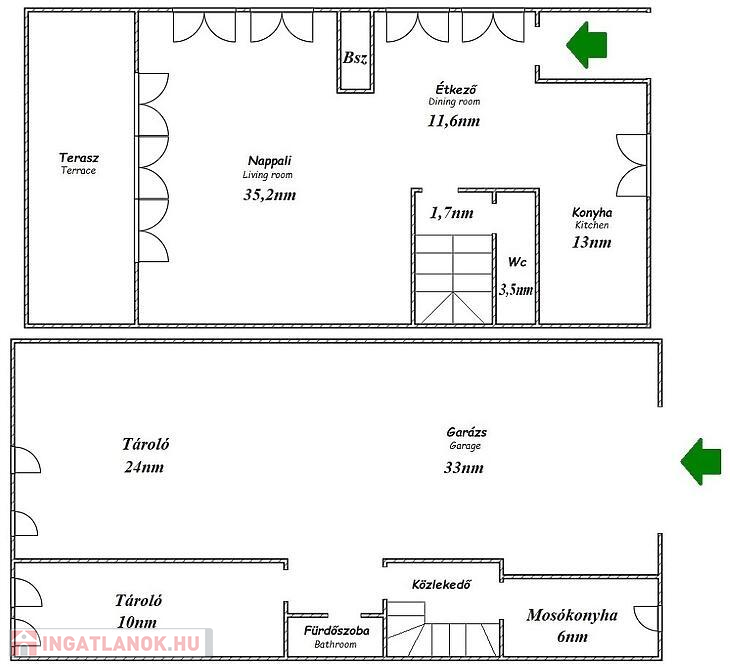
Őrmezőn csendes zsákutcában eladó egy ikerház fél. 1996-ban épült, azóta folyamatosan karbantartott ház, jó állapotú, borovifenyő külső nyílászárókkal. A földszinten inverteres hűtő/fűtő klímával, padlófűtéssel, kandallóval az emeleteken radiátorokkal lehet fűteni melyhez 3 éves cirkó kazán adja a meleget A melegvíz ellátásról külön átfolyós gázbojler áll rendelkezésre. A telek 420 nm. Gondozott kertben szalonna sütő hely lett kialakítva egy szaletlivel. Több autó számára van beállási lehetőség a ház melletti udvari részen, ahova az utcáról elektromos kapun keresztül lehet bejutni.

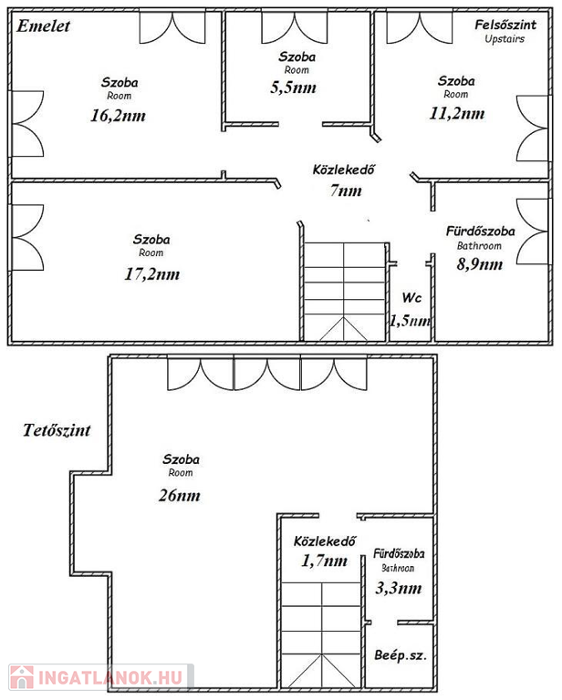
Az ingatlan 4 szintes. A pinceszinten található a garázs, ahova 2 autóval kényelmesen be lehet állni, ezenkívül, tárolók, mosókonyha, fürdőszoba található. 380 volt is rendelkezésre a földszintre is fel lehet jutni, ahol hatalmas nappali, étkező, konyha, mosdó wc-vel és a terasz található a kertbe kijárással. Az emeleten 4 szoba , egy fürdőszoba sarokkáddal és épített zuhanyozóval lett kialakítva. A wc külön helyiségben található A következő szint a tetőtér, ami egy nagy 26 nm -es helyiség, fürdőszobával, amelyből egy tároló helyiség is le van választva. A felette lévő padlástér tárolásra alkalmas.



Irodánk ingyenes hiteltanácsadással áll ügyfeleink rendelkezésére.

VEVŐINK RÉSZÉRE A KÖZVETÍTÉS DÍJMENTES.

A hirdetésben szereplő adatok tájékoztató jellegűek.

Családi ház részletei

Ár: 215 000 000 Ft
Méret: 270 négyzetméter
Azonosító: 11544268
Irodai azonosító: 22244
Telek: 420 négyzetméter
Ingatlan állapota:
Jelleg: családi ház
Építőanyag: Kérdezzen rá a hirdetőtől »
Fűtés jellege: Cirkó
Szintek száma: 3 szint
Egész szobák: 5
Fél szobák: 1

Hasonló családi ház hirdetések

Eladó családi ház

Budapest XI. ker

P21104 XI. PÉTERHEGYEN 2016-BAN ÉPÜLT KÉTLAKÁSOS CSALÁDI HÁZ ELADÓ ...

Eladó családi ház

Budapest XI. ker

Eladó felújítandó családi ház a XI. kerület egyik csendes utcájában ...

Hasonló családi ház hirdetések

Eladó családi ház

Budapest XI. ker

P21104 XI. PÉTERHEGYEN 2016-BAN ÉPÜLT KÉTLAKÁSOS CSALÁDI HÁZ ELADÓ ...

Eladó családi ház

Budapest XI. ker

Eladó felújítandó családi ház a XI. kerület egyik csendes utcájában ...