Eladó családi ház Budapest XIV. ker 369 000 000 Ft

Leírás

A FEJLŐDŐ BOSNYÁK TÉR SZOMSZÉDSÁGÁBAN!!!

TÁRSASHÁZ!!! EGÉSZSÉGÜGYI INTÉZMÉNY!!! IRODAHÁZ!!! WELNESS KÖZPONT!!!

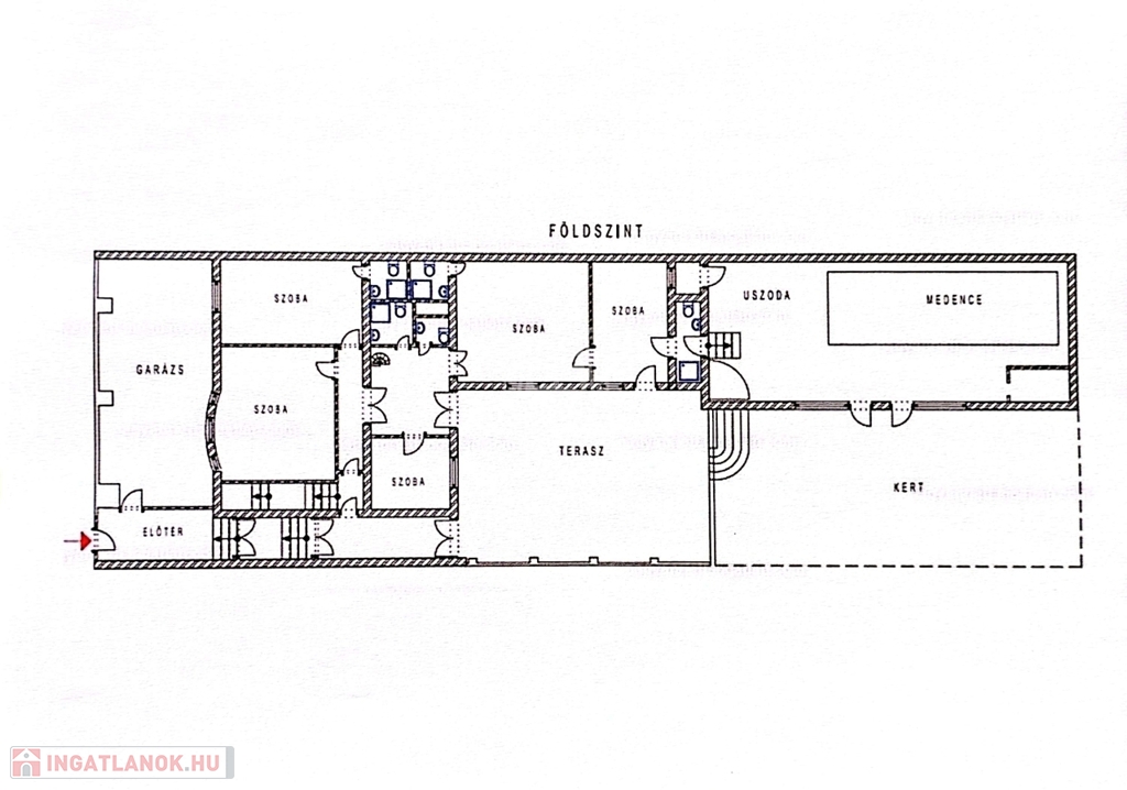
XIV. kerületben, ALSÓRÁKOSON, eladó egy bruttó 449 m2-es telken fekvő bruttó 600 m2-es családi ház. (nettó 420 m2) 10 szoba + 9 félszoba. A házban 5-6 lakás kialakítása lehetséges.

A ház az 1980-as években épült. A welness részleg az 1990-es években lett hozzáépítve.

A ház további jellemzői:

- PER- és TEHERMENTES

- RÖVID HATÁRIDŐVEL BIRTOKBA VEHETŐ

- CSENDES kertvárosi környezet

- terasz (kb. 70 m2)

- minden közmű egyedileg mérhető

- garázs (3 db.)

- kert

- klíma (2 db.)


Fűtése: cirkó és gázkazán. (3 DB.)

Közlekedés: kiváló (5, 69, 32-es busz, 3, 62, 62A villamos, 74, 74A, 82-es trolibusz, M1 MEXIKÓI ÚT metróállomás pár percen belül elérhető, 973 éjszakai járat).

Az M3 bevezető szakasza autóval 5 percen belül elérhető.

A hirdetésben feltüntetett adatok és információk csak tájékoztató jellegűek, jogi kötelezettséggel nem bíró jognyilatkozatnak minősülnek, mely nem tekinthető ajánlat tételnek és nem járnak az eladóra nézve kötelező ajánlati kötöttséggel.

Ügyfeleink részére BANKFÜGGETLEN hitelügyintéző kollégáink szívesen nyújtanak segítséget.

Amennyiben felkeltettem az érdeklődését vagy bármely további kérdése lenne, keressen bizalommal.

Akár hétvégén is!

CSA

Családi ház részletei

Ár: 369 000 000 Ft
Méret: 420 négyzetméter
Azonosító: 11556160
Irodai azonosító: 376343
Cím: Több lakásos társasház?
Telek: 449 négyzetméter
Ingatlan állapota: Felújítandó
Jelleg: családi ház
Építőanyag: Tégla
Fűtés jellege: Cirkó
Fűtés módja: Gáz
Komfort fokozat: Dupla komfort
Kor: 21-50 éves
Szintek száma: 3 szint
Egész szobák: 10
Fél szobák: 9

Egyéb jellemzők

  • Csatorna
  • Garázs
  • Pince
  • Terasz

Térkép

Hasonló családi ház hirdetések

Eladó családi ház

Budapest XIV. ker, Alsórákos

Kiváló befektetési lehetőség, közel a Bosnyák térhez, mégis csendes ...

Eladó családi ház

Budapest XIV. ker

Zugló kertvárosi részén eladó 478 m2-es, kocsibeállási lehetőséggel ...

Eladó családi ház

Budapest XIV. ker

TÖBB GENERÁCIÓS CSALÁDI HÁZ ELADÓ ZUGLÓBAN! XIV. kerületben kínálom ...

Eladó családi ház

Budapest XIV. ker

Egyedi befektetési lehetőség Zugló közkedvelt részén!   Eladó ...

Hasonló családi ház hirdetések

Eladó családi ház

Budapest XIV. ker, Alsórákos

Kiváló befektetési lehetőség, közel a Bosnyák térhez, mégis csendes ...

Eladó családi ház

Budapest XIV. ker

Zugló kertvárosi részén eladó 478 m2-es, kocsibeállási lehetőséggel ...

Eladó családi ház

Budapest XIV. ker

TÖBB GENERÁCIÓS CSALÁDI HÁZ ELADÓ ZUGLÓBAN! XIV. kerületben kínálom ...

Eladó családi ház

Budapest XIV. ker

Egyedi befektetési lehetőség Zugló közkedvelt részén!   Eladó ...