Eladó családi ház Budapest XV. ker 149 000 000 Ft

Leírás

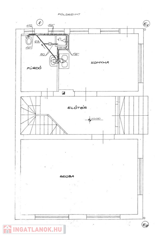
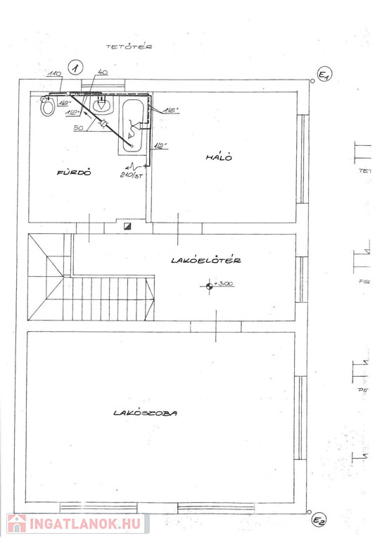
Megvételre kínálok a 15. kerületben, Rákospalota-Kertváros Zuglóhoz legközelebb eső részén, az M3-as bevezető szakaszával párhuzamos, csendes, szinte forgalomtól mentes utcájában, az Őrtűz utcában, családi házas övezetben, 427 nm alapterületű önálló telken álló, 1986-ban épült 3 szintes, majd 1996-ban a tetőtér beépítésével 4 szintes, pincézett, 6 szobás, 3 konyhás, 4 fürdőszobás, 254 nm-es, átlagos állapotú karbantartott, alapvetően költözhető állapotú, elő- és hátsókertes családi házat, 3 gépkocsi számára alkalmas beállóval, műhelyrésszel, plusz tárolókkal, szaletlivel, nyári konyhával, rendezett állapotú kerttel és udvarral, kb. 15 nm-es fedett terasszal.

Az egész családi ház alagsor + 2 szinten egyben 1986-ben épült zsaluköves kibetonozott alapzattal, pincével, az akkori előírások szerint megfelelő vízszigeteléssel, 42-es és 30-as vasbeton gerendás födémszerkezettel 60/19-es béléselemek, UNIFORM 14/19-es tégla falazat, 6-os és 10-es válaszfalak alkalmazásával, tetőtér beépítéses tetőszerkezettel, Bramac cserép héjalással, északnyugati fekvéssel, remek elosztású szobákkal, szintenként nagyon tágas nappalikkal. A legfelső szintet pedig 1996-ban építették be. A ház minden szempontból kellően világos.

Az ingatlant tágas terekkel tervezték és építették, a sok nyílászárónak köszönhetően nagyon világos és kellemes, családias hangulat jellemzi.

Műszaki állapot: a házban a nyílászárók 3 szinten 2 rétegű méretre gyártott műanyag ablakok, a legfelső szinten pedig fából készültek. A THERMO ÖV-35 típusú kazán gondoskodik a melegről a lapradiátorokon keresztül. A melegvizet pedig külön boyler szolgáltatja. A fűtés átalánydíja 20.000 Ft/hó. A többi fogyasztás a mérőórákkal mérés alapján történik, nagyon gazdaságos rezsiköltséggel.

Közlekedés: elhelyezkedéséből eredően gépkocsival könnyedén, és gyorsan megközelíthető az M3-as autópálya, valamint a tömegközlekedés is megoldott. A 25-ös, 125-ös busz megállója 2 percre található, de az 5-ös, 196 és 296-os busz megállója sincs messze, Zuglóval határos, ezért a 69-es villamos is elérhető, Újpest Városközpont 5-10 percre, a belváros akár 15-20 perc alatt megközelíthető, valamint a 996/996A éjszaki járat is pár percnyire innen közlekedik.

A következő párhuzamos utca Rákospalota főútja a Rákos út, így a közelben találhatóak vásárlási lehetőségek, orvosi rendelő, gyógyszertár, iskolák, óvodák, pár perc alatt elérhetők, a közelben megtalálhatóak. Gépkocsival a Pólus Center és az Asia Mall is könnyedén elérhető.

Elsősorban családosok, főleg nagycsaládosok figyelmébe ajánlom, akiknek fontos a nyugodt, csendes környezet, és azoknak is akik a 15. kerületben található, akár több generáció együttélésére alkalmas kertes, családi házra vágynak, melyet saját ízlésük szerint formálhatnak.

Az ingatlan tehermentes, a vételár kifizetését követően rugalmasan birtokba vehető.

Adatkezelés
Ezúton tájékoztatjuk, hogy Ön mint érdeklődő, a hirdetésben megjelölt telefonszám felhívásával hozzájárul személyes adatai – így különösen neve és telefonszáma -, a hirdetést feladó FORTISElit Ingatlan Kft. általi - biztonságos és körültekintő - kezeléséhez, nyilvántartásához. E körben, keresse a FORTISELIT ingatlaniroda weboldalát adatkezelési tájékoztatót.

We hereby inform you that You as an interested party, by calling the phone number mentioned in the advertisement, contribute to be your personal data – especially your name and phone number – handled and recorded safe and circumspectively by FORTISElit Ingatlan Kft as advertiser. Hereby, you can learn our Privacy Policy.

Finanszírozás:
Adatbázisunkban további több ezer ingatlanból választhat, hívjon bizalommal, hogy megtaláljuk a legmegfelelőbbet!
Hitelre van szüksége? Teljes körű és díjmentes hitel-ügyintézéssel, biztosításkötéssel áll rendelkezésére szakértő kollégánk. Kérje személyre szabott ajánlatunkat!

Családi ház részletei

Ár: 149 000 000 Ft
Méret: 254 négyzetméter
Azonosító: 11581773
Irodai azonosító: 345862
Telek: 427 négyzetméter
Ingatlan állapota:
Jelleg: családi ház
Építőanyag: Tégla
Fűtés jellege: Cirkó
Fűtés módja: Gáz
Komfort fokozat: Dupla komfort
Egész szobák: 6

Egyéb jellemzők

  • Terasz

Hasonló családi ház hirdetések

Eladó családi ház

Budapest XV. ker

Befektetők figyelem! Kivételes lehetőség kertvárosi környezetben, fejlesztési ...

Eladó családi ház

Budapest XV. ker

A XV.KERÜLETBEN: CSENDES KERTVÁROSI KÖRNYEZETBEN, ÚJ ÉPÍTÉSŰ, AMERIKAI ...

Eladó családi ház

Budapest XV. ker

15.kerület Szentmihályi úton kínálunk eladásra egy kétgenerációs, ...

Eladó családi ház

Budapest XV. ker

XV. KERÜLETBEN: FREKVENTÁLT RÉSZEN, ELADÓ EGY JÓ ÁLLAPOTÚ, 185 M2 (144 ...

Hasonló családi ház hirdetések

Eladó családi ház

Budapest XV. ker

Befektetők figyelem! Kivételes lehetőség kertvárosi környezetben, fejlesztési ...

Eladó családi ház

Budapest XV. ker

A XV.KERÜLETBEN: CSENDES KERTVÁROSI KÖRNYEZETBEN, ÚJ ÉPÍTÉSŰ, AMERIKAI ...

Eladó családi ház

Budapest XV. ker

15.kerület Szentmihályi úton kínálunk eladásra egy kétgenerációs, ...

Eladó családi ház

Budapest XV. ker

XV. KERÜLETBEN: FREKVENTÁLT RÉSZEN, ELADÓ EGY JÓ ÁLLAPOTÚ, 185 M2 (144 ...