Eladó családi ház Budapest XV. ker 155 000 000 Ft

Leírás

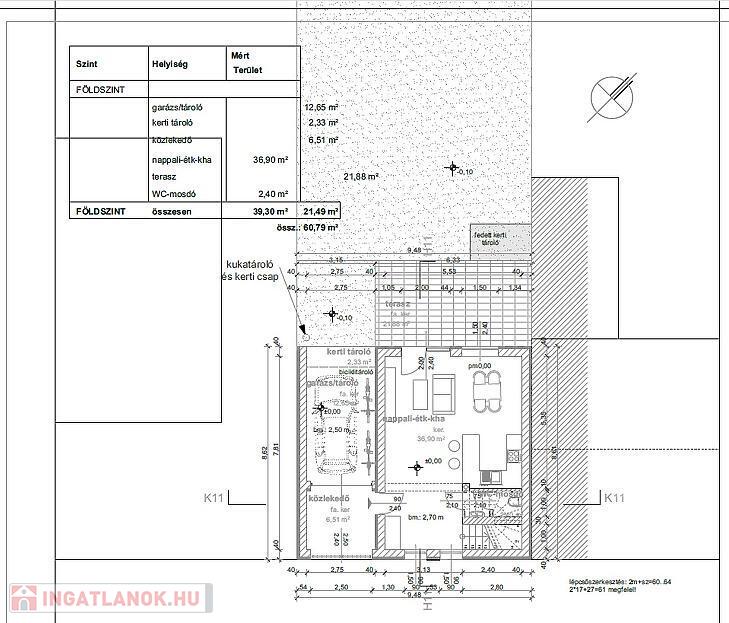
XV. KERÜLETBEN: CSENDES UTCÁBAN, 125 M2, ÚJ ÉPÍTÉSŰ, BESLŐ 2 SZINTES, AMERIKAI KONYHÁS NAPPALIS, 3 SZOBÁS CSALÁDI HÁZ, 341 M2 TELEKKEL, 22 M2 TERASSZAL, GARÁZZSAL, KERTI TÁROLÓVAL.

VÁRHATÓ ÁTADÁSI IDŐ 2026 NYARA!!

A HÁZ JELLEMZŐI:

A földszinten tágas amerikai konyhás nappali, mellékhelyiség van, illetve a garázs és a 22 m2-es terasz. Az emeleten 3 szoba, egy háztartási helyiség (mosókonyha) és fürdőszoba került kialakításra.

A házon egy 10 cm-es külső szigetelés lesz, antracit cseréptetővel lesz fedve. A nyílászárók 3 rétegű műanyag ablakok lesznek.

A fűtést kondenzációs kazán, padlófűtés fogja biztosítani, egy fűtő-fűtő klíma is rendelkezésre fog állni. Burkolatok válaszhatóak 5000 Ft/m2 árban, a fürdőszobai felszerelések 300.000 Ft-ig az ár részét képezik.



FINANSZÍROZÁS:

Az ingatlan tehermentes, hitelre is megvásárolható. Bankfüggetlen tanácsadóink, az ország összes pénzintézete közül gyorsan és gördülékenyen találja meg az Önnek legmegfelelőbb konstrukciót, egyedi kedvezményekkel. A hitel közvetítés díjmentes.



A hirdetésben szereplő adatok tájékoztató jellegűek.

Várjuk hívását munkanapokon 09.00- 18:00 óra között.

Amennyiben eladná saját ingatlanát, több mint 16 éve működő, kifejezetten a kerületre szakosodott irodánktól, INGYENES ÉRTÉKBECSLÉST kérhet.

Családi ház részletei

Ár: 155 000 000 Ft
Méret: 125 négyzetméter
Azonosító: 11610708
Irodai azonosító: 25280
Telek: 341 négyzetméter
Ingatlan állapota: Épülő
Jelleg: családi ház
Építőanyag: Kérdezzen rá a hirdetőtől »
Szintek száma: 1 szint
Egész szobák: 4

Hasonló családi ház hirdetések

Eladó családi ház

Budapest XV. ker

ELADÓ XV. KERÜLETBEN, PESTÚJHELY EGYIK LEGKEDVELTEBB, CSENDES MELLÉKUTCÁJÁBAN ...

Eladó családi ház

Budapest XV. ker

A XV. KERÜLETBEN, PESTÚJHELYEN, CSENDES, CSALÁDI HÁZAS RÉSZEN, ÚJ ÉPÍTÉSŰ, ...

Eladó családi ház

Budapest XV. ker

XV. KERÜLETBEN: RÁKOSPALOTÁN, CSENDES, KERTVÁROSI RÉSZEN, ELADÓ EGY ELŐKERTES, ...

Eladó családi ház

Budapest XV. ker

Ez a különleges ingatlan egy 1989-ben épült sorház, amely 2018-ban esett ...

Hasonló családi ház hirdetések

Eladó családi ház

Budapest XV. ker

ELADÓ XV. KERÜLETBEN, PESTÚJHELY EGYIK LEGKEDVELTEBB, CSENDES MELLÉKUTCÁJÁBAN ...

Eladó családi ház

Budapest XV. ker

A XV. KERÜLETBEN, PESTÚJHELYEN, CSENDES, CSALÁDI HÁZAS RÉSZEN, ÚJ ÉPÍTÉSŰ, ...

Eladó családi ház

Budapest XV. ker

XV. KERÜLETBEN: RÁKOSPALOTÁN, CSENDES, KERTVÁROSI RÉSZEN, ELADÓ EGY ELŐKERTES, ...

Eladó családi ház

Budapest XV. ker

Ez a különleges ingatlan egy 1989-ben épült sorház, amely 2018-ban esett ...