Eladó családi ház Budapest XVI. ker 121 900 000 Ft

Leírás

ÖSSZEKÖLTÖZŐK, NAGYCSALÁDOSOK FIGYELEM!

XVI.kerület Sashalom városrészén a Szérű utcában, megvételre kínálok egy bruttó 185 nm-es (nettó 168 nm), belső 2 szintes ikerház felet. (vízszintesen iker)

A lakást 2024-ben műszakilag felújították. Ennek keretében a nyílászárókat 3 rétegű műanyag ablakra cserélték redőnnyel és rovarhálóval, a teljes tetőszerkezet, beleértve a héjazat is teljesen megújult.

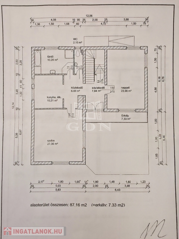
Az 1988-ban épült ingatlant egy saját lépcsőházon keresztül tudjuk megközelíteni, ahol helyet kapott egy tágas, délnyugati fekvésű nappali, egy keleti fekvésű hálószoba, konyha, fürdőszoba illetve külön wc. A közlekedőből érjük el a 7 nm-es erkélyt.

Szintén a közlekedőből jutunk fel a beépített teljes értékű tetőtérbe, ahol ki lett alakítva 2 db külön nyíló szoba, gardrób helyiség és egy zuhanyzós fürdőszoba. A nagyszoba további lehetőségeket rejt magába, szinte bárhogy lehet alakítani, akár 2 db szobává is.

A kizárólagos használatú saját (255 nm) kert az intimitást garantálja.
A viacolor térkő burkolattal kirakott részen, 1 autó tud megállni telken belül, az utcán 2 db autó, mely a társtulajdonossal fel lett osztva. A lakáshoz tartozik egy 15 nm-es tároló is.

A Használati megosztási szerződés szabályozza az esetleges közös terheket, előnyöket.

Közlekedése, infrastruktúrája kiváló! Sashalmi hév megálló 3 perc, akárcsak a SPAR szupermarket. Közelben patika, Iskola, Óvoda, minden is.

Azon ügyfeleimnek ajánlom ezt a remek elosztású kertvárosi ingatlant, aki nagy családdal költözne és nyitott az esetleg átalakításhoz, felújításhoz.

Az ingatlan előre egyeztetett időpontban, kizárólag ingatlanközvetítő bevonásával lehetséges!

Amennyiben hirdetésem felkeltette érdeklődését, várom hívását a hét bármely napján. tp

Családi ház részletei

Ár: 121 900 000 Ft
Méret: 164 négyzetméter
Azonosító: 11610527
Irodai azonosító: 393773
Cím: Szérű utca
Telek: 280 négyzetméter
Ingatlan állapota:
Jelleg: ikerház
Építőanyag: Tégla
Fűtés jellege: Cirkó
Fűtés módja: Gáz
Komfort fokozat: Dupla komfort
Kor: 21-50 éves
Szintek száma: 1 szint
Egész szobák: 4

Egyéb jellemzők

  • Csatorna
  • Garázs
  • Pince
  • Terasz

Térkép

Hasonló családi ház hirdetések

Eladó családi ház

Budapest XVI. ker

XVI. KERÜLET RÁKOSSZENTMIHÁLY KEDVELT CSENDES KERTVÁROSI RÉSZÉN ELADÓ ...

Eladó családi ház

Budapest XVI. ker

CSAK NÁLUNK! Felújítandó családi ház eladó a Sashalmi erdő mellett! Ha ...

Eladó családi ház

Budapest XVI. ker

XVI. KERÜLETBEN, RÁKOSSZENTMIHÁLYON ELADÓ EGY 4 SZOBÁS, 100M2-ES IKERHÁZ, ...

Eladó családi ház

Budapest XVI. ker

Eladó oldalhatárra épített családi ház Rákosszentmihályon – ...

Hasonló családi ház hirdetések

Eladó családi ház

Budapest XVI. ker

XVI. KERÜLET RÁKOSSZENTMIHÁLY KEDVELT CSENDES KERTVÁROSI RÉSZÉN ELADÓ ...

Eladó családi ház

Budapest XVI. ker

CSAK NÁLUNK! Felújítandó családi ház eladó a Sashalmi erdő mellett! Ha ...

Eladó családi ház

Budapest XVI. ker

XVI. KERÜLETBEN, RÁKOSSZENTMIHÁLYON ELADÓ EGY 4 SZOBÁS, 100M2-ES IKERHÁZ, ...

Eladó családi ház

Budapest XVI. ker

Eladó oldalhatárra épített családi ház Rákosszentmihályon – ...