Eladó családi ház Budapest XVI. ker 149 900 000 Ft

Leírás

Sokoldalú lehetőség Cinkotán – vállalkozóknak, befektetőknek, nagycsaládosoknak!

Eladásra kínálunk Budapest XVI. kerületének egyik legkedveltebb, kertvárosi részén, Cinkotán, egy kiváló adottságokkal rendelkező, nettó 232 m²-es családi házat, különálló, korábban húsüzemként működő melléképülettel – ez utóbbi a tulajdonos információi szerint kb. 140 m²-es, és sokféle funkcióra átalakítható.

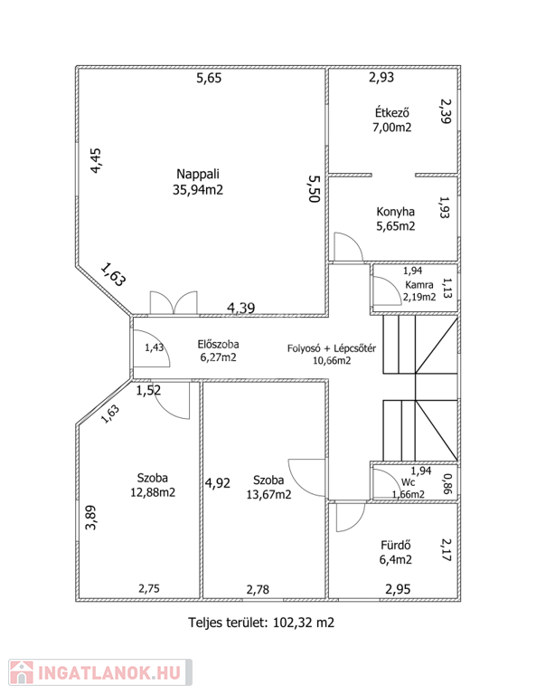
A ház háromszintes kialakítású (pince, földszint, emelet), összesen 6 szobával, hálófülkével és gardróbbal, valamint két fürdőszobával és toalettel. A földszinten egy tágas, jól felszerelt konyha található. A pincében dupla garázs kapott helyet, amelyhez fűtőszálas jégmentesítő rendszerrel ellátott lejáró tartozik – praktikus és kényelmes megoldás a téli hónapokra.

Az összközműves ingatlan egy 850 m²-es, rendezett telken helyezkedik el, a különálló melléképület energiaellátását pedig napelemek is támogatják, így a rezsiköltségek hosszú távon is kedvezők.

Főbb méretek:

Bruttó alapterület: 307 m²

Nettó lakóterület: 232 m²

Pince: 46,75 m²

Földszint: 102,32 m²

Emelet: 83,03 m²

A ház ideális választás többgenerációs családoknak, de vállalkozóknak is kiváló – az önálló épület alkalmas lehet műhelynek, irodának, raktárnak vagy akár autószerviznek is.

Infrastruktúra? Kiváló! Könnyen megközelíthető, nyugodt környezet, mégis közel mindenhez, amire szükség lehet.

Ne hagyja ki ezt a sokoldalúan hasznosítható ingatlant!
Hívjon most a megtekintésért – akár hétvégén is elérhetőek vagyunk.

Finanszírozási igény esetén partnerünk segítségével a teljes banki kínálatból választhat, így megtalálhatja a legkedvezőbb hitelmegoldást is!

Családi ház részletei

Ár: 149 900 000 Ft
Méret: 232 négyzetméter
Azonosító: 11543528
Irodai azonosító: 383797
Cím: Szakoly utca
Telek: 805 négyzetméter
Ingatlan állapota: Átlagos
Jelleg: családi ház
Építőanyag: Tégla
Fűtés jellege: Cirkó
Fűtés módja: Gáz
Komfort fokozat: Összkomfort
Kor: 21-50 éves
Szintek száma: 2 szint
Egész szobák: 6

Egyéb jellemzők

  • Csatorna
  • Garázs
  • Pince
  • Terasz

Térkép

Hasonló családi ház hirdetések

Eladó családi ház

Budapest XVI. ker

ELADÓ KÉTLAKÁSOS CSALÁDI HÁZ, EGYBEN VAGY LAKÁSONKÉNT! Sashalmon kétlakásos ...

Eladó családi ház

Budapest XVI. ker

CSALÁDI HÁZ KÖZKEDVELT SASHALMON !!! Eladásra kínálunk egy jó állapotú ...

Eladó családi ház

Budapest XVI. ker

NAGYCSALÁDOSOK, ÖSSZEKÖLTÖZŐK FIGYELEM! ALKALMI LEHETŐSÉG! XVI.kerület, ...

Eladó családi ház

Budapest XVI. ker

XVI. KERÜLETBEN: SASHALMON, CSENDES MELLÉKUTCÁBAN ELADÓ EGY 4 SZOBÁS, ...

Hasonló családi ház hirdetések

Eladó családi ház

Budapest XVI. ker

ELADÓ KÉTLAKÁSOS CSALÁDI HÁZ, EGYBEN VAGY LAKÁSONKÉNT! Sashalmon kétlakásos ...

Eladó családi ház

Budapest XVI. ker

CSALÁDI HÁZ KÖZKEDVELT SASHALMON !!! Eladásra kínálunk egy jó állapotú ...

Eladó családi ház

Budapest XVI. ker

NAGYCSALÁDOSOK, ÖSSZEKÖLTÖZŐK FIGYELEM! ALKALMI LEHETŐSÉG! XVI.kerület, ...

Eladó családi ház

Budapest XVI. ker

XVI. KERÜLETBEN: SASHALMON, CSENDES MELLÉKUTCÁBAN ELADÓ EGY 4 SZOBÁS, ...