Eladó családi ház Budapest XVI. ker 199 900 000 Ft

Leírás

CSAK NÁLUNK!
ÚJSZERŰ, NAPELEMES, FŰTHETŐ MEDENCÉS IKERHÁZ ELADÓ SASHALOM KIEMELT RÉSZÉN – ZUGLÓ HATÁRÁN

Prémium műszaki tartalom, alacsony rezsi, kiváló lokáció – itt valóban nincs kompromisszum.

Sashalom egyik legkeresettebb, csendes kertvárosi utcájában, mindössze 100 méterre Zuglótól kínálunk megvételre egy 8 éve épült, újszerű állapotú, bruttó 139 m²-es ikerházat, 332 m²-es, gondozott telken.


Főbb paraméterek:

- Bruttó terület: 139 m²

- Telek területe: 332 m²

- Építés éve: 2017


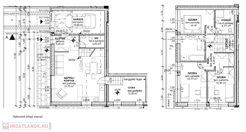
ELRENDEZÉS

Földszint - kertkapcsolattal:

- Világos, délnyugati tájolású nappali–konyha–étkező

- Hálószoba

- Fürdőszoba WC-vel

- Előszoba, közlekedő

- Garázs közvetlenül az előszobából

A nappaliból közvetlen kijárat nyílik a teraszos kertbe, ahol egy
5×3 méteres, beépített, hőszivattyúval fűthető medence,
6 m²-es faház, valamint tűzrakóhely került kialakításra.
A fűthető medence nemcsak a nyári hónapokban, hanem egész évben valódi kikapcsolódást biztosíthat.
A térkövezett udvar két autó parkolását teszi lehetővé.

Az egyedi tervezésű konyhabútor beépített gépekkel, kerámialapos főzőlappal felszerelt.

Emelet:

- 3 különnyíló hálószoba

- Tágas fürdőszoba WC-vel és káddal

- Az egyik hálószobához saját, zuhanyzós fürdőszoba tartozik

Műszaki tartalom, energetika:

- Hőszivattyús fűtés–hűtés rendszer

- Teljes épületben padlófűtés, emeleten kiegészítő falfűtés

- Nyári hűtés: földszinten klíma, emeleten falhűtés

- 14,3 kWh teljesítményű napelemes rendszer, szaldó elszámolással

- Porotherm Klíma tégla falazat, 15 cm homlokzati hőszigeteléssel

A modern műszaki megoldások kedvező energetikai besorolást és alacsony költségeket biztosítanak.

Extrák:

- Riasztórendszer

- Beépített konyhagépek

- Fűthető medence

- Garázs + 2 felszíni gépkocsibeálló

Lokáció és infrastruktúra:

- Bölcsőde, óvoda gyalogosan elérhető

- Iskola, orvosi rendelő, játszótér, bevásárlási lehetőségek pár perces távolságban

Örs Vezér tere
– autóval kb. 5 perc, tömegközlekedéssel ~10 perc

Összegzés

Ez az ingatlan nem kompromisszumos, hanem tudatos választás:
kiváló műszaki tartalom, átgondolt elrendezés, fűthető medencés kert és kitűnő lokáció egyben.

Amennyiben felkeltette érdeklődését, várom hívását vagy üzenetét, és örömmel állok rendelkezésére további információval, illetve személyes megtekintéssel kapcsolatban. Megtekintés előre egyeztetett időpontban, elsősorban hétvégén.

Eladná ingatlanát?
Értékesítésében átgondolt stratégiával, aktív jelenléttel és végigkísért folyamattal állok rendelkezésére.

A hirdetésben szereplő adatok tájékoztató jellegűek, nem minősülnek ajánlattételnek.

Családi ház részletei

Ár: 199 900 000 Ft
Méret: 115 négyzetméter
Azonosító: 11593048
Irodai azonosító: 391703
Cím: Prémium otthon
Telek: 332 négyzetméter
Ingatlan állapota: Kitűnő
Jelleg: ikerház
Építőanyag: Tégla
Fűtés jellege: Geotermikus
Fűtés módja: Hőszivattyú
Komfort fokozat: Dupla komfort
Kor: 6-10 éves
Szintek száma: 1 szint
Egész szobák: 3
Fél szobák: 2

Egyéb jellemzők

  • Csatorna
  • Garázs
  • Pince
  • Terasz

Térkép

Hasonló családi ház hirdetések

Eladó családi ház

Budapest XVI. ker

RITKASÁG SASHALOM, KERTVÁROSI RÉSZÉN! KÉT HÁZ ...

Eladó családi ház

Budapest XVI. ker

ELADÓ JÓ ÁLLAPOTÚ, TÁGAS NAGYPOLGÁRI STÍLUSÚ CSALÁDI HÁZ RÁKOSSZENTMIHÁLY ...

Eladó családi ház

Budapest XVI. ker

XVI. kerület központjában, kivételes adottságú, 1087 m2-es telken elhelyezkedő, ...

Eladó családi ház

Budapest XVI. ker

Többgenerációs családi ház eladó a 16. kerület központi részén! Budapest ...

Hasonló családi ház hirdetések

Eladó családi ház

Budapest XVI. ker

RITKASÁG SASHALOM, KERTVÁROSI RÉSZÉN! KÉT HÁZ ...

Eladó családi ház

Budapest XVI. ker

ELADÓ JÓ ÁLLAPOTÚ, TÁGAS NAGYPOLGÁRI STÍLUSÚ CSALÁDI HÁZ RÁKOSSZENTMIHÁLY ...

Eladó családi ház

Budapest XVI. ker

XVI. kerület központjában, kivételes adottságú, 1087 m2-es telken elhelyezkedő, ...

Eladó családi ház

Budapest XVI. ker

Többgenerációs családi ház eladó a 16. kerület központi részén! Budapest ...