Eladó családi ház Budapest XVI. ker 269 000 000 Ft

Leírás

XVI. kerület – Sashalom, Máté utca 4.
Prémium kulcsrakész családi ház terasszal, pincével és hőszivattyús fűtéssel

A XVI. kerület egyik legkedveltebb, csendes mellékutcájában, Sashalmon kínálunk megvételre egy kiváló minőségben egy bővítés keretében gyakorlatilag teljesen újjáépült családi házat.

Az ingatlan 30 cm-es Porotherm téglából épült, 20 cm EPS homlokzati hőszigeteléssel, a födémben 30 cm ásványgyapot, a padlóban 10 cm lépésálló hőszigetelés biztosítja a kimagasló energiahatékonyságot.
A nyílászárók 3 rétegű üvegezéssel készültek, elektromos alumínium redőnnyel és szúnyoghálóval szerelve.

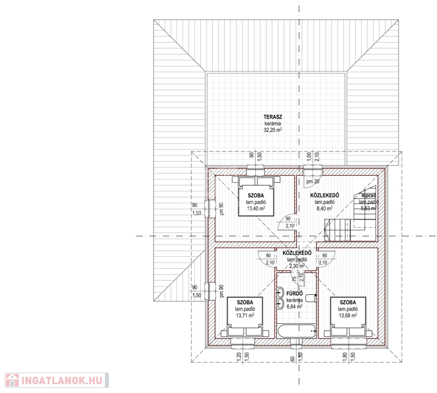
A ház 25 m²-es pincével, nettó 124 m² földszinti lakótérrel és nettó 56,54 m² emeleti szinttel rendelkezik.
A földszinten tágas, 65 m²-es amerikai konyhás nappali, valamint egy 19 m²-es hálószoba található saját fürdőszobával és gardróbbal, továbbá egy 37,74 m²-es fedett terasz és 6,22 m²-es belépő teszi teljessé a kényelmet.
Az emeleten 3 hálószoba, fürdő, háztartási helyiség és egy 31,92 m²-es terasz kapott helyet.

A fűtésről és hűtésről split rendszerű hőszivattyú gondoskodik padlófűtéssel és minden helyiségben fan-coil hűtéssel.
A házban Geberit WC található mindhárom fürdőben, riasztórendszer mozgásérzékelőkkel, valamint kamerarendszer-előkészítés is beépítésre került.
A kapu elektromos meghajtású, az udvar térkövezett, a környezet rendezett.

A ház 2 hónapon belül egyedi igények szerint befejezhető, az alábbi, választható tartalommal:
– hidegburkolat: 10 000 Ft/m²
– melegburkolat: 6 000 Ft/m²
– beltéri ajtók: 80 000 Ft/db
– fürdőkád: 70 000 Ft
– csaptelepek: 25 000 Ft/db
– épített zuhany
– Legrand elektromos szerelvények

A ház elhelyezkedése kiváló: nyugodt, családi házas övezetben, mégis közel a tömegközlekedéshez, iskolákhoz és bevásárlási lehetőségekhez.

INGYENES hitel tanácsadás, CSOK Plusz ügyintézés!
BANKFÜGGETLEN hitelcentrumunk az összes elérhető bank és hitelintézet ajánlatát versenyezteti az Ön kedvéért, ráadásul DÍJMENTESEN.

- Egyedi, bankfiókban nem elérhető kamat- és díjkedvezmények
- Hitelképesség vizsgálat
- Idő, energia és pénz megtakarítás
- Teljes hivatali ügyintézés

Amennyiben hirdetésem felkeltette az érdeklődését vagy egyéb információra van szüksége hívjon bizalommal!

Családi ház részletei

Ár: 269 000 000 Ft
Méret: 232 négyzetméter
Azonosító: 11578281
Irodai azonosító: 389425
Cím: Máté utca
Telek: 685 négyzetméter
Ingatlan állapota: Kitűnő
Jelleg: családi ház
Építőanyag: Tégla
Fűtés jellege: Geotermikus
Fűtés módja: Hőszivattyú
Komfort fokozat: Dupla komfort
Kor: Új építésű
Szintek száma: 2 szint
Egész szobák: 5

Egyéb jellemzők

  • Csatorna
  • Garázs
  • Pince
  • Terasz

Térkép

Hasonló családi ház hirdetések

Eladó családi ház

Budapest XVI. ker

Három lakás. Egy otthon. Befektetés. Eladó Sashalmon egy 220 m²-es, felújított ...

Eladó családi ház

Budapest XVI. ker

XVI. KERÜLETBEN, RÁKOSSZENTMIHÁLY, CSENDES MELLÉKUTCÁBAN,19 MÉTERES UTCAFRONTTAL, ...

Eladó családi ház

Budapest XVI. ker

2024-ES ÉPÍTÉSŰ, MODERN 180 M2-ES, 5 SZOBÁS, KÖRBEJÁRHATÓ CSALÁDI ...

Eladó családi ház

Budapest XVI. ker

Tágas, háromgenerációs családi ház Sashalom szívében – Kertvárosi ...

Hasonló családi ház hirdetések

Eladó családi ház

Budapest XVI. ker

Három lakás. Egy otthon. Befektetés. Eladó Sashalmon egy 220 m²-es, felújított ...

Eladó családi ház

Budapest XVI. ker

XVI. KERÜLETBEN, RÁKOSSZENTMIHÁLY, CSENDES MELLÉKUTCÁBAN,19 MÉTERES UTCAFRONTTAL, ...

Eladó családi ház

Budapest XVI. ker

2024-ES ÉPÍTÉSŰ, MODERN 180 M2-ES, 5 SZOBÁS, KÖRBEJÁRHATÓ CSALÁDI ...

Eladó családi ház

Budapest XVI. ker

Tágas, háromgenerációs családi ház Sashalom szívében – Kertvárosi ...