Eladó családi ház Budapest XVI. ker 319 000 000 Ft

Leírás

Új építésű, két szintes családi ház eladó Sashalom legszebb részén – prémium kialakítás, engedélyezett paraméterek szerint!

Budapest XVI. kerületében, Sashalom egyik legkedveltebb, csendes, kertvárosias részén kínáljuk eladásra ezt a korszerű, új építésű családi házat, amely egy 617 m²-es telken helyezkedik el, az Lke-1/XVI/SZ4 övezeti besorolásnak teljes mértékben megfelelően.

Főbb paraméterek:

Telek területe: 617 m²

Megengedett beépíthetőség: 25% (154,25 m²)

Tényleges beépítettség: 24,99% (154,20 m²)

Zöldfelület: 373,36 m² (60,51%)

Épületmagasság: 4,99 m (megengedett: max. 5 m)

Összes hasznos alapterület: 224,08 m²

Összes terasz és erkély: 25,35 m²

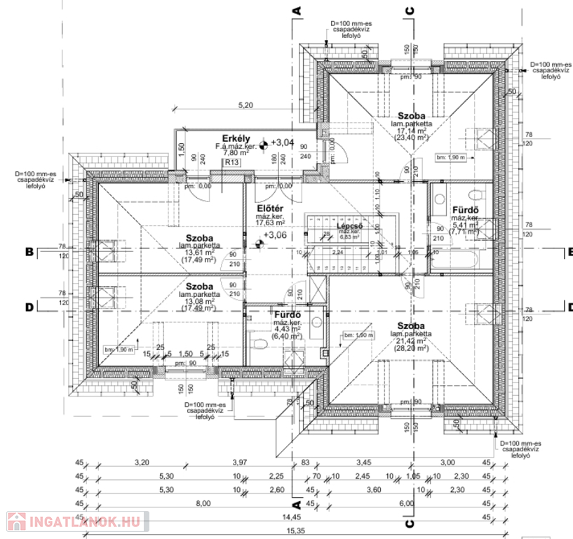
Helyiségek elosztása:
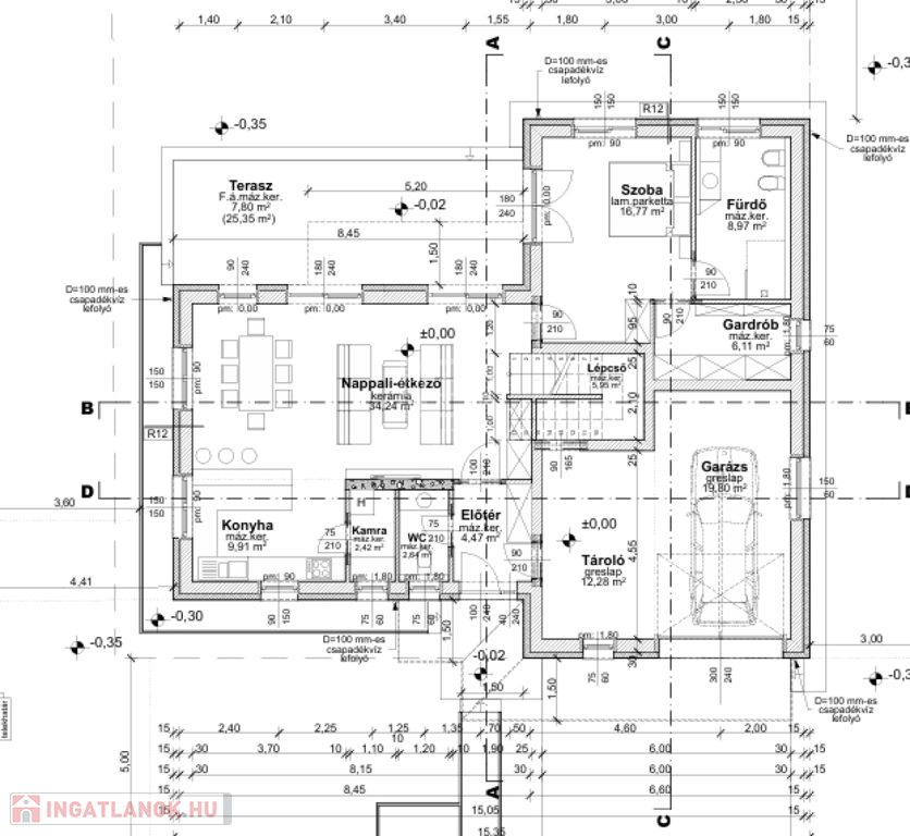
Földszint – 131,36 m² (lakótér + garázs + tároló + fedett terasz):

Tágas nappali-étkező: 34,24 m²

Külön konyha: 9,91 m²

Szoba: 16,77 m²

Előtér, WC, kamra, gardrób, fürdő, lépcső

Garázs + tároló: 32,08 m²

Fedett terasz: 7,80 m²

Nyitott terasz: 17,55 m²

Tetőtér – 92,72 m²:

4 hálószoba (13–21 m², bruttó: akár 28 m²)

2 fürdőszoba

Közlekedő / előtér

Erkély: 7,80 m²

További előnyök:

Új építés – modern műszaki tartalommal, kiváló elrendezéssel

Kertvárosi környezet – nyugodt, családbarát utcában

Saját garázs + több tárolóhely

Tágas, világos terek, dupla komfort

Ideális nagycsaládosoknak vagy többgenerációs otthonnak is!

Ügyfeleink részére BANKFÜGGETLEN hitelügyintéző kollégáink szívesen nyújtanak segítséget, hitellel vagy akár CSOK-kal kapcsolatban is!

A hirdetésben feltüntetett adatok és információk csak tájékoztató jellegűek, jogi kötelezettséggel nem bíró jognyilatkozatnak minősülnek, mely nem tekinthető ajánlat tételnek és nem járnak az eladóra nézve kötelező ajánlati kötöttséggel.

Amennyiben felkeltettem az érdeklődését vagy bármely további kérdése lenne, keressen bizalommal.

Akár hétvégén is!

CSA

Családi ház részletei

Ár: 319 000 000 Ft
Méret: 249 négyzetméter
Azonosító: 11572506
Irodai azonosító: 388342
Cím: Ebben az évben tető alatt
Telek: 617 négyzetméter
Ingatlan állapota: Kitűnő
Jelleg: családi ház
Építőanyag: Tégla
Fűtés jellege: Geotermikus
Fűtés módja: Hőszivattyú
Komfort fokozat: Dupla komfort
Kor: Új építésű
Szintek száma: 1 szint
Egész szobák: 7

Egyéb jellemzők

  • Csatorna
  • Garázs
  • Pince
  • Terasz

Térkép

Hasonló családi ház hirdetések

Eladó családi ház

Budapest XVI. ker

XVI. KERÜLETBEN SASHALOM, CSENDES RÉSZÉN, KÖRBEJÁRHATÓ, 224 M2, 5 SZOBÁS, ...

Eladó családi ház

Budapest XVI. ker

ELADÓ TULAJDONOSTÓL Budapest XVI. kerületének kertvárosában, 317 m2 ...

Eladó családi ház

Budapest XVI. ker

ÁLMAI OTTHONA ÉPÜL SZENTGYÖRGYTELEPEN! Eladó egy 300 m²-es, 6 szobás, ...

Hasonló családi ház hirdetések

Eladó családi ház

Budapest XVI. ker

XVI. KERÜLETBEN SASHALOM, CSENDES RÉSZÉN, KÖRBEJÁRHATÓ, 224 M2, 5 SZOBÁS, ...

Eladó családi ház

Budapest XVI. ker

ELADÓ TULAJDONOSTÓL Budapest XVI. kerületének kertvárosában, 317 m2 ...

Eladó családi ház

Budapest XVI. ker

ÁLMAI OTTHONA ÉPÜL SZENTGYÖRGYTELEPEN! Eladó egy 300 m²-es, 6 szobás, ...