Eladó családi ház Budapest XVII. ker 129 990 000 Ft

Leírás

Csak a GDN Ingatlanhálózat kínálatában!

Megvételre kínálunk, Rákoskerten, kertvárosi környezetben egy 810 nm-es, önálló összközműves telken lévő kétgeneráció együttélésére alkalmas felújított 3+2 szobás ingatlant.

A nagyobbik 106 nm-es ház lakótere két szinten terül el, ezek a földszinti lakószint és a beépített tetőtér. A földszinten található egy tágas napfényben úszó amerikai konyhás nappali, egy háló szoba, előtér - közlekedő, kádas - zuhanyzós fürdő valamint egy mosó konyha.
A tetőtérben az alábbi helységek találhatóak, egy közlekedő egy + két félszoba, Wc amelyben található a kombicirkó - használati melegvíz tároló.
A ház felújított állapotban van, beltéri szobaajtók beépítése, tetőtér festése az új tulajdonosra vár. A földszinten padlófűtés,a tetőtérben hűtő-fűtő klíma gondoskodik a komfortról.

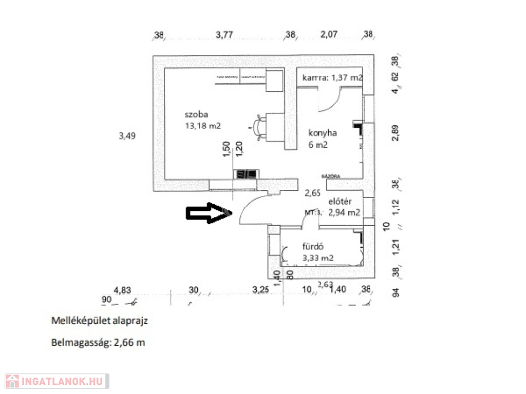
Az utcáról külön kapubejáraton keresztül közelíthető meg egy szoba-konyhás, komfortos 36 nm-es, konvektoros épület ami külön gázórával is rendelkezik. Az épületeket tágas kert veszi körül termő gyümölcsfákkal.

Extrák:
- napelem előkészítés a mosókonyhában,
- H tarifára át lehet jelenteni,
- pakolható padlástér
- a kapuhoz elektromos kiállás vezetékelve,
- elektromos autóhoz töltő vezetékelve

A telek övezeti besorolása Lke-1/2, mely 30%-os beépíthetőséget enged, ennek megfelelően a két épület igény szerint bővíthető!

A közelben óvoda, háziorvosi rendelő és gyógyszertár, hentes, virágbolt, elérhető. A buszmegálló a háztól pár perces sétára van, busszal könnyen, átszállás nélkül megközelíthető az Örs vezér tér és Kőbánya-Kispest. A maglódi Auchan illetve az M0-ás is 2-3 perc távolságra van autóval.

Rugalmas megtekintésért - további információért hívjon bizalommal a hét minden napján.


DÍJMENTES hiteltanácsadás ügyfeleinknek!

Kamattámogatott hitelek, piaci hitel esetén partneri kedvezmények - egyedi kamatok igénylése irodánkon keresztül!

Családi ház részletei

Ár: 129 990 000 Ft
Méret: 107 négyzetméter
Azonosító: 11528028
Irodai azonosító: 381990
Cím: Pányva utca
Telek: 810 négyzetméter
Ingatlan állapota: Felújított
Jelleg: családi ház
Építőanyag: Tégla
Fűtés jellege: Cirkó
Fűtés módja: Gáz
Komfort fokozat: Dupla komfort
Kor: 21-50 éves
Szintek száma: 1 szint
Egész szobák: 3
Fél szobák: 2

Egyéb jellemzők

  • Csatorna
  • Garázs
  • Pince
  • Terasz

Térkép

Hasonló családi ház hirdetések

Eladó családi ház

Budapest XVII. ker

XVII. KERÜLETBEN, RÁKOSKERTEN ELADÓ EGY JÓ ÁLLAPOTÚ, SZINTELTOLÁSOS, ...

Eladó családi ház

Budapest XVII. ker

KÉTGENERÁCIÓS, felújított CSALÁDI HÁZ RÁKOSKERESZTÚR SZÍVÉBEN – ...

Eladó családi ház

Budapest XVII. ker

XVII. kerületben, Rákoskeresztúr városközpont közelében eladó egy családi ...

Eladó családi ház

Budapest XVII. ker

RÁKOSKERESZTÚR KÖZPONTJÁHOZ KÖZEL ELADÓ CSALÁDI HÁZ. XVII. kerületben, ...

Hasonló családi ház hirdetések

Eladó családi ház

Budapest XVII. ker

XVII. KERÜLETBEN, RÁKOSKERTEN ELADÓ EGY JÓ ÁLLAPOTÚ, SZINTELTOLÁSOS, ...

Eladó családi ház

Budapest XVII. ker

KÉTGENERÁCIÓS, felújított CSALÁDI HÁZ RÁKOSKERESZTÚR SZÍVÉBEN – ...

Eladó családi ház

Budapest XVII. ker

XVII. kerületben, Rákoskeresztúr városközpont közelében eladó egy családi ...

Eladó családi ház

Budapest XVII. ker

RÁKOSKERESZTÚR KÖZPONTJÁHOZ KÖZEL ELADÓ CSALÁDI HÁZ. XVII. kerületben, ...