Eladó családi ház Budapest XVII. ker 134 900 000 Ft

Leírás


Megvételre kínálunk a 17. kerület egyik legszebb részén, a Szőlőliget lakóparkban, egy minimál stílusú, garázsos, erkélyes, dupla teraszos, 140nm-es, 4 szobás, 2 fürdős önálló luxus családi házat. A teraszok együttes mérete 42 nm. Minőségi alapanyagokból, igényes kivitelezés jellemzi a projektet, ahol a biztonság és a kényelem mellett az energiatakarékosság volt a fő szempont. A ház átgondolt tervezésének köszönhetően kényelmes, otthonos, szellős, viszont ugyanakkor bővelkedik a reprezentatív, elegáns elemekkel. Az ingatlan klímájáról, valamint a használati melegvíz ellátásáról egy modern, energia takarékos, innovatív levegő-víz hőszivattyú gondoskodik akár H tarifás üzemeltetéssel. A hőszivattyú a padlón fűt és a mennyezeten hűt, így télen-nyáron egyöntetű kellemes a hőmérséklet.

Ennél a beruházásnál most lehetősége van kompromisszumok nélkül egy olyan lakásba költözni, ahol Ön kiválaszthatja a hideg és meleg burkolatokat, szanitereket, valamint az egyéb kiegészítőket a családja legnagyobb megelégedésére, ez által személyre szabva álmai otthonát.

A kulcsra kész ár tartalmazza az elektromos redőny előkészítést, három rétegű nyílászárókat, riasztó előkészítést, kaputelefon és motoros kapu kiépítést, valamint napelem előkészítést. A gépjárművekkel az ingatlanhoz tartozó garázsban vagy térkövezett beállón lehet biztonságosan parkolni.  

 

Az ingatlanhoz 570 nm-es telek tartozik

 

Igénybe vehető lehetséges kedvezmények:

CSOK

5% Áfa visszatérítés

NHP Zöld Otthon Hitel, akár 70 m Ft.

Babaváró hitel

Illeték kedvezmény vagy mentesség.



Az ingatlan árát a kulcsrakész állapotra adtuk meg, decemberi költözéssel.



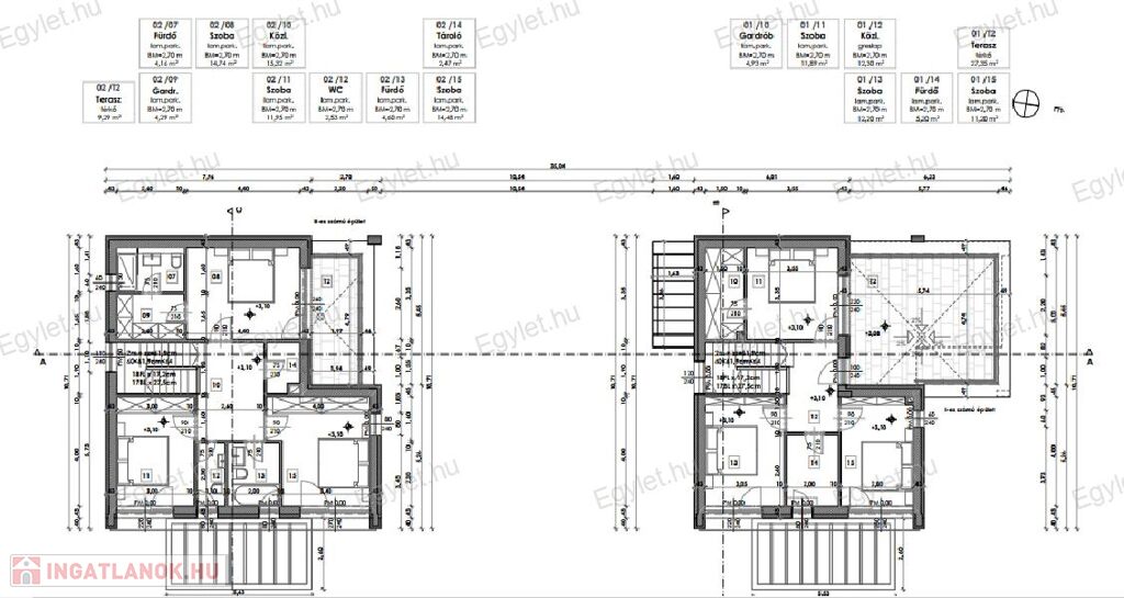
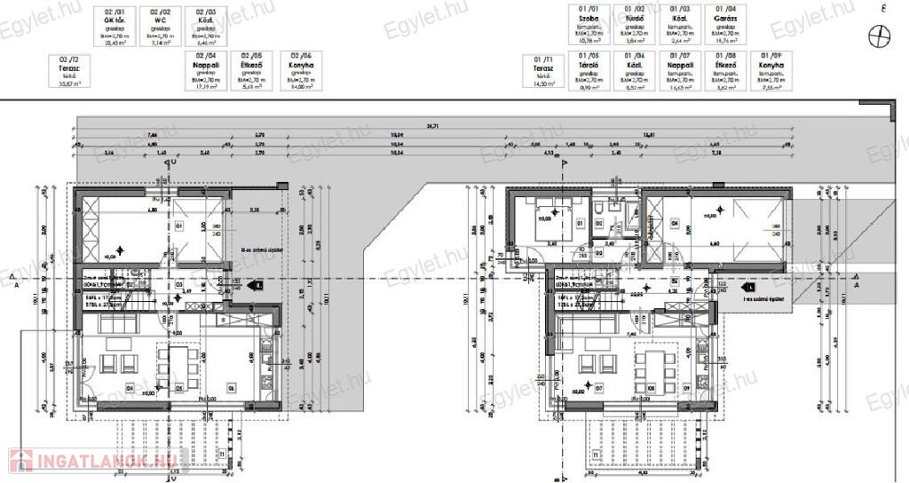
Helyiség lista a földszinten:

- Előtér

- Közlekedő

- Szoba

- Fürdőszoba

- Amerikai konyha,

- Étkező

- Nappali 

- Tároló

- Garázs



Helyiség lista az emeleten:

- Közlekedő

- Lépcsőház

- Fürdőszoba

- Három szoba

- Gardrób

- Terasz

 

Az ingatlan biztonságos, nyugodt, csendes, kertes házas övezetében, Rákosliget egyik legszebb részén található, a Szőlőliget Ökopark területén. A környék fejlett infrastruktúrájának köszönhetően bővelkedik a szociális intézményekben, bölcsőde, óvoda, általános iskola, orvosi intézmények, bevásárlási lehetőségek, találhatóak a közelben.



Közlekedése kiváló, busszal az Örs vezér tér vagy vonattal a Keleti pu. rövid idő alatt megközelíthető. Az M0-ás és az M31-es autópálya öt perc alatt elérhető.



Hitel, CSOK igénylésben díjmentes ügyintézéssel állunk rendelkezésére! Nálunk kiválaszthatja az Ön számára legkedvezőbb ajánlatot.



Várom megtisztelő érdeklődésüket.

Családi ház részletei

Ár: 134 900 000 Ft
Méret: 140 négyzetméter
Azonosító: 11413775
Irodai azonosító: 209000773
Telek: 570 négyzetméter
Ingatlan állapota: Átlagos
Jelleg: családi ház
Építőanyag: Tégla
Komfort fokozat: Dupla komfort
Kor: Új építésű
Egész szobák: 4

Hasonló családi ház hirdetések

Eladó családi ház

Budapest XVII. ker

XVII. KERÜLETBEN, RÁKOSKERTEN ELADÓ EGY JÓ ÁLLAPOTÚ, SZINTELTOLÁSOS, ...

Eladó családi ház

Budapest XVII. ker

XVII. kerületben, Rákoskeresztúr városközpont közelében eladó egy családi ...

Eladó családi ház

Budapest XVII. ker

RÁKOSKERESZTÚR KÖZPONTJÁHOZ KÖZEL ELADÓ CSALÁDI HÁZ. XVII. kerületben, ...

Eladó családi ház

Budapest XVII. ker

ELADÓ ÚJ ÉPÍTÉSŰ ikerház A KÖZKEDVELT AKADÉMIAÚJTELEPEN A 17.KERÜLETBEN. AZONNAL ...

Hasonló családi ház hirdetések

Eladó családi ház

Budapest XVII. ker

XVII. KERÜLETBEN, RÁKOSKERTEN ELADÓ EGY JÓ ÁLLAPOTÚ, SZINTELTOLÁSOS, ...

Eladó családi ház

Budapest XVII. ker

XVII. kerületben, Rákoskeresztúr városközpont közelében eladó egy családi ...

Eladó családi ház

Budapest XVII. ker

RÁKOSKERESZTÚR KÖZPONTJÁHOZ KÖZEL ELADÓ CSALÁDI HÁZ. XVII. kerületben, ...

Eladó családi ház

Budapest XVII. ker

ELADÓ ÚJ ÉPÍTÉSŰ ikerház A KÖZKEDVELT AKADÉMIAÚJTELEPEN A 17.KERÜLETBEN. AZONNAL ...