Eladó családi ház Budapest XVIII. ker 139 900 000 Ft

Leírás

Eladó egy kivételes ikerházfél Budapest 18. kerületében, kertvárosi nyugalomban terasz, három hálószoba, hatalmas nappali-konyha-étkező, parkosított kert, tökéletes közlekedés!

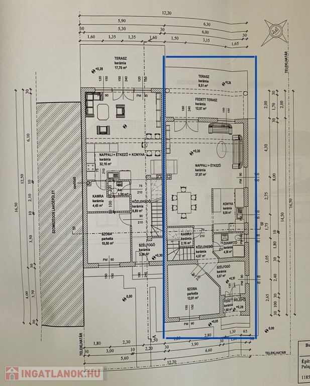
Ha olyan otthont keresel, amely egyszerre tágas, modern, praktikus és zöldövezeti, akkor ne keress tovább! A XVIII. kerület egyik legkedveltebb, kertvárosias részén: Szemeretelepen, az 50-es villamos vonalához közel, az Ungvár utca megállótól mindössze 4 perc sétára kínálunk megvételre egy 122 nm-es + 20 nm terasz, két szintes ikerházfelet, 344 nm saját telekrésszel. A ház 2007-ben épült és azóta folyamatosan karbantartott. Ez a ház tökéletes választás lehet nagyobb családnak, otthonról dolgozóknak vagy egyszerűen azoknak, akik kompromisszummentes életteret keresnek.

A földszinten egy impozáns, 45 nm-es amerikai konyhás nappali fogad, amelybe egész nap árad a természetes fény. Közvetlen kijárat nyílik a 20 nm-es, részben fedett teraszra, amely lépcsőzés nélkül vezet ki a szépen parkosított kertbe ideális helyszíne lehet reggeli kávézásoknak vagy nyári grillezéseknek. Ezen a szinten található még egy kényelmes hálószoba, egy zuhanyzós fürdőszoba WC-vel, valamint egy tágas előtér nagy beépített szekrénnyel, szélfogó és praktikus háztartási helyiség is, amely megkönnyíti a mindennapokat.

A kert maga igazi zöld oázis: az automata locsolórendszer nemrégiben került felújításra, a korábbi tujasor helyére babérmeggybokrok kerültek, amelyek jól tűrik a mediterrán jellegű klímát, így a kerítés mentén egész évben gondozott, zöld látvány fogad. Az udvart új, modern válaszkerítés határolja az ikerszomszéd felé, a kert többi részét körülölelő fakerítés pedig tavaly friss festést kapott. A kerti tárolásról egy kis faház gondoskodik, amely tökéletes kerékpárok, kerti szerszámok vagy gyerekjátékok elhelyezésére. Az udvar térkövezett részén akár három autó is kényelmesen parkolhat egymás mögött, elektromos kapu biztosítja a gyors ki- és bejutást.

Az emeletre fa borítású lépcső vezet fel, ahol két tágas hálószoba található mindkettő ideális akár gyerekszobának, akár dolgozó- vagy vendégszobának is. A szinten kapott helyet a második fürdőszoba, amelyben pezsgőfürdős kád, dupla mosdókagyló és WC is rendelkezésre áll. Innen egy padláslétrán keresztül feljuthatunk a tárolásra is alkalmas padlástérbe.

A ház fűtéséről egy Vaillant gázcirkó rendszer gondoskodik, amely a hidegburkolatos helyiségekben radiátorokkal kombinált padlófűtést, a többiben pedig radiátoros fűtést biztosít. A gázcirkó rendszer a melegvizet az egész lakásban keringeti, így bárhol mindig azonnal van melegvíz. A kellemes hőmérsékletről nyáron és télen is három darab Gree márkájú hűtő-fűtő klímaberendezés gondoskodik ezek 2022-ben kerültek beszerelésre (egy a földszinten, kettő az emeleti hálókban). A ház teljes területén riasztórendszer és kamerás megfigyelés működik, így biztonságban érezhetjük magunkat éjjel-nappal.

A környék infrastruktúrája kiváló: sétatávolságban minden szükséges szolgáltatás elérhető több óvoda, iskola, bölcsőde, orvosi rendelő, posta, élelmiszer üzlet és a Lőrinc Center bevásárlóközpont is könnyen megközelíthető. A Liszt Ferenc Nemzetközi Repülőtér 15 percen belül elérhető autóval, ugyanakkor az ingatlan nem esik a felszállópályák vonalába, így a környezet kifejezetten csendes és nyugodt.

A belváros irányába többféle tömegközlekedési lehetőség is adott: villamos+metró, busz és vonat is elérhető a közelből, így akár autó nélkül is be lehet jutni a város szívébe.

Ingatlanközvetítők kérjük ne keressenek!

Családi ház részletei

Ár: 139 900 000 Ft
Méret: 122 négyzetméter
Azonosító: 11553983
Cím: Ungvár u.
Ingatlan állapota: Kérdezzen rá a hirdetőtől »
Jelleg: családi ház
Építőanyag: Kérdezzen rá a hirdetőtől »
Egész szobák: 4

Hasonló családi ház hirdetések

Eladó családi ház

Budapest XVIII. ker

SZENT-IMRE KERTVÁROSBAN KÉT GENERÁCIÓS CSALÁDI HÁZ ELADÓ! XVIII. kerületben ...

Eladó családi ház

Budapest XVIII. ker

Referens: GI11/100212 Eladásra kínálok egy rendezett kert ölelésében ...

Eladó családi ház

Budapest XVIII. ker

Almáskert Villa Park – Új építésű luxus családi házak a XVIII. kerület ...

Eladó családi ház

Budapest XVIII. ker

Budapest XVIII. kerületében, Ganz-kertvárosban eladó egy 90 nm-es, nappali ...

Hasonló családi ház hirdetések

Eladó családi ház

Budapest XVIII. ker

SZENT-IMRE KERTVÁROSBAN KÉT GENERÁCIÓS CSALÁDI HÁZ ELADÓ! XVIII. kerületben ...

Eladó családi ház

Budapest XVIII. ker

Referens: GI11/100212 Eladásra kínálok egy rendezett kert ölelésében ...

Eladó családi ház

Budapest XVIII. ker

Almáskert Villa Park – Új építésű luxus családi házak a XVIII. kerület ...

Eladó családi ház

Budapest XVIII. ker

Budapest XVIII. kerületében, Ganz-kertvárosban eladó egy 90 nm-es, nappali ...