Eladó családi ház Budapest XVIII. ker 144 900 000 Ft

Leírás

XVIII. kerület, CSENDES, ÚJ kertvárosias részén ÚJ ÉPÍTÉSŰ családi ház ELADÓ!

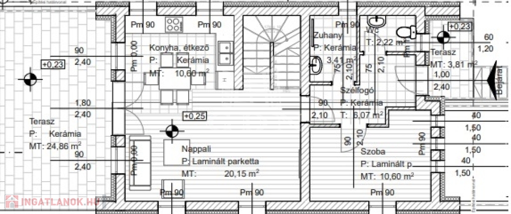
A három szintes otthonhoz tartozik egy 57,81 m2-s garázs, tároló, gépészet, elektromos garázsajtóval, 24,86 m2-s terasz, és egy 3,81 m2-s erkély. A nettó 53,5 m2 -es Földszinten egy tágas amerikai-konyha nappali, zuhanyzó, külön mosdó, hálószoba, közlekedő, előszoba, a nettó 45,57 m2-es emeleten 4 hálószoba, melyből az egyik beépített gardróbbal kialakított, fürdő-mosdóval, közlekedő található. A 3,35 m2-s erkélyre az egyik hálószobából tudunk kijutni.
Főfalai Porotherm 30 NF, válaszfalak Porotherm 10 NF.
Az épület központi fűtését padlófűtés körök fogják biztosítani. A fűtési csőhálózat anyaga térhálósított Pe, melyek padlóban lesznek elhelyezve. A fűtési körök elosztását osztó-gyűjtő szerelvények fogják biztosítani körönkénti szabályozással. A fűtési rendszer hőellátását a létesítendő levegő/víz hőszivattyú fogja biztosítani.
A tervezett épületben a megújuló energiát felhasználó berendezés az épület fűtését és használati meleg-víz termelését biztosító levegő/víz hőszivattyú.
Tető fedése cseréphéjazat.

Jelenleg 60% készültségi fokú az építkezés. Mindhárom szint elkészült, tetővel, pinceszint teljes vízszigetelése megtörtént. Villanyszerelési munkák elkezdődtek.


Átadás: Adás-vétel szerződéstől számítva 4-5 hónap.

A Tulajdonos beszámít Budapest területén garzonlakást, illetve építési telket Budapesten és 30 km-es vonzáskörzetében!

CSOK PLUSZ, kedvezményes hitel felvehető!
Amennyiben felkeltettem érdeklődését. keressen bizalommal!
Ha nem veszem fel, visszahívom!
ID: 382467

Családi ház részletei

Ár: 144 900 000 Ft
Méret: 144 négyzetméter
Azonosító: 11610380
Irodai azonosító: 382467
Cím: Olaszfa utca
Telek: 427 négyzetméter
Ingatlan állapota: Kitűnő
Jelleg: családi ház
Építőanyag: Tégla
Fűtés jellege: Geotermikus
Fűtés módja: Hőszivattyú
Komfort fokozat: Dupla komfort
Kor: 1-5 éves
Szintek száma: 2 szint
Egész szobák: 5
Fél szobák: 1

Egyéb jellemzők

  • Csatorna
  • Garázs
  • Pince
  • Terasz

Térkép

Hasonló családi ház hirdetések

Eladó családi ház

Budapest XVIII. ker

ELADÓ ÚJ ÉPÍTÉSŰ 145 m2-es 5 szobás CSALÁDI HÁZ a 18.ik kerületben ...

Eladó családi ház

Budapest XVIII. ker, Ganzkertváros

18. kerület zöldövezeti, csendes utcájában napelemes, 140 m2-es + 40 m2. ...

Eladó családi ház

Budapest XVIII. ker

Eladó egy kivételes ikerházfél Budapest 18. kerületében, kertvárosi ...

Eladó családi ház

Budapest XVIII. ker

Különleges lehetőség az Erdőskert városrész szívében! Budapest ...

Hasonló családi ház hirdetések

Eladó családi ház

Budapest XVIII. ker

ELADÓ ÚJ ÉPÍTÉSŰ 145 m2-es 5 szobás CSALÁDI HÁZ a 18.ik kerületben ...

Eladó családi ház

Budapest XVIII. ker, Ganzkertváros

18. kerület zöldövezeti, csendes utcájában napelemes, 140 m2-es + 40 m2. ...

Eladó családi ház

Budapest XVIII. ker

Eladó egy kivételes ikerházfél Budapest 18. kerületében, kertvárosi ...

Eladó családi ház

Budapest XVIII. ker

Különleges lehetőség az Erdőskert városrész szívében! Budapest ...