Eladó családi ház Budapest XVIII. ker 148 900 000 Ft

Leírás


ELADÓ ÖNÁLLÓ CSALÁDI HÁZ A XVIII. KERÜLET KOSSUTH FERENC TELEPEN – KIEMELKEDŐ LEHETŐSÉG!

Englis version down below

Kizárólag most foglalhatóak le ezek az ÚJ ÉPÍTÉSŰ, DUPLAKOMFORTOS, HŐSZIVATTYÚS családi házak a XVIII. kerület egyik LEGJOBBAN FEJLŐDŐ részén, Kossuth Ferenc telepen! Az INGATLAN átadása 2025 szeptemberében várható, így a leendő tulajdonosnak lehetősége van a választást az aktuális igényeihez igazítani.

A kivitelezést egy MEGBÍZHATÓ, TŐKEERŐS KIVITELEZŐ végzi, akinek referenciái NAGYOBB PROJEKTEKBŐL is megtekinthetők, így a MINŐSÉG és a BIZTONSÁG garantált.

KIVÁLÓ BEFEKTETÉSI LEHETŐSÉG mindazok számára, akik MODERN, kényelmes életteret keresnek. MOST megvásárolható ez a 807 m2-es telken megvalósuló projekt, mely két különálló ingatlant magába foglal: egy IKERHÁZAT és egy ÖNÁLLÓ CSALÁDI HÁZAT. Mindkét épület hasonló alapterülettel rendelkezik, így igény szerint választható a MEGFELELŐ OTTHON.

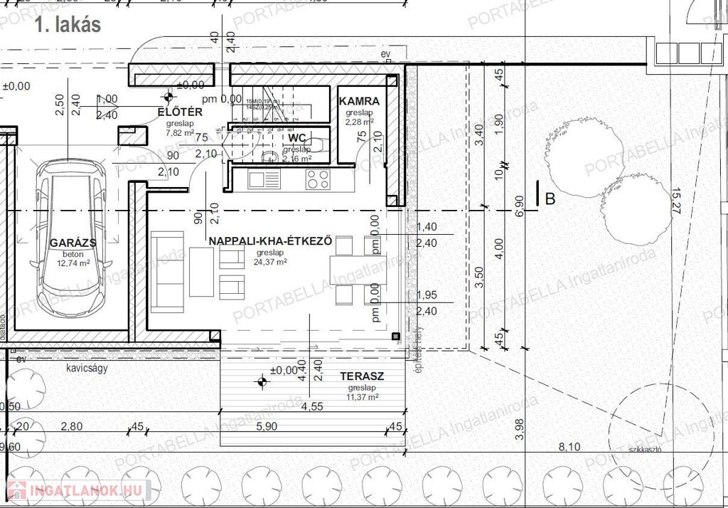
Önálló családi ház jellemzői:

Földszint

Előtér 4,84 m2 

Külön WC 1,98 m2

 Konyha 4,40 m2  

Nappali+étkező  22,50 m2

Terasz 8,96 m2

Garázs 12.06  m2

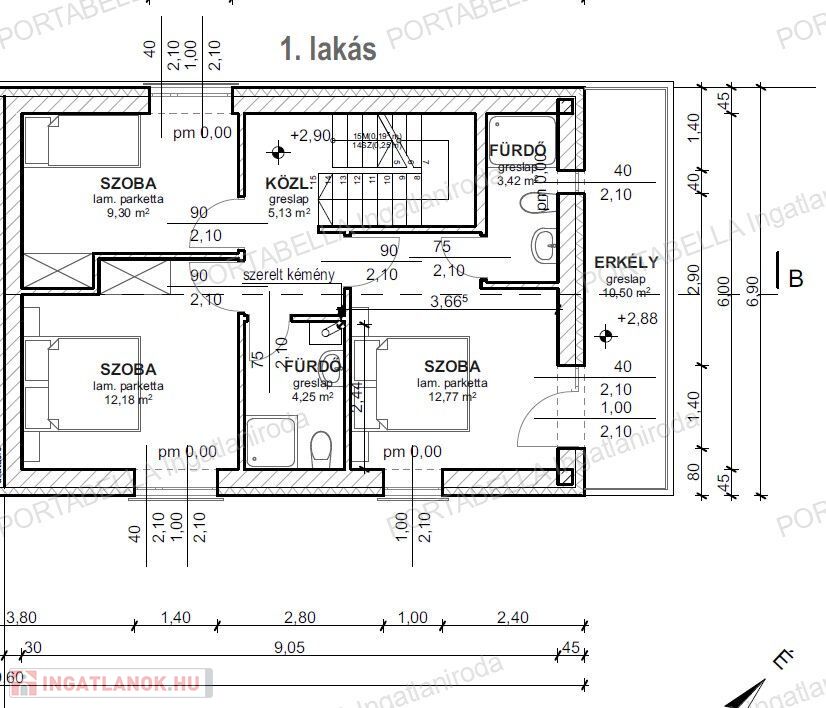
Emelet

Közlekedő 8,35 m2

Fürdőszoba+WC 4,16 m2

Fürdőszoba+WC 3,66 m2

Hálószoba 12,26 m2

Szoba 8,27 m2

Szoba 8,55 m2

Erkély  10,50 m2 

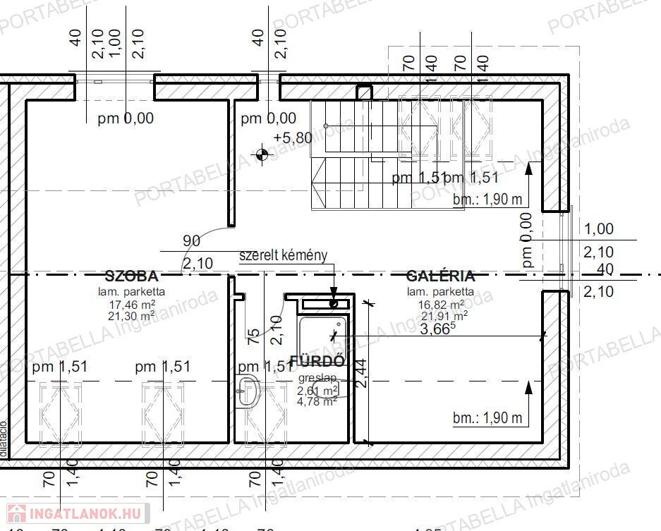
Tetőtér 

Szoba 13,43 m2

Galéria 18.16 m2

Fürdő 3,98m2

 

Műszaki leírás

Beton sávalap -vasbeton lemezalap

30 cm porotherm teherhordó falak szálcsiszolt kivitelben, sarkokon 25/25 cm méterű vasbeton erősítő pillérekkel

20 cm monolit vasbeton lemezfödém

10 cm Ytong válaszfalak

3 rétegű hőszigetelt műanyag nyílászárók elektromos redőnnyel, szúnyoghálóval

15 cm ásványgyapot szigetelés a tetőben, 20 cm zárófödém, 10 cm EPS hőszigetelés a homlokzati falon.

Monolit vasbeton lépcsők kerámia burkolattal

Erkély, belső lépcsők üvegkorlát fémkerettel 

Tető fa ácsszerkezet, hőszigetelt szarufa közökkel, cserépfedés, alumínium színes eresz csatornarendszerrel

Fűtés-hűtés hőszivattyús technológia, padlófűtés, split klímák

Kaputelefon, tv antenna, telefonhálózat kiépítése, nyitás és mozgásérzékelők beépítése

Választható burkolatok:

melegburkolat 6.000 Ft/m2

hidegburkolat 10.000 Ft/m2

beltéri ajtók: 100.000 Ft/m2

A lakás FINANSZÍROZÁSA rendkívül KEDVEZŐ, hiszen igényelhető a CSOK PLUSZ, ÁLLAMI KAMATTÁMOGATÁSÚ LAKÁSHITEL, ILLETÉKMENTESSÉG, valamint BABAVÁRÓ hitel is.

Az ingatlan KIVÁLÓ INFRASTRUKTURÁLIS környezetben helyezkedik el: a közelben minden FONTOS intézmény – ÉLELMISZERBOLT, ISKOLA, ÓVODA, ORVOSI RENDELŐ –, ami a mindennapi kényelmet biztosítja. A TÖMEGKÖZLEKEDÉS is könnyen elérhető, hiszen BUSZOK és VONAT segítik a közlekedést a város bármely pontjára, de a BELVÁROS, illetve az M0-ÁS AUTÓPÁLYA is egyszerűen, több főútvonalon megközelíthető.

Átgondolt tervezés, MODERN műszaki megoldások és KIVÉTELES KÖRNYEZET várja az új tulajdonosokat. Befektetésnek és saját otthonnak egyaránt IDEÁLIS választás!

Ne hagyja ki ezt a KIVÉTELES lehetőséget! Foglalja le új otthonát már ma!

FOR SALE: DETACHED FAMILY HOUSE IN DISTRICT XVIII, KOSSUTH FERENC ESTATE – OUTSTANDING OPPORTUNITY!

These NEWLY BUILT, DOUBLE COMFORT, HEAT PUMP family homes in one of the FASTEST DEVELOPING areas of District XVIII, at Kossuth Ferenc estate, are now available for reservation exclusively! The PROPERTY is expected to be handed over in September 2025, giving the future owner the opportunity to tailor their choice to their current needs.

The construction is carried out by a RELIABLE, FINANCIALLY STRONG CONTRACTOR, whose references can be viewed from LARGER PROJECTS as well, thus QUALITY and SAFETY are guaranteed.

AN EXCELLENT INVESTMENT OPPORTUNITY for those seeking a MODERN, comfortable living space. This project, located on a plot of 807 m2, is now available for purchase and includes two separate properties: a SEMI-DETACHED HOUSE and a DETACHED FAMILY HOUSE. Both buildings have similar floor areas, so you can choose the RIGHT HOME according to your needs.

Features of the detached family house:

Ground Floor

Entrance hall: 4.84 m2

Separate toilet: 1.98 m2

Kitchen: 4.40 m2

Living room + dining area: 22.50 m2

Terrace: 8.96 m2

Garage: 12.06 m2

First Floor

Hallway: 8.35 m2

Bathroom + toilet: 4.16 m2

Bathroom + toilet: 3.66 m2

Bedroom: 12.26 m2

Room: 8.27 m2

Room: 8.55 m2

Balcony: 10.50 m2

Attic

Room: 13.43 m2

Gallery: 18.16 m2

Bathroom: 3.98 m2

Technical Description

- Reinforced concrete strip foundation – reinforced concrete slab foundation

- 30 cm Porotherm load-bearing walls with brushed finish, reinforced concrete pillars with 25x25 cm sections at the corners

- 20 cm monolithic reinforced concrete slab ceiling

- 10 cm Ytong partition walls

- Triple-glazed, thermally insulated plastic doors and windows with electric shutters and mosquito screens

- 15 cm mineral wool insulation in the roof, 20 cm top slab insulation, 10 cm EPS thermal insulation on the façade walls

- Monolithic reinforced concrete stairs with ceramic covering

- Balcony and interior stairs with glass railings and metal frames

- Roof structure: wooden carpentry, heat-insulated rafter spaces, tile covering, colored aluminum gutter system

- Heating and cooling with heat pump technology, underfloor heating, split air conditioning units

- Intercom, TV antenna, telephone network installed, opening and motion sensors included

Selectable finishes:

- Laminate flooring: 6,000 HUF/m2

- Ceramic flooring: 10,000 HUF/m2

- Interior doors: 100,000 HUF/unit

The FINANCING of the home is EXTREMELY FAVORABLE, as CSOK PLUS, GOVERNMENT-SUBSIDIZED MORTGAGE, EXEMPTION FROM PROPERTY TRANSFER DUTY, and BABAVÁRÓ loan can be applied for.

The property is located in an EXCELLENT INFRASTRUCTURAL environment: all IMPORTANT facilities – GROCERY STORE, SCHOOL, KINDERGARTEN, DOCTOR’S OFFICE – are nearby, providing convenience for everyday life. PUBLIC TRANSPORT is also easily accessible, with BUSES and TRAINS providing connections to all parts of the city, and the CITY CENTER and M0 MOTORWAY can also be easily reached via several main roads.

Thoughtful planning, MODERN technical solutions and an EXCEPTIONAL ENVIRONMENT await the new owners. An IDEAL choice both as an investment and as your own home!

Don't miss this EXCEPTIONAL opportunity! Reserve your new home today!

 

Családi ház részletei

Ár: 148 900 000 Ft
Méret: 125 négyzetméter
Azonosító: 11557660
Irodai azonosító: 716300788
Telek: 202 négyzetméter
Összesített energetikai besorolás: A++
Ingatlan állapota: Kitűnő
Jelleg: családi ház
Építőanyag: Tégla
Komfort fokozat: Összkomfort
Kor: Új építésű
Egész szobák: 5

Hasonló családi ház hirdetések

Eladó családi ház

Budapest XVIII. ker

SZENT-IMRE KERTVÁROSBAN KÉT GENERÁCIÓS CSALÁDI HÁZ ELADÓ! XVIII. kerületben ...

Eladó családi ház

Budapest XVIII. ker

IKERHÁZ  ELADÓ DINAMIKUSAN FEJLŐDŐ KOSSUTH FERENC TELEPEN ...

Eladó családi ház

Budapest XVIII. ker

Almáskert Villa Park – Új építésű luxus családi házak a XVIII. kerület ...

Eladó családi ház

Budapest XVIII. ker

Új építésű ikerház eladó az Almáskertben, Budapest XVIII. kerületében! Kiváló ...

Hasonló családi ház hirdetések

Eladó családi ház

Budapest XVIII. ker

SZENT-IMRE KERTVÁROSBAN KÉT GENERÁCIÓS CSALÁDI HÁZ ELADÓ! XVIII. kerületben ...

Eladó családi ház

Budapest XVIII. ker

IKERHÁZ  ELADÓ DINAMIKUSAN FEJLŐDŐ KOSSUTH FERENC TELEPEN ...

Eladó családi ház

Budapest XVIII. ker

Almáskert Villa Park – Új építésű luxus családi házak a XVIII. kerület ...

Eladó családi ház

Budapest XVIII. ker

Új építésű ikerház eladó az Almáskertben, Budapest XVIII. kerületében! Kiváló ...