Eladó családi ház Budapest XVIII. ker 149 900 000 Ft

Leírás

ÚJ ÉPÍTÉSŰ, 4 HÁLÓSZOBÁS + NAPPALIS CSALÁDI HÁZ ELADÓ A XVIII. KERÜLETBEN, CSENDES KÖRNYEZETBEN!

Budapest XVIII. kerületének egyik legnyugodtabb részén, az Újpéteri telepen kínálunk megvételre egy most épülő, kétszintes családi házat, mely kiváló elosztásának köszönhetően 4 hálószobával és egy tágas nappali-konyha-étkező térrel biztosít kényelmes otthont akár nagyobb családok számára is.

Az ingatlan egy 857,5 m²-es telken helyezkedik el, utcafronti megközelítéssel. A telken belül egy másik, külön bejáratú, földszintes ház is épül, amely teljesen elszeparált, a két épület nem érintkezik egymással.

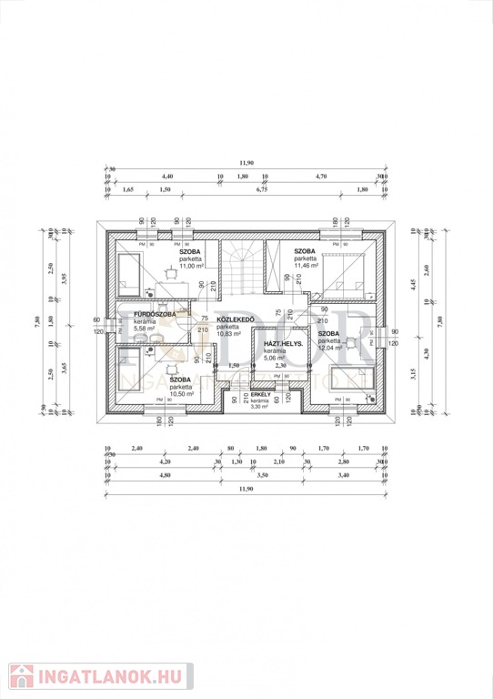
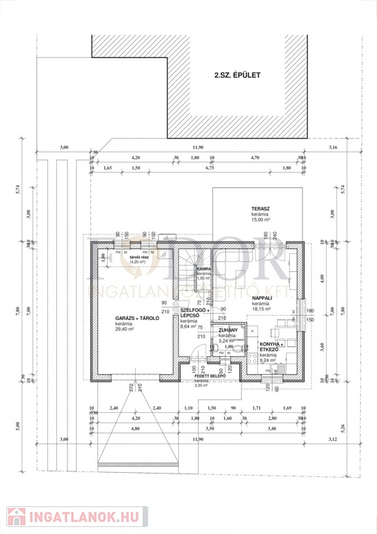
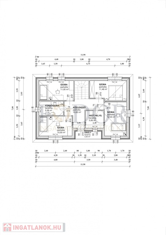
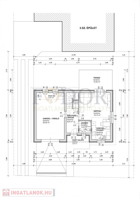
A kínált ház nettó alapterülete 137 m², és egy 29,4 m²-es garázs is tartozik hozzá. A földszinten egy világos, amerikai konyhás nappali kap helyet, mely közvetlen kertkapcsolattal rendelkezik – a 15 m²-es terasz tökéletes helyszíne lehet a szabadtéri pihenésnek. Ezen kívül kamra, előszoba, fürdőszoba, valamint a garázs is ezen a szinten található.

Az emeleten 4 külön bejáratú hálószoba, egy gardrób, egy kádas fürdőszoba és egy erkély szolgálja a lakók kényelmét. Az egyik szobából erkély is nyílik, mely kiváló lehetőséget kínál a pihenésre.

A házhoz tartozó, körülbelül 280 m²-es saját kertrész ideális választás mindazok számára, akik szeretik a nyugalmat és a zöld környezetet, de nem akarnak lemondani a jó közlekedésről és a város közelségéről sem.

Prémium kivitelezés, időtálló műszaki megoldások:
• Masszív alapozás: vasalt sávalap 50 cm szélességben
• Megbízható szigetelés: két réteg bitumenes talajnedvesség elleni védelem
• Stabil szerkezet: zsalukő lábazat, 30 cm vastag blokktégla falazat
• Korszerű hőszigetelés: 15 cm grafitos külső szigetelés + 25 cm a felső födémen
• Tartós födémrendszer: földszinten betongerendás, emeleten fagerendás megoldás
• Modern tetőfedés: betoncserép héjazat és horganyzott acél esőcsatorna rendszer
• Energiahatékonyság: levegő-víz hőszivattyú biztosítja a padlófűtést és melegvizet
• Kedvezményes „H” tarifa: alacsonyabb áramdíj, energiatakarékos üzemeltetés
• Extra komfort: törölközőszárítós radiátorok a fürdőkben, klíma előkészítés
• Minőségi nyílászárók: műanyag ablakok rejtett redőnytok előkészítéssel
• Biztonság: kiépített riasztórendszer vezérlővel
• Kényelem: elektromos kapu, térkövezett autó- és gyalogos bejáró
• Személyre szabható belső terek: hideg- és melegburkolatok, beltéri ajtók és szaniterek választhatók egy előre egyeztetett árkereten belül

Az építkezés jelenleg indul, így lehetősége van arra, hogy már az első lépésektől beleszóljon a ház belső kialakításába és saját elképzelései szerint formálja új otthonát.

Várható átadás: 2026. év vége.

Kiváló lokáció – minden karnyújtásnyira:
A környék kiváló infrastruktúrával rendelkezik: óvoda, iskola, boltok, tömegközlekedés néhány percen belül elérhető. A belváros gyorsan megközelíthető, mégis egy csendes, családi házas övezet nyugalmát élvezheti itt.

Ha olyan újépítésű családi házat keres, ahol a minőség és a praktikum találkozik, és még saját igényei szerint is formálhatja a belső tereket – ne hagyja ki ezt a lehetőséget!
Foglalja le most, és tervezze meg álmai otthonát a kezdetektől fogva!

Irodánk díjmentes hitelügyintézéssel, CSOK Plusz tanácsadással és banki partneri háttérrel segíti Önt a vásárlás minden lépésében!

Családi ház részletei

Ár: 149 900 000 Ft
Méret: 137 négyzetméter
Azonosító: 11564759
Irodai azonosító: 342003
Telek: 280 négyzetméter
Ingatlan állapota: Kitűnő
Jelleg: családi ház
Építőanyag: Tégla
Komfort fokozat: Dupla komfort
Kor: Új építésű
Egész szobák: 5

Egyéb jellemzők

  • Garázs
  • Terasz

Hasonló családi ház hirdetések

Eladó családi ház

Budapest XVIII. ker

ELADÓ ÚJ ÉPÍTÉSŰ 145 m2-es 5 szobás CSALÁDI HÁZ a 18.ik kerületben ...

Eladó családi ház

Budapest XVIII. ker

Eladó luxus ikerházfél medencével, több terasszal és ...

Eladó családi ház

Budapest XVIII. ker

Kizárólag a Fodor Ingatlanközvetítő Kft. portfóliójában! ELADÓ ÚJ ...

Eladó családi ház

Budapest XVIII. ker, Szent Imre-kertváros

Eladó háromszintes, 3 lakásos ingatlan Budapesten, az erdő szomszédságában! Budapest ...

Hasonló családi ház hirdetések

Eladó családi ház

Budapest XVIII. ker

ELADÓ ÚJ ÉPÍTÉSŰ 145 m2-es 5 szobás CSALÁDI HÁZ a 18.ik kerületben ...

Eladó családi ház

Budapest XVIII. ker

Eladó luxus ikerházfél medencével, több terasszal és ...

Eladó családi ház

Budapest XVIII. ker

Kizárólag a Fodor Ingatlanközvetítő Kft. portfóliójában! ELADÓ ÚJ ...

Eladó családi ház

Budapest XVIII. ker, Szent Imre-kertváros

Eladó háromszintes, 3 lakásos ingatlan Budapesten, az erdő szomszédságában! Budapest ...