Eladó családi ház Budapest XVIII. ker 95 000 000 Ft

Leírás

CasaNetWork Ingatlaniroda  kínálatában eladó ikerház Budapest XVIII. kerület kertvárosában. csendes átmenő forgalomtól mentes kis utcában.   Kertvárosias hangulatú, zöldövezeti, a Bókay kert - Gilice tér közelében fekvő kedves családi házat kínálok. 

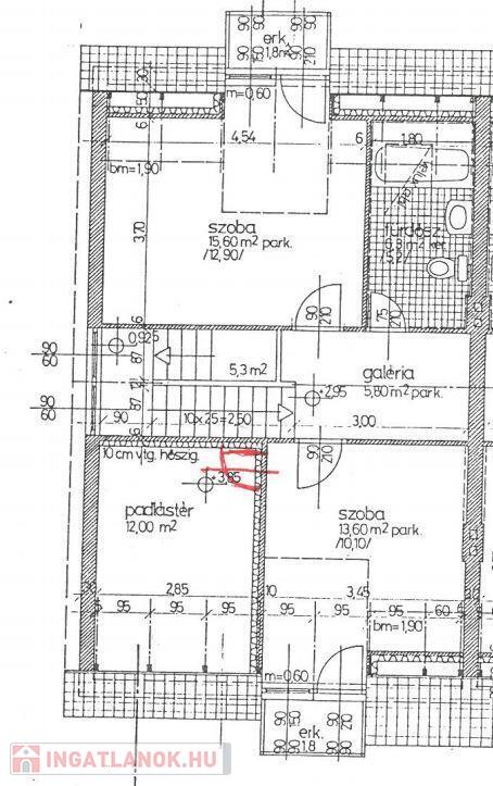
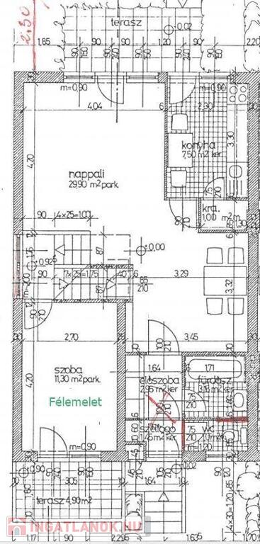
Az ingatlan kedves otthona lehet családnak, home office-ban dolgozóknak. A különnyíló szobák (3 db) elvonuláshoz, munka végzéshez ,a tágas (30 m2) nappali- étkező családi összejövetelekhez, a tágas, kertre néző  terasz kávézáshoz, relaxálni remek helyszín. A családi ház festés után, akár azonnal költözhető. 

A kert kizárólagos használatú, tökéletes méretű, grillezéshez, gyerekjátszónak, pihenésre, kikapcsolódásra. Jelenleg is gyönyörű örökzöldek ékesítik, még elfér néhány virág, akár pici konyhakert. 

Kisebb autó parkolhat a garázsban, ahonnan a lakótérbe belső lépcsőn felmehetünk. A kertben 2 db tároló tartozik a házhoz.(téglaépítésű, zárható)  

A lakóház műszaki jellemzői: 

  • az építés idejében a legkorszerűbb anyagokat használták fel, és nagy odafigyeléssel  karbantartotta a tulajdonos
  • a szinteltolások izgalmassá teszik a helyiségek elosztását 
  • téglafalazatú épület, tetejét betoncserép fedi, SOFA  nyílászárók kerültek beépítésre
  • egy db hűtő-fűtő klíma van, a fűtést kondenzációs gázkazán biztosítja
  • riasztóval ellátott az épület
  • az áramvezetékek rézbőlkészültek, 1 x 25A ellátás 

Az ingatlan társasházi alapító okirattal rendelkezik, jogilag rendezett, hitellel megvásárolható, és nagyon rövid idő alatt birtokba vehető

A környék ellátottsága kiváló; iskolák, bevásárlási lehetőség, Lőrinci piac, Kormányablak mind gyorsan elérhetőek.  Az Üllői úton elérhető tömegközlekedési pontok a Belváros és a repülőtér irányába is jó megoldást nyújtanak. 

Ingyenes hitel tanácsadással, ügyvédi kapcsolattal és rugalmas időbeosztással állunk kedves ügyfeleink rendelkezésére! CASANETWORK - Ingatlanban otthon vagyunk

Családi ház részletei

Ár: 95 000 000 Ft
Méret: 119 négyzetméter
Azonosító: 11565316
Irodai azonosító: 166401892
Telek: 340 négyzetméter
Ingatlan állapota:
Jelleg: ikerház
Építőanyag: Tégla
Fűtés jellege: Cirkó
Komfort fokozat: Összkomfort
Bútorozott: Nem bútorozott
Egész szobák: 4

Hasonló családi ház hirdetések

Eladó családi ház

Budapest XVIII. ker

Referens: DJ21/99948 Eladó Budapest, XVIII. kerületében, a Krepuska Géza ...

Eladó családi ház

Budapest XVIII. ker

Újépítésű ikerház a Nagykőrösi útnál – pontosan 908.181Ft/m² áron! ...

Eladó családi ház

Budapest XVIII. ker

ÖSSZEKÖLTÖZŐK, NAGYCSALÁDOSOK, BEFEKTETŐK FIGYELEM!!!Eladásra kínálunk ...

Eladó családi ház

Budapest XVIII. ker

ÖSSZEKÖLTÖZŐK, NAGYCSALÁDOSOK, BEFEKTETŐK FIGYELEM!!! Eladásra kínálunk ...

Hasonló családi ház hirdetések

Eladó családi ház

Budapest XVIII. ker

Referens: DJ21/99948 Eladó Budapest, XVIII. kerületében, a Krepuska Géza ...

Eladó családi ház

Budapest XVIII. ker

Újépítésű ikerház a Nagykőrösi útnál – pontosan 908.181Ft/m² áron! ...

Eladó családi ház

Budapest XVIII. ker

ÖSSZEKÖLTÖZŐK, NAGYCSALÁDOSOK, BEFEKTETŐK FIGYELEM!!!Eladásra kínálunk ...

Eladó családi ház

Budapest XVIII. ker

ÖSSZEKÖLTÖZŐK, NAGYCSALÁDOSOK, BEFEKTETŐK FIGYELEM!!! Eladásra kínálunk ...