Eladó családi ház Budapest XVIII. ker 99 000 000 Ft

Leírás

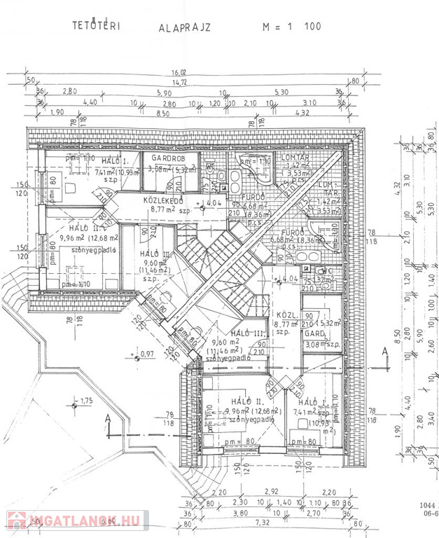
Eladásra kínálok a 18. kerületben, Pestszentimre Erdőskerti részén, a Nagykőrösi útra merőleges, csendes utcájában, családi házas övezetben, 684 nm alapterületű osztatlan közös telken álló, 1995-ben épült 2 szintes, pincézett, amerikai konyhás nappali + 3 félszobás, 175 nm-es, átlagos állapotú, részben felújítandó állapotú, iker beépítésű családi ház egyik felét, pinceszinten közel 40 nm-es, 2 állásos hatalmas garázzsal, műhelyrésszel, plusz tárolókkal, saját használatú rendezett, és szép állapotú, a ház mindkét oldalán húzódó saját kerttel és saját használatú hátsó udvarral, öntözőrendszerrel, külön locsolásra használható, külön mért, kedvező tarifájú vízfogyasztással, 18,7 nm-es saját terasszal.

Az ingatlanon az ügyvédi megosztási szerződés már folyamatban van, így hitelre is megvásárolható!

Az egész családi ház egyben 1995-ben épült beton alapzattal és betongerendás, betonkoszorús födémszerkezettel, B30-as tégla falazat alkalmazásával, tetőtér beépítéses tetőszerkezettel, délkeleti fekvéssel, remek elosztású szobákkal. A ház minden szempontból nagyon világos.

Műszaki állapot: a házban az ablakok még az akkori trendnek megfelelő, szigetelt fából készült nyílászárók. A fűtés szintenként külön vezérelhető, hordozható vezérlővel rendelkező, folyamatosan karbantartott padlófűtés, és minden szobában plusz lapradiátor gondoskodik a melegről, a melegvizet pedig külön boyler szolgáltatja. A fűtés átalánydíja 12.000 Ft/hó.

A közelben található pl. a Zöldliget Óvoda, a Kapocs Általános és Magyar-Angol Két Tannyelvű Iskola, vásárlási lehetőségek, pl. egy utcányira a SPAR Market, 1 km-re a menetrend szerinti vonatok pestszentimrei megállója, orvosi rendelő (Pintér Kálmán Szakrendelő), gyógyszertárak a Nemes utcában megtalálhatók, játszótér pár perc alatt akár az utában is elérhető, a közelben megtalálhatóak. A bevásárlást a 400 méterre lévő Imre Udvar Bevásárló és Szolgáltató Központ is segíti. A kerületben ingyenes a parkolás.

Elsősorban családosok figyelmébe ajánlom, akiknek fontos a nyugodt, csendes környezet, és azoknak is akik a 18. kerületben található kertes családi házra vágynak, melyet saját ízlésük szerint újíthatnak fel..

Az ingatlan tehermentes, a vételár kifizetését követően azonnal birtokba vehető.

Adatkezelés
Ezúton tájékoztatjuk, hogy Ön mint érdeklődő, a hirdetésben megjelölt telefonszám felhívásával hozzájárul személyes adatai – így különösen neve és telefonszáma -, a hirdetést feladó FORTISElit Ingatlan Kft. általi - biztonságos és körültekintő - kezeléséhez, nyilvántartásához. E körben, keresse a FORTISELIT ingatlaniroda weboldalát adatkezelési tájékoztatót.

We hereby inform you that You as an interested party, by calling the phone number mentioned in the advertisement, contribute to be your personal data – especially your name and phone number – handled and recorded safe and circumspectively by FORTISElit Ingatlan Kft as advertiser. Hereby, you can learn our Privacy Policy.

Finanszírozás:
Adatbázisunkban további több ezer ingatlanból választhat, hívjon bizalommal, hogy megtaláljuk a legmegfelelőbbet!
Hitelre van szüksége? Teljes körű és díjmentes hitel-ügyintézéssel, biztosításkötéssel áll rendelkezésére szakértő kollégánk. Kérje személyre szabott ajánlatunkat!

Családi ház részletei

Ár: 99 000 000 Ft
Méret: 175 négyzetméter
Azonosító: 11600118
Irodai azonosító: 340230
Telek: 684 négyzetméter
Ingatlan állapota: Átlagos
Jelleg: ikerház
Építőanyag: Tégla
Fűtés jellege: Cirkó
Fűtés módja: Gáz
Komfort fokozat: Összkomfort
Egész szobák: 1
Fél szobák: 3

Egyéb jellemzők

  • Garázs
  • Terasz

Hasonló családi ház hirdetések

Eladó családi ház

Budapest XVIII. ker

Referens: DJ21/99948 Eladó Budapest, XVIII. kerületében, a Krepuska Géza ...

Eladó családi ház

Budapest XVIII. ker

ELADÓ FELÚJÍTOTT CSALÁDI HÁZ – XVIII. KERÜLET, PODHORSZKY ...

Eladó családi ház

Budapest XVIII. ker

ÖSSZEKÖLTÖZŐK, NAGYCSALÁDOSOK, BEFEKTETŐK FIGYELEM!!! Eladásra kínálunk ...

Eladó családi ház

Budapest XVIII. ker

ÖSSZEKÖLTÖZŐK, NAGYCSALÁDOSOK, BEFEKTETŐK FIGYELEM!!!Eladásra kínálunk ...

Hasonló családi ház hirdetések

Eladó családi ház

Budapest XVIII. ker

Referens: DJ21/99948 Eladó Budapest, XVIII. kerületében, a Krepuska Géza ...

Eladó családi ház

Budapest XVIII. ker

ELADÓ FELÚJÍTOTT CSALÁDI HÁZ – XVIII. KERÜLET, PODHORSZKY ...

Eladó családi ház

Budapest XVIII. ker

ÖSSZEKÖLTÖZŐK, NAGYCSALÁDOSOK, BEFEKTETŐK FIGYELEM!!! Eladásra kínálunk ...

Eladó családi ház

Budapest XVIII. ker

ÖSSZEKÖLTÖZŐK, NAGYCSALÁDOSOK, BEFEKTETŐK FIGYELEM!!!Eladásra kínálunk ...