Eladó családi ház Budapest XX. ker 89 000 000 Ft

Leírás

Befektetők, kivitelezők, figyelmébe ajánljuk!

Pesterzsébet legjobb kertvárosi részén kínálunk megvételre egy nettó 209 nm alapterületű, kétszintes, téglából épült, önálló családi házat 291 nm-es telken. Az ingatlan teljes mértékben felújítandó!

A ház földszinti része a 60-as években épült, a felsőszintet a 80-as évek végén építették rá, jelenleg 2 külön bejáratú lakásra van osztva.

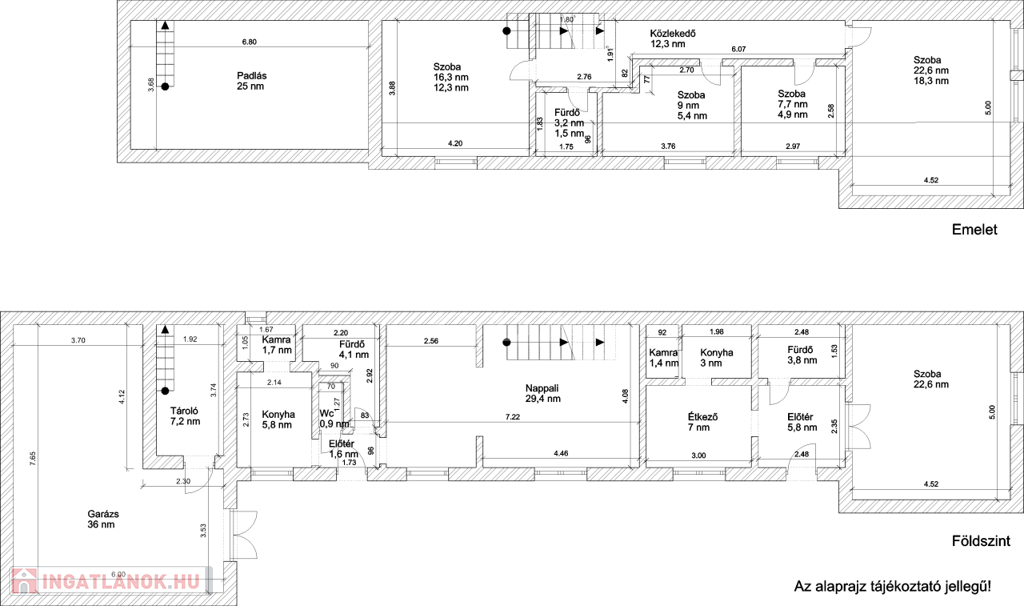
Beosztása:
földszint:
- előtér 5,8 nm,
- étkező 7 nm,
-konyha 3 nm,
-kamra 1,4 nm,
-fürdő 3,8 nm,
-szoba 22,6 nm,
-nappali 29,4 nm,
-fürdő 4,1 nm,
-előtér 1,5 nm,
- kamra 1,7 nm,
- konyha 5,8 nm,
- tároló 7,2 nm,
- garázs 36 nm,
-----------------------
129,4 nm.

Emelet:
-szoba 18,3 nm,
-szoba 4,9 nm,
-szoba 5,4 nm,
-közlekedő 12,3 nm,
-fürdő 1,5 nm,
-szoba 12,3 nm,
-helyiség 25 nm,
-------------------------
79,7 nm.

Amivel segítjük az Ön ingatlanvásárlását:
- ingyenes hitelügyintézés,
- jogi háttér,
- földhivatali ügyintézés,
- energetikai tanúsítvány,
- a vevő számára az ingatlanközvetítés ingyenes.

Irodánk 30 éves szakmai tapasztalattal áll ügyfelei rendelkezésére!

Várom szíves megkeresését!

Családi ház részletei

Ár: 89 000 000 Ft
Méret: 209 négyzetméter
Azonosító: 11610157
Irodai azonosító: 392613
Cím: Erzsébetfalva
Telek: 291 négyzetméter
Ingatlan állapota: Felújítandó
Jelleg: családi ház
Építőanyag: Tégla
Fűtés jellege: Cirkó
Fűtés módja: Gáz
Komfort fokozat: Összkomfort
Kor: 21-50 éves
Szintek száma: 1 szint
Egész szobák: 6

Egyéb jellemzők

  • Csatorna
  • Garázs
  • Pince
  • Terasz

Térkép

Hasonló családi ház hirdetések

Eladó családi ház

Budapest XX. ker

XX. kerületben, a Jósika utcában kétszintes, 3 szobás lakás nagy terasszal ...

Eladó családi ház

Budapest XX. ker

Befektetők, kivitelezők, figyelmébe ajánljuk! Pesterzsébet legjobb kertvárosi ...

Eladó családi ház

Budapest XX. ker

PESTERZSÉBET LEGJOBB RÉSZÉN, GUBACSIPUSZTÁN, TÉGLAÉPÍTÉSŰ, ...

Eladó családi ház

Budapest XX. ker

KIVÁLÓ LEHETŐSÉG A CSALÁDI HÁZAK SZERELMESEINEK!   Kellemes, ...

Hasonló családi ház hirdetések

Eladó családi ház

Budapest XX. ker

XX. kerületben, a Jósika utcában kétszintes, 3 szobás lakás nagy terasszal ...

Eladó családi ház

Budapest XX. ker

Befektetők, kivitelezők, figyelmébe ajánljuk! Pesterzsébet legjobb kertvárosi ...

Eladó családi ház

Budapest XX. ker

PESTERZSÉBET LEGJOBB RÉSZÉN, GUBACSIPUSZTÁN, TÉGLAÉPÍTÉSŰ, ...

Eladó családi ház

Budapest XX. ker

KIVÁLÓ LEHETŐSÉG A CSALÁDI HÁZAK SZERELMESEINEK!   Kellemes, ...