Eladó családi ház Budapest XXI. ker 129 900 000 Ft

Leírás

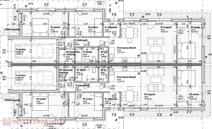
ELADÓ ÚJÉPÍTÉSŰ IKERHÁZ FÉL CSEPEL-KIRÁLYERDŐBEN



Csendes, közkedvelt és családbarát környezetben, Csepel-Királyerdőn eladó egy modern, újépítésű, nappali + 3 hálószobás ikerház fél, garázzsal. Az ingatlan 25 cm-es Leier tégla falazattal épül, melyre 15 cm-es grafitos hőszigetelés kerül, biztosítva ezzel a kiváló energiahatékonyságot és alacsony rezsiköltségeket. A tetőt kakaóbarna Terrán cserép fedi, harmonizálva az épület modern megjelenésével.

A műanyag külső nyílászárók (ajtók, ablakok, erkélyajtók) hőszigetelő, 3 rétegű üvegezéssel vannak ellátva, tovább fokozva az energiahatékonyságot és a hangszigetelést.



A minőségi, több ponton záródó biztonsági bejárati ajtó garantálja otthona teljes védelmét. A belső falak kétszer glettelve és fehérre festve kerülnek átadásra, így azonnal készen állnak arra, hogy az Ön ízlése szerint rendezze be új otthonát. A fűtés- és melegvíz-ellátásról hőszivattyú, padlófűtéssel gondoskodik, kihasználva a költséghatékony H-tarifa előnyeit. A hálószobákban és a nappaliban klíma hűtés előkészítés biztosítja a komfortos hőmérsékletet a nyári hónapokban. A három szoba laminált parkettával, a fürdőszobák magas minőségű hidegburkolattal, a többi helyiség pedig vinyl padlóburkolattal lesz ellátva, igényes és modern megjelenést kölcsönözve az otthonnak.



Az ingatlan legkésőbbi átadása 2026. év vége.





A környezet a családias hangulat mellett számos, a mindennapi élethez szükséges szolgáltatással várja a lakókat. Üzletek, gyógyszertárak, szolgáltatók könnyen elérhetők, akárcsak óvodák és iskolák. A szabadidős tevékenységekhez parkok, játszóterek, sportlétesítmények és a Királyerdei Művelődési Ház programjai kínálnak lehetőséget.



A környék kiválóan ellátott tömegközlekedési szempontból. A közelben több buszmegálló is található, ahonnan számos buszjárat indul Csepel központjába, a Szent Imre térre, majd tovább a Boráros tér felé. Elérhetőek a 148-as, 152-es, 71-es és a 948-as éjszakai buszjáratok. A Csepeli HÉV (H7-es vonal) is könnyen megközelíthető, közvetlen belvárosi kapcsolattal a Boráros térig.





Az ingatlan banki finanszírozással is megvásárolható, melyben irodánk ingyenes tanácsadással áll rendelkezésére, hogy a jelenleg piacon lévő hitelkonstrukciók közül a legkedvezőbbet sikerüljön kérdés, valamint megtekintés kapcsán, keressen minket bizalommal!


Családi ház részletei

Ár: 129 900 000 Ft
Méret: 100 négyzetméter
Azonosító: 11552439
Irodai azonosító: 22619
Telek: 474 négyzetméter
Ingatlan állapota: Épülő
Jelleg: családi ház
Építőanyag: Kérdezzen rá a hirdetőtől »
Fűtés jellege: Egyéb
Szintek száma: Földszintes
Egész szobák: 4

Hasonló családi ház hirdetések

Eladó családi ház

Budapest XXI. ker

Csepel-Királyerdőn 678 nm-s telken 2 GENERÁCIÓS ikerházfél eladó! Az ...

Eladó családi ház

Budapest XXI. ker

Csepel KÖZPONTJÁNAK kertvárosi részén eladó egy 2020-ban ...

Eladó családi ház

Budapest XXI. ker

Igazi különlegesség Királyerdőn Kiválló állapotú családi ház aká ...

Eladó családi ház

Budapest XXI. ker

Eladó Csepel Királyerdő csendes részén, egy 150 négyzetméteres, jó ...

Hasonló családi ház hirdetések

Eladó családi ház

Budapest XXI. ker

Csepel-Királyerdőn 678 nm-s telken 2 GENERÁCIÓS ikerházfél eladó! Az ...

Eladó családi ház

Budapest XXI. ker

Csepel KÖZPONTJÁNAK kertvárosi részén eladó egy 2020-ban ...

Eladó családi ház

Budapest XXI. ker

Igazi különlegesség Királyerdőn Kiválló állapotú családi ház aká ...

Eladó családi ház

Budapest XXI. ker

Eladó Csepel Királyerdő csendes részén, egy 150 négyzetméteres, jó ...