Eladó családi ház Budapest XXI. ker 236 000 000 Ft

Leírás

Eladó egy hamarosan épülő, modern családi ház Csepel egyik legszebb, kertvárosias részén – a Kis-Duna-part közvetlen közelében!







Az ingatlan A+ energetikai besorolású, korszerű hőszigeteléssel és kiemelkedő műszaki tartalommal épül. A kivitelezés során 30-as Leier tégla, 15 cm vastag grafitos hőszigetelés, valamint háromrétegű hőszigetelt nyílászárók kerülnek beépítésre, a kiváló hőtartás és energiahatékonyság érdekében.
A prémium minőségű családi ház egy csendes, zöldövezeti utcában épül, néhány perc sétára a természet közelségét nyújtó Kis-Duna-parttól, amely ideális választás kikapcsolódáshoz, sétához, futáshoz vagy akár vízparti programokhoz. A saját, intim terasz tökéletes helyszíne a pihenésnek, elzárva a külvilág zajától. 





A padlófűtésről és melegvízellátásról hőszivattyús rendszer gondoskodik, H-tarifás áramellátással. Igény esetén akár mennyezeti hűtés is kialakítható, amely a legmodernebb komfortmegoldások közé tartozik. Előkészítés történik továbbá fan-coil rendszerhez, napelemes rendszerhez, riasztóhoz, videós kaputelefonhoz, automata öntözőrendszerhez, valamint a garázsban elektromos autótöltéshez is.

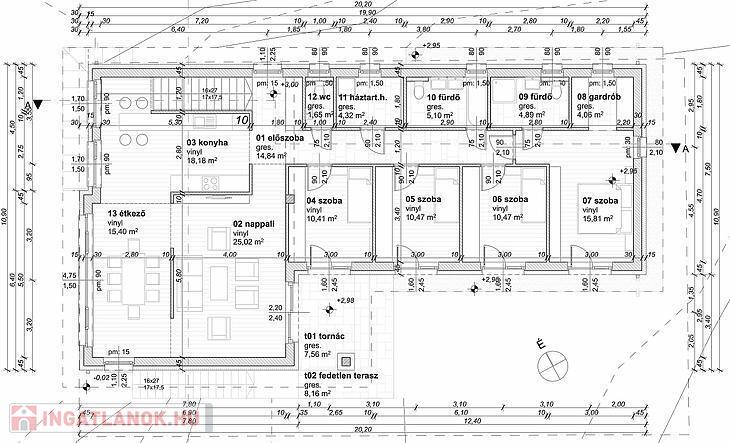
A belső terek igényes burkolatokkal készülnek: a hálószobák laminált parkettát, a többi helyiség magas minőségű hidegburkolatot kap. A falak fehérre festve, világos, letisztult hatást biztosítva.

A házhoz egy kétállásos garázs tartozik, ahova a motoros kapu kényelmes és biztonságos bejutást biztosít, valamint egy különálló, 18 m²-es tárolóhelység, amely műhelyként, dolgozószobaként vagy sportszobaként is használható.







A Kis-Duna-part környéke igazi rejtett kincs a főváros szívében: egy békés, természetközeli világ, ahol a nyugalom és a szabadság kézzelfogható közelségbe kerül. Itt a város zaja szinte észrevétlenül halkul el. A levegő friss, a víz közelsége megnyugtató, a madarak hangja pedig úgy olvad bele a tájba, mintha egy idilli festmény elevenedne meg.


Az infrastruktúra a közelben kiváló: óvoda, iskola, gyógyszertár, élelmiszerbolt, pékség, a népszerű Nádfedeles Csárda és több kisebb üzlet pillanatok alatt elérhető. Tömegközlekedéssel is kiválóan megközelíthető: a 71-es, 148-as, 152-es és 948-as buszmegállók néhány perc sétára találhatók, így Csepel központja, valamint onnan a belváros is könnyen elérhető a HÉV-nek köszönhetően.




Modern, energiatakarékos otthon, nyugodt környezetben, megbízható kivitelezéssel – ideális választás hosszú távra.





Várható átadás: 2026 év vége.




Érdeklődés esetén szívesen adunk bővebb tájékoztatást!


Családi ház részletei

Ár: 236 000 000 Ft
Méret: 201 négyzetméter
Azonosító: 11585178
Irodai azonosító: 22633
Telek: 709 négyzetméter
Ingatlan állapota: Épülő
Jelleg: családi ház
Építőanyag: Kérdezzen rá a hirdetőtől »
Fűtés jellege: Egyéb
Egész szobák: 5

Hasonló családi ház hirdetések

Eladó családi ház

Budapest XXI. ker

Csepel legkeresettebb részén, Királyerdőn, a Dunától mindössze 5 perc ...

Eladó családi ház

Budapest XXI. ker

Csepel legkeresettebb részén, Királyerdőn, a Dunától mindössze 5 perc ...

Eladó családi ház

Budapest XXI. ker

Eladásra kínálunk egy különleges adottságokkal rendelkező, prémium ...

Hasonló családi ház hirdetések

Eladó családi ház

Budapest XXI. ker

Csepel legkeresettebb részén, Királyerdőn, a Dunától mindössze 5 perc ...

Eladó családi ház

Budapest XXI. ker

Csepel legkeresettebb részén, Királyerdőn, a Dunától mindössze 5 perc ...

Eladó családi ház

Budapest XXI. ker

Eladásra kínálunk egy különleges adottságokkal rendelkező, prémium ...