Eladó családi ház Budapest XXII. ker 107 000 000 Ft

Leírás

OTTHON START PROGRAM FELTÉTELINEK MEGFELELŐ, FIX 3%-OS, ÁLLAMI TÁMOGATÁSÚ LAKÁSHITELLEL MEGVÁSÁROLHATÓ INGATLAN!

EGYSZINTES ÚJ ÉPÍTÉSŰ IKERHÁZ DAIKIN ALTHERMA HŐSZIVATTYÚVAL!

XXII. kerületben, Nagytétény, CSENDES KERTVÁROSI környezetében, nettó 75 m2-es, nappali + 2 szobás (teraszos), MODERN, ÚJ ÉPÍTÉSŰ, IKERHÁZAT kínálunk eladásra!

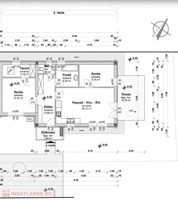
HELYISÉGEI FÖLDSZINTEN:
-előszoba(10,68m2), amerikai konyha nappali(26m2), 2 szoba(9,75m2, 14,43m2), fürdőszoba(6,25m2), WC(1,9m2), tároló(5,18m2), valamint 15 m2 és 3,89 m2-es terasz.

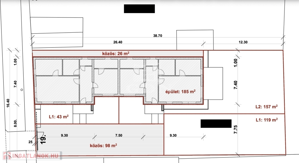
Az ingatlanhoz saját, kizárólagos használatú, lekerített TELEKRÉSZEK tartoznak.
Egy autóbeálló tartozik az ingatlanhoz, a kialakítását a vételár tartalmazza.
Az ingatlan telkén található egy fúrt kút.

Az épület: egyszintes (földszint)
Külső falazat: Leier 30 cm-es tégla, 10 cm-es Dryvit hőszigeteléssel.

Műanyag nyílászárok: FENSTHERM FUTURE vagy Kömmerling 5légkamrás, 76mm tokszélesség , 3rétegű üveg K=0,6 hőszigeteléssel.

Nagyon IGÉNYES KIVITELEZÉS, minőségi anyagok felhasználásával épül ( részletes Műszaki leírással és további anyagokkal rendelkezem.)

A fűtést és a melegvizet DAIKIN ALTHERMA HŐSZIVATTYÚ biztosítja padlófűtéssel, radiátorral kiépítve.

A vételár tartalmazza riasztó rendszer kiépítését, valamint kettő klíma kiállás kiépítését!

Külön mérőórák, szeparált telekrészek, különböző utcai bejáratok!

MÉRETEK, TÁJOLÁS, ELRENDEZÉS, AZ ALAPRAJZOKON.
( Belső átalakítás-kialakítás a Vevő igényei alapján megoldható )

KIVÁLÓ KÖZLEKEDÉSI LEHETŐSÉGEK, iskola, óvoda, bölcsőde, rendelő, Campona, Lidl, Aldi minden a közelben.

TERVEZETT ÁTADÁS: 2026. első negyedév!

A vételár NEM tartalmazza a hideg-meleg burkolatokat, redőny lamellákat, szúnyoghálókat, beltéri ajtókat, riasztóberendezést, csaptelepeket, klímaberendezést, szaniterek árait!
A munkadíj minden esetben benne van az árban.

Megtekinthető elkészült REFERENCIA munkák, OTTHON START HITEL, CSOK PLUSZ, babaváró, kedvezményes HITELEK FELVEHETŐK!
(Szükség esetén ingyenes hitelügyintézéssel)

Az ingatlan megtekintése előre egyeztetett időpontban lehetséges, akár hétvégén is. Bővebb információkkal kapcsolatban várom jelentkezését, keressen bizalommal a hét minden napján!

Családi ház részletei

Ár: 107 000 000 Ft
Méret: 75 négyzetméter
Azonosító: 11568035
Irodai azonosító: 387777
Cím: Egyszintes ikerház mindkét fele!
Telek: 157 négyzetméter
Ingatlan állapota: Kitűnő
Jelleg: ikerház
Építőanyag: Tégla
Fűtés jellege: Geotermikus
Fűtés módja: Hőszivattyú
Komfort fokozat: Összkomfort
Kor: Új építésű
Szintek száma: Földszintes
Egész szobák: 3

Egyéb jellemzők

  • Csatorna
  • Garázs
  • Pince
  • Terasz

Térkép

Hasonló családi ház hirdetések

Eladó családi ház

Budapest XXII. ker

Kiváló szint eltolásos elrendezés: tágas nappali, konyha, mellékhelyiség, ...

Eladó családi ház

Budapest XXII. ker

XXII. kerületben, Budafokon remek ár-érték arányú ikerház saját kerttel ...

Eladó családi ház

Budapest XXII. ker

XXII. kerületben, Budafokon remek ár-érték arányú ikerház saját kerttel ...

Eladó családi ház

Budapest XXII. ker

Leírás Családbarát sorház Budán, Nagytétény – Óhegyen Képzeld ...

Hasonló családi ház hirdetések

Eladó családi ház

Budapest XXII. ker

Kiváló szint eltolásos elrendezés: tágas nappali, konyha, mellékhelyiség, ...

Eladó családi ház

Budapest XXII. ker

XXII. kerületben, Budafokon remek ár-érték arányú ikerház saját kerttel ...

Eladó családi ház

Budapest XXII. ker

XXII. kerületben, Budafokon remek ár-érték arányú ikerház saját kerttel ...

Eladó családi ház

Budapest XXII. ker

Leírás Családbarát sorház Budán, Nagytétény – Óhegyen Képzeld ...