Eladó családi ház Budapest XXII. ker 130 000 000 Ft

Leírás

Eladásra kínáljuk Budapest, XXII. kerületében, Nagytétényben épülő, 2 lakásos, kétszintes ikerház baloldali lakását melyek saját kerthasználattal kerülnek kialalakításra.

Az ikerház kertvárosias környezetben helyezkedik el, lakásonként bruttó 102 m2 alapterülettel, utcafronttól beljebb kerülnek megépítésre.
Lakásonként nappali+4 szoba lesz kialakítva, fürdőszoba mindkét szinten megtalálható.
A lakások fűtése és melegvíz ellátása hőszivattyúval fog történni, ezzel a fenntartási költség kiváló és környezetbarát is.

A ház modern kialakítása és magas műszaki tartalma minden igényt kielégít.

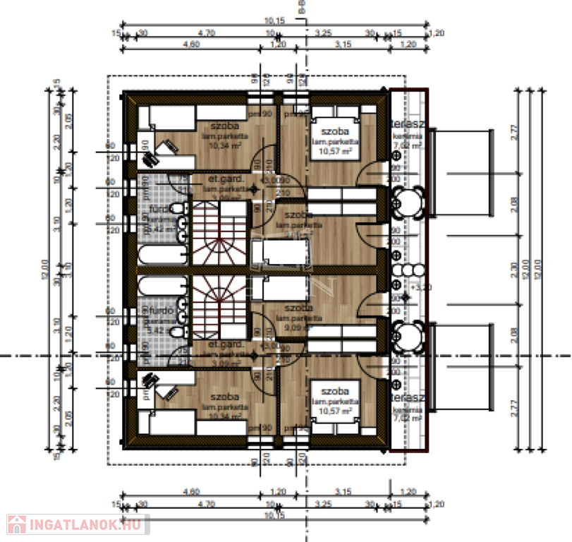
Helyiség kimutatás:
1.sz.lakás
Földszint
Előszoba kerámia 4,94 m2
Nappali-étkező lam.padló 25,17 m2
Konyha kerámia 4,60 m2
Házt.h. kerámia 3,10 m2
Szoba lam.padló 8,14 m2
Tetőtér
Et.gard. lam.padló 3,09 m2
Fürdő kerámia 5,42 m2
Szoba lam.padló 10,34 m2
Szoba lam.padló 10,57 m2
Szoba lam.padló 9,09 m2
Összesen: 84,45 m2+teraszok

2.sz.lakás
Földszint
Előszoba kerámia 4,94 m2
Nappali-étkező lam.padló 25,17 m2
Konyha kerámia 4,60 m2
Házt.h. kerámia 3,10 m2
Szoba lam.padló 8,14 m2
Tetőtér
Et.gard. lam.padló 3,09 m2
Fürdő kerámia 5,42 m2
Szoba lam.padló 10,34 m2
Szoba lam.padló 10,57 m2
Szoba lam.padló 9,09 m2
Összesen: 84,45 m2+teraszok

Érdeklődés esetén a műszaki- és egyéb leírásokat rendelkezésre tudjuk bocsátani!

Foglalja le most, fizesse ki később!

Élvezze a nyugalom és a kényelem tökéletes kombinációját ebben az elegáns otthonban.
Tökéletes választás lehet azok számára, akik egy új, karbantartás mentes otthonra vágynak.

Várható átadás: 2026. I. negyedév

INGYENES hitel tanácsadás, CSOK Plusz ügyintézés!
BANKFÜGGETLEN hitelcentrumunk az összes elérhető bank és hitelintézet ajánlatát versenyezteti az Ön kedvéért, ráadásul DÍJMENTESEN.

- Egyedi, bankfiókban nem elérhető kamat- és díjkedvezmények
- Hitelképesség vizsgálat
- Idő, energia és pénz megtakarítás
- Teljes hivatali ügyintézés

Amennyiben hirdetésem felkeltette az érdeklődését vagy egyéb információra van szüksége hívjon bizalommal!

Családi ház részletei

Ár: 130 000 000 Ft
Méret: 85 négyzetméter
Azonosító: 11532130
Irodai azonosító: 382249
Cím: Bp. XXII. Ikerház eladó
Telek: 672 négyzetméter
Ingatlan állapota: Kitűnő
Jelleg: ikerház
Építőanyag: Tégla
Fűtés jellege: Geotermikus
Fűtés módja: Hőszivattyú
Komfort fokozat: Dupla komfort
Kor: Új építésű
Szintek száma: 1 szint
Egész szobák: 4
Fél szobák: 1

Egyéb jellemzők

  • Csatorna
  • Garázs
  • Pince
  • Terasz

Térkép

Hasonló családi ház hirdetések

Eladó családi ház

Budapest XXII. ker

BUDA-TÉTÉNYI CSALÁDIHÁZ NAGY KERTTEL – OTTHON TÖBB GENERÁCIÓ SZÁMÁRA TÁGAS, ...

Eladó családi ház

Budapest XXII. ker

BUDAPEST XXII. kerület Nagytétény Óhegyen, egy csendes, családiházas ...

Eladó családi ház

Budapest XXII. ker

Eladó újépítésű ikerházfél Nagytétényben – nappali + 4 szoba, saját ...

Eladó családi ház

Budapest XXII. ker

BUDAFOK-FELSŐVÁROS LEGHANGULATOSABB UTCÁJÁBAN FÉLSZINTELTOLÁSOS, KÉTGENERÁCIÓS ...

Hasonló családi ház hirdetések

Eladó családi ház

Budapest XXII. ker

BUDA-TÉTÉNYI CSALÁDIHÁZ NAGY KERTTEL – OTTHON TÖBB GENERÁCIÓ SZÁMÁRA TÁGAS, ...

Eladó családi ház

Budapest XXII. ker

BUDAPEST XXII. kerület Nagytétény Óhegyen, egy csendes, családiházas ...

Eladó családi ház

Budapest XXII. ker

Eladó újépítésű ikerházfél Nagytétényben – nappali + 4 szoba, saját ...

Eladó családi ház

Budapest XXII. ker

BUDAFOK-FELSŐVÁROS LEGHANGULATOSABB UTCÁJÁBAN FÉLSZINTELTOLÁSOS, KÉTGENERÁCIÓS ...