Eladó családi ház Budapest XXII. ker 139 900 000 Ft

Leírás

Eladásra kínálunk Budapest XXII. kerületében Budafokon 250 m2-es kerttel rendelkező belső kétszintes, dupla komfortos, nappali + 3 szobás, összesen 87,5 m2 nettó hasznos lakóterülettel rendelkező, új építésű ikerházat.

Az ingatlan leköthető 2 db. gépkocsibeállóval - igény szerinti befejezéssel.

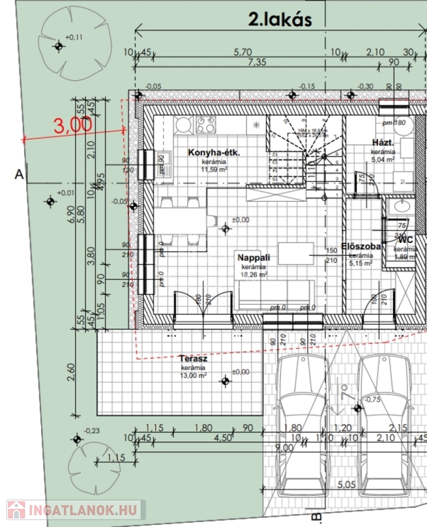
Elrendezés:

Földszint: nettó 41.93 m2 + terasz

• Nappali 18.26 m2
• Konyha - étkező 11.58 m2
• Előszoba 5.15 m2
• Mosdó 5.27 m2
• Háztartási h. 5.02 m2
• Terasz 13 m2

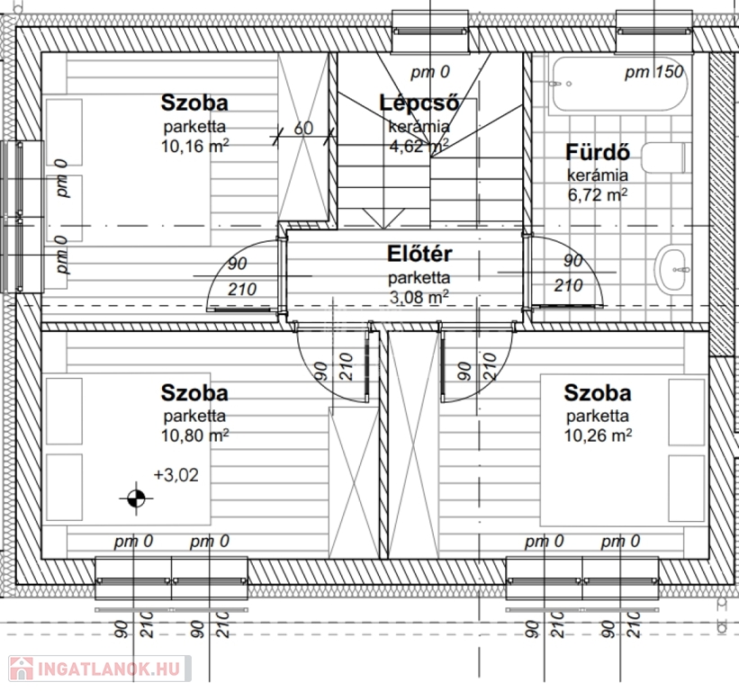
Emelet: nettó 45,64 m2

• 3 szoba 10.8 m2, 10.26 m2, 10.16 m2
• Fürdőszoba + mosdó 6.72 m2
• Előszoba 3,08 m2
• Lépcső 4,62 m2

Kert:
• 200 m2
• 2 db. autóbeálló

Műszaki paraméterek – szerkezeti leírás (részlet):
Beton sávalap. Tégla főfalak + 15 cm dryvit szigetelés.Tégla válaszfalak. Műanyag külső nyílászárók hőszigetelt üvegezéssel. Belső nyílászárók dekorfóliás ajtók. Cserép fedésű tető.

Fűtés: Az épület fűtését hőszivattyús rendszer látja el, minden helyiségben padlófűtés található.
Hideg-meleg burkolatok kiválaszthatók a műszaki leírásban rögzített árak szerint.

Tapasztalt - megbízható generál kivitelező munkájával készül a ház - referencia ingatlanjai megtekinthetőek!

Kiváló lokációval rendelkezik az ingatlan. A közelben található iskola – óvoda – bölcsőde – bevásárlóközpont.

Projekt átadás: 2026. november -december

Az ingatlant fiatal pároknak és családoknak egyaránt ajánljuk.

Amennyiben Önnek a vásárláshoz szüksége lenne hitelre egyedi kedvezménnyel,kezdeményezheti a kapcsolatfelvételt bankfüggetlen hitelügyintézőinkkel, teljesen DÍJMENTESEN.

Az ingatlan részletes ismertetése és bemutatása előre egyeztetett időpontban lehetséges, melyet nagyon rugalmasan kezelünk, akár HÉTVÉGÉN is.

Amennyiben felkeltette az érdeklődését, további kérdéseivel kapcsolatban várom jelentkezését!

Családi ház részletei

Ár: 139 900 000 Ft
Méret: 88 négyzetméter
Azonosító: 11607920
Irodai azonosító: 394014
Cím: Budafok kedvelt részén ÚJ Ikerház !
Telek: 250 négyzetméter
Ingatlan állapota: Kitűnő
Jelleg: ikerház
Építőanyag: Tégla
Fűtés jellege: Geotermikus
Fűtés módja: Hőszivattyú
Komfort fokozat: Összkomfort
Kor: Új építésű
Szintek száma: 1 szint
Egész szobák: 4

Egyéb jellemzők

  • Csatorna
  • Garázs
  • Pince
  • Terasz

Térkép

Hasonló családi ház hirdetések

Eladó családi ház

Budapest XXII. ker

BUDAPEST XXII. kerület Nagytétény Óhegyen, egy csendes, családiházas ...

Eladó családi ház

Budapest XXII. ker

CSAK AZ IRODÁNK KÍNÁLATÁBAN! XXII. kerületben, Budafokon kínálunk ...

Eladó családi ház

Budapest XXII. ker

Ajánlatom egy azonnal költözhető, korszerű és elegáns lakás csendes, ...

Eladó családi ház

Budapest XXII. ker

BUDAFOK-FELSŐVÁROS LEGHANGULATOSABB UTCÁJÁBAN FÉLSZINTELTOLÁSOS, KÉTGENERÁCIÓS ...

Hasonló családi ház hirdetések

Eladó családi ház

Budapest XXII. ker

BUDAPEST XXII. kerület Nagytétény Óhegyen, egy csendes, családiházas ...

Eladó családi ház

Budapest XXII. ker

CSAK AZ IRODÁNK KÍNÁLATÁBAN! XXII. kerületben, Budafokon kínálunk ...

Eladó családi ház

Budapest XXII. ker

Ajánlatom egy azonnal költözhető, korszerű és elegáns lakás csendes, ...

Eladó családi ház

Budapest XXII. ker

BUDAFOK-FELSŐVÁROS LEGHANGULATOSABB UTCÁJÁBAN FÉLSZINTELTOLÁSOS, KÉTGENERÁCIÓS ...