Eladó családi ház Budapest XXII. ker 149 900 000 Ft

Leírás

Eladásra kínálunk Budapest XXII. kerületében Budafokon 320 m2-es kerttel rendelkező belső kétszintes, dupla komfortos, nappali + 3 szobás, összesen 101 m2 nettó hasznos lakóterülettel rendelkező, új építésű ikerházat. Az ingatlan leköthető 2 db. gépkocsibeállóval - igény szerinti befejezéssel.

Elrendezés:

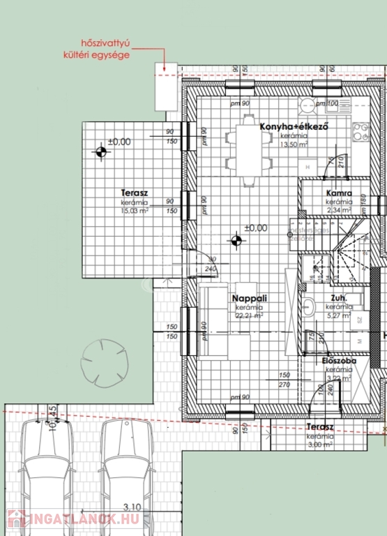
Földszint: nettó 46.54 m2 + terasz

• Nappali 22.21 m2
• Konyha - étkező 13.5 m2
• Előszoba 3.22 m2
• Zuhanyzó + mosdó 5.27 m2
• Kamra 2.34 m2
• Terasz 15.12 + 3 m2

Emelet: nettó 54,67 m2

• 3 szoba 13.11 m2, 11.15 m2, 10.55 m2
• Fürdőszoba + mosdó 6.02 m2
• Előszoba 5,3 m2
• Háztartási helyiség 5.04 m2
• Lépcső 3,5 m2

Kert:
• 357 m2
• 2 db. autóbeálló

Műszaki paraméterek – szerkezeti leírás (részlet):
Beton sávalap. Tégla főfalak + 15 cm dryvit szigetelés.Tégla válaszfalak. Műanyag külső nyílászárók hőszigetelt üvegezéssel. Belső nyílászárók dekorfóliás ajtók. Cserép fedésű tető.

Fűtés: Az épület fűtését hőszivattyús rendszer látja el, minden helyiségben padlófűtés található.
Hideg-meleg burkolatok kiválaszthatók a műszaki leírásban rögzített árak szerint.

Tapasztalt - megbízható generál kivitelező munkájával készül a ház - referencia ingatlanjai megtekinthetőek!

Kiváló lokációval rendelkezik az ingatlan. A közelben található iskola – óvoda – bölcsőde – bevásárlóközpont.

Projekt átadás: 2026. júliusban.

Az ingatlant fiatal pároknak és családoknak egyaránt ajánljuk.

Amennyiben Önnek a vásárláshoz szüksége lenne hitelre egyedi kedvezménnyel,kezdeményezheti a kapcsolatfelvételt bankfüggetlen hitelügyintézőinkkel, teljesen DÍJMENTESEN.

Az ingatlan részletes ismertetése és bemutatása előre egyeztetett időpontban lehetséges, melyet nagyon rugalmasan kezelünk, akár HÉTVÉGÉN is.

Amennyiben felkeltette az érdeklődését, további kérdéseivel kapcsolatban várom jelentkezését!

Családi ház részletei

Ár: 149 900 000 Ft
Méret: 101 négyzetméter
Azonosító: 11565224
Irodai azonosító: 387305
Cím: Budafok kedvelt részén ÚJ Ikerház !
Telek: 320 négyzetméter
Ingatlan állapota: Kitűnő
Jelleg: ikerház
Építőanyag: Tégla
Fűtés jellege: Geotermikus
Fűtés módja: Hőszivattyú
Komfort fokozat: Összkomfort
Kor: Új építésű
Szintek száma: 1 szint
Egész szobák: 4

Egyéb jellemzők

  • Csatorna
  • Garázs
  • Pince
  • Terasz

Térkép

Hasonló családi ház hirdetések

Eladó családi ház

Budapest XXII. ker

BUDAPEST XXII. kerület Nagytétény Óhegyen, egy csendes, családiházas ...

Eladó családi ház

Budapest XXII. ker

BUDA-TÉTÉNYI CSALÁDIHÁZ NAGY KERTTEL – OTTHON TÖBB GENERÁCIÓ SZÁMÁRA TÁGAS, ...

Eladó családi ház

Budapest XXII. ker

CSAK AZ IRODÁNK KÍNÁLATÁBAN! XXII. kerületben, Budafokon kínálunk eladásra ...

Eladó családi ház

Budapest XXII. ker

Ajánlom szíves figyelmébe ezt az azonnal költözhető, korszerű és elegáns ...

Hasonló családi ház hirdetések

Eladó családi ház

Budapest XXII. ker

BUDAPEST XXII. kerület Nagytétény Óhegyen, egy csendes, családiházas ...

Eladó családi ház

Budapest XXII. ker

BUDA-TÉTÉNYI CSALÁDIHÁZ NAGY KERTTEL – OTTHON TÖBB GENERÁCIÓ SZÁMÁRA TÁGAS, ...

Eladó családi ház

Budapest XXII. ker

CSAK AZ IRODÁNK KÍNÁLATÁBAN! XXII. kerületben, Budafokon kínálunk eladásra ...

Eladó családi ház

Budapest XXII. ker

Ajánlom szíves figyelmébe ezt az azonnal költözhető, korszerű és elegáns ...