Eladó családi ház Budapest XXII. ker 165 000 000 Ft

Leírás

CSAK AZ IRODÁNK KÍNÁLATÁBAN !!

XXII. kerület gyorsan fejlődő részén Óhegyen, családi házas környezetben kínálunk megvételre egy 120 m2-es alapterületű, 5 szobás, dupla komfortos, EGYSZINTES, ÚJÉPÍTÉSŰ ÖNÁLLÓ HÁZAT.

AZ IGÉNYESEN MEGTERVEZETT, MODERN HÁZ 490 m2-es telken épül, jelenleg 75 %-os készültségi szinten van.

AZ INGATLAN FŐBB JELLEMZŐI:

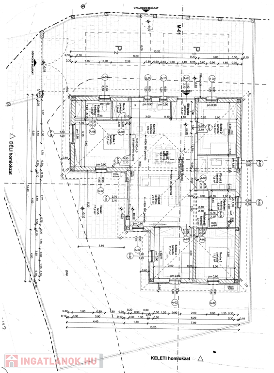
A ház helyiségeinek elrendezése nagyon praktikusan megoldott, nagy világos terekkel, egy dolgozó szobával, három hálószobával, két fürdőszobával és háztartási helyiséggel.
A közös tér nappali, konyha és étkező együtt 44 m2, innen nyíló déli fekvésű 18 m2-es terasszal kapcsolódik a kerthez.

A szülői hálószobához gardrób és külön fürdőszoba is kapcsolódik, melynek területe együtt 21 m2.

HELYISÉGEK ELRENDEZÉSÉT ÉS A MÉRETEKET LÁSD AZ ALAPRAJZON!

MŰSZAKI JELLEMZŐK "RÉSZLET":
- a szerkezet 30 cm-es YTONG téglából készült,10 cm-es külső dryvit szigeteléssel
- műanyag nyílászárók 3 rétegű üvegezéssel, nyitó, bukó, toló kivitelben, elektromosan irányítható redőnyökkel felszerelve
- 1 db hűtő-fűtő klímaberendezés
- zárófödém faszerkezet, 25 cm-es szigeteléssel
- fűtés megoldás hőszivattyúval, minden helyiségben padló fűtéssel ellátva
- H-tarifás villanyóra
- motoros távirányítós kapu
- térkövezett felszíni autó beálló és járda kialakítás

AZ INGATLAN OKOS OTTHON, ENERGIATAKARÉKOS, minimális rezsivel üzemeltethető,
Minden (fűtés, klíma, riasztó, kamera rendszer) WIFI-vel telefonon az applikáció segítségével irányítható.

A HÁZ TERVEZETT BIRTOKBA ADÁSA:
2025 szeptember 30.
AZ INGATLAN ÁRA KULCSRAKÉSZ ÁLLAPOTBAN: 165.000.000 Ft.

A környék lokációja jó, közelben iskolák, óvodák, bölcsőde, orvosi rendelő.
Az autóbusz megálló pár perc séta távolságra van.
Bevásárlási lehetőség 5-10 percen belül autóval a Campona bevásárlóközpont, ALDI, LIDL, SPAR, stb.
Az autópályák ( M0,M1,M7,M6) is könnyen elérhetőek.

További kérdéseivel kapcsolatosan várom jelentkezését.
Forduljon hozzám bizalommal!
(G.I.)

Családi ház részletei

Ár: 165 000 000 Ft
Méret: 120 négyzetméter
Azonosító: 11513400
Irodai azonosító: 380932
Cím: ÚJ, EGYSZINTES ÖNÁLLÓ HÁZ!
Telek: 490 négyzetméter
Ingatlan állapota: Kitűnő
Jelleg: családi ház
Építőanyag: Tégla
Fűtés jellege: Geotermikus
Fűtés módja: Hőszivattyú
Komfort fokozat: Dupla komfort
Kor: Új építésű
Szintek száma: Földszintes
Egész szobák: 5

Egyéb jellemzők

  • Csatorna
  • Garázs
  • Pince
  • Terasz

Térkép

Hasonló családi ház hirdetések

Eladó családi ház

Budapest XXII. ker, Budafok

Eladó a XXII. kerület Tegzes közben egy három szintes ikerház! A ház ...

Eladó családi ház

Budapest XXII. ker

TÖBB CÉLRA HASZNOSÍTHATÓ, BŐVÍTHETŐ INGATLAN KEDVELT KÖRNYÉKEN ELADÓ. XXII. ...

Eladó családi ház

Budapest XXII. ker

Zöldövezeti nyugalom a város peremén – felújított családi ház Rózsavölgy ...

Eladó családi ház

Budapest XXII. ker

MODERN, HŐSZIVATTYÚS, ÚJÉPÍTÉSŰ, KULCSRAKÉSZ IKERHÁZ  zöld környezetben. XXII. ...

Hasonló családi ház hirdetések

Eladó családi ház

Budapest XXII. ker, Budafok

Eladó a XXII. kerület Tegzes közben egy három szintes ikerház! A ház ...

Eladó családi ház

Budapest XXII. ker

TÖBB CÉLRA HASZNOSÍTHATÓ, BŐVÍTHETŐ INGATLAN KEDVELT KÖRNYÉKEN ELADÓ. XXII. ...

Eladó családi ház

Budapest XXII. ker

Zöldövezeti nyugalom a város peremén – felújított családi ház Rózsavölgy ...

Eladó családi ház

Budapest XXII. ker

MODERN, HŐSZIVATTYÚS, ÚJÉPÍTÉSŰ, KULCSRAKÉSZ IKERHÁZ  zöld környezetben. XXII. ...