Eladó családi ház Cegléd 44 900 000 Ft

Leírás

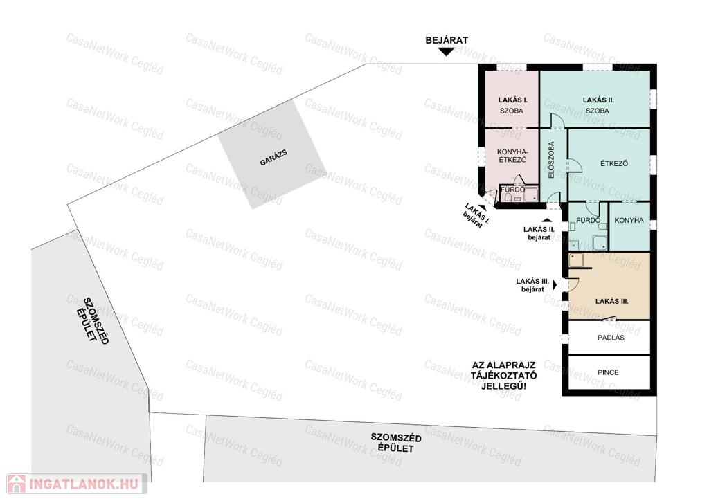
A Casanetwork Cegléd megvételre kínálja a 174602155 számú többgenerációs LAKÓHÁZAT Cegléden!

Az ingatlan főbb jellemzői:

  • A ház az 1960 as években , vegyes falazattal rendelkezik. 
  • Az ingatlan fűtését gázkazán biztosítja ,  a meleg víz ellátás bojlerrel megoldott.
  • telek terület öszesen:  719  m2
  • lakótér hasznos területe: 129 m2 - 3 lakrészből tevődik össze
  • tetőfedés anyaga: cserép

Közmű: 

  • -villany / 230 V /
  • -éjszakai áram
  • -gáz
  • -vezetékes víz
  • -szennyvíz elvezetés: csatorna

Az ingatlanban 2025. tavaszán gázfűtés korszerűsítés történt . Található a telken egy 16 m2-es pince , illetve egy autónak helyet adó garázs. Az ingatlan jelenleg három külön bejáratú lakrészből áll . Jelenleg mind a három lakrész albérletként funkciónál , ezért befektetésnek is kiválóan alkalmas ingatlanról van szó. 

Megtekintése előre egyeztetett időpontban lehetséges!

Az ingatlan per-és tehermentes, egy tulajdonossal rendelkezik, a Fix 3%-os program is igénybe vehető.

Amennyiben a 174602155 számú A CASANETWORK CEGLÉD által kínált ELADÓ CSALÁDI HÁZ felkeltette érdeklődését, várom hívását a megadott telefonszámon!

/A hirdetésben szereplő információk a megbízótól kapott adatok alapján készültek, pontosságukért felelősséget nem vállalunk!/

Kollégám díjmentes, bank semleges hitel-ügyintézéssel áll rendelkezésre.

CASANETWORK - Ingatlanban otthon vagyunk!

Családi ház részletei

Ár: 44 900 000 Ft
Méret: 129 négyzetméter
Azonosító: 11574934
Irodai azonosító: 174602155
Telek: 719 négyzetméter
Ingatlan állapota: Átlagos
Jelleg: családi ház
Építőanyag: Vegyes
Komfort fokozat: Összkomfort
Bútorozott: Részben bútorozott
Egész szobák: 3

Hasonló családi ház hirdetések

Eladó családi ház

Cegléd

Eladó Cegléden egy 117 m2-es társasházi lakás.Főbb paraméterek:-közlekedő-konyha-kamra-nappali-hálószoba-2 ...

Eladó családi ház

Cegléd

Eladó Cegléden 2328 nm -es telken , 78 nm-es családi ház!Az ingatlan teljes ...

Eladó családi ház

Cegléd

Eladó Cegléden egy családi ház.Az ingatlan tégla építésű cserép fedésű. ...

Eladó családi ház

Cegléd

Eladó Cegléden egy családi ház.Az ingatlan tégla építésű cserép fedésű. ...

Hasonló családi ház hirdetések

Eladó családi ház

Cegléd

Eladó Cegléden egy 117 m2-es társasházi lakás.Főbb paraméterek:-közlekedő-konyha-kamra-nappali-hálószoba-2 ...

Eladó családi ház

Cegléd

Eladó Cegléden 2328 nm -es telken , 78 nm-es családi ház!Az ingatlan teljes ...

Eladó családi ház

Cegléd

Eladó Cegléden egy családi ház.Az ingatlan tégla építésű cserép fedésű. ...

Eladó családi ház

Cegléd

Eladó Cegléden egy családi ház.Az ingatlan tégla építésű cserép fedésű. ...