Eladó családi ház Cegléd 83 300 000 Ft

Leírás

Cegléden új építésű családi ház eladó!


A CasaNetWork Ingatlanhálózat CNW eladásra kínálja a 174602148 ID számú, új építésű családi házat Cegléden!


A modern családi ház 697 m²-es telken épül, 95 m²-es tervezett lakótérrel, minden szempontból megfelel a korszerű életvitel elvárásainak. Az épület VIABLOKK falazatú, kiváló minőségű modern szigeteléssel, amely hatékony hőszigetelést biztosít télen és nyáron egyaránt. A műanyag nyílászárók nemcsak a jobb hőszigetelést, hanem a hatékony hangszigetelést is garantálják, míg a nyári hónapokban klímaberendezés gondoskodik a kellemes belső hőmérsékletről.


A fűtésről korszerű hőszivattyú gondoskodik, amely környezetbarát és gazdaságos megoldást kínál, emellett gázkazán is rendelkezésre áll az energiatakarékos fűtés kiegészítésére. Az ingatlan minden olyan kényelmi és műszaki adottsággal rendelkezik, amely ideális otthont nyújt egy modern család számára.


A burkolatok tekintetében a leendő tulajdonos ízlésének megfelelően választhat melegburkolatot 3000 Ft/m², illetve hidegburkolatot 4000 Ft/m² árkategóriáig.


Közművek: gáz, vezetékes víz, 3 fázisú villany, emésztő.


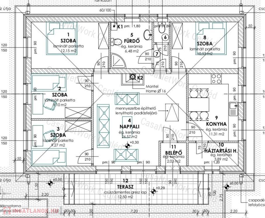
Helyiséglista: előtér 2,03 m2, nappali 26,57 m2, háztartási helyiség 3,89 m2, konyha 11,31 m2, szoba 10,53 m2, fürdő 6,48 m2, wc 1 m1, szoba 12,15 m2, szoba 10 m2, szoba 9,27 m2, terasz 12,5 m2.

Átadás: 2026 év eleje.


A jelenleg meghirdetett ingatlan mérnöki rajz alapján lett közzétéve. Figyelembe kell venni, hogy a használatbavételi engedély kiadása után az ingatlan m²-ben kisebb vagy nagyobb eltérést mutathat (+/- irányba).


Az ingatlan HITELRE és CSOK-ra is alkalmas!


Amennyiben a 174602148 ID számú, a CasaNetwork Cegléd által kínált családi ház, vagy bármely a kínálatunkban található ingatlan felkeltette érdeklődését, hívjon a megadott telefonszámon. A hirdetésben szereplő információk a megbízótól kapott adatok alapján készültek, pontosságukért felelősséget nem vállalunk.


Kollégánk díjmentes, banksemleges hitel ügyintézéssel áll rendelkezésre.


CASANETWORK – Ingatlanban otthon vagyunk!

Családi ház részletei

Ár: 83 300 000 Ft
Méret: 95 négyzetméter
Azonosító: 11571423
Irodai azonosító: 174602148
Telek: 697 négyzetméter
Ingatlan állapota: Kitűnő
Jelleg: családi ház
Építőanyag: Könnyűszerkezetes
Komfort fokozat: Összkomfort
Bútorozott: Nem bútorozott
Egész szobák: 5

Hasonló családi ház hirdetések

Eladó családi ház

Cegléd

Eladásra kínálunk egy új-építésű, hőszivattyúval felszerelt, prémium ...

Eladó családi ház

Cegléd

Cegléden eladó egy 103,74 nm-es négy szobás amerikaikonyhás nappalival ...

Eladó családi ház

Cegléd

Cegléden eladó egy 103,74 nm-es négy szobás amerikaikonyhás nappalival ...

Eladó családi ház

Cegléd

MEGVÉTELRE KÍNÁLOK EGY 6.1 HEKTÁROS 112 m2-es TÉGLA CSALÁDI HÁZ ÉS ...

Hasonló családi ház hirdetések

Eladó családi ház

Cegléd

Eladásra kínálunk egy új-építésű, hőszivattyúval felszerelt, prémium ...

Eladó családi ház

Cegléd

Cegléden eladó egy 103,74 nm-es négy szobás amerikaikonyhás nappalival ...

Eladó családi ház

Cegléd

Cegléden eladó egy 103,74 nm-es négy szobás amerikaikonyhás nappalival ...

Eladó családi ház

Cegléd

MEGVÉTELRE KÍNÁLOK EGY 6.1 HEKTÁROS 112 m2-es TÉGLA CSALÁDI HÁZ ÉS ...